Richardson Way, Rugeley
By Lovett&Co. Estate Agents
£ 240,000
Reviews
3 out of 5 stars
Lovett&Co. Estate Agents says ..
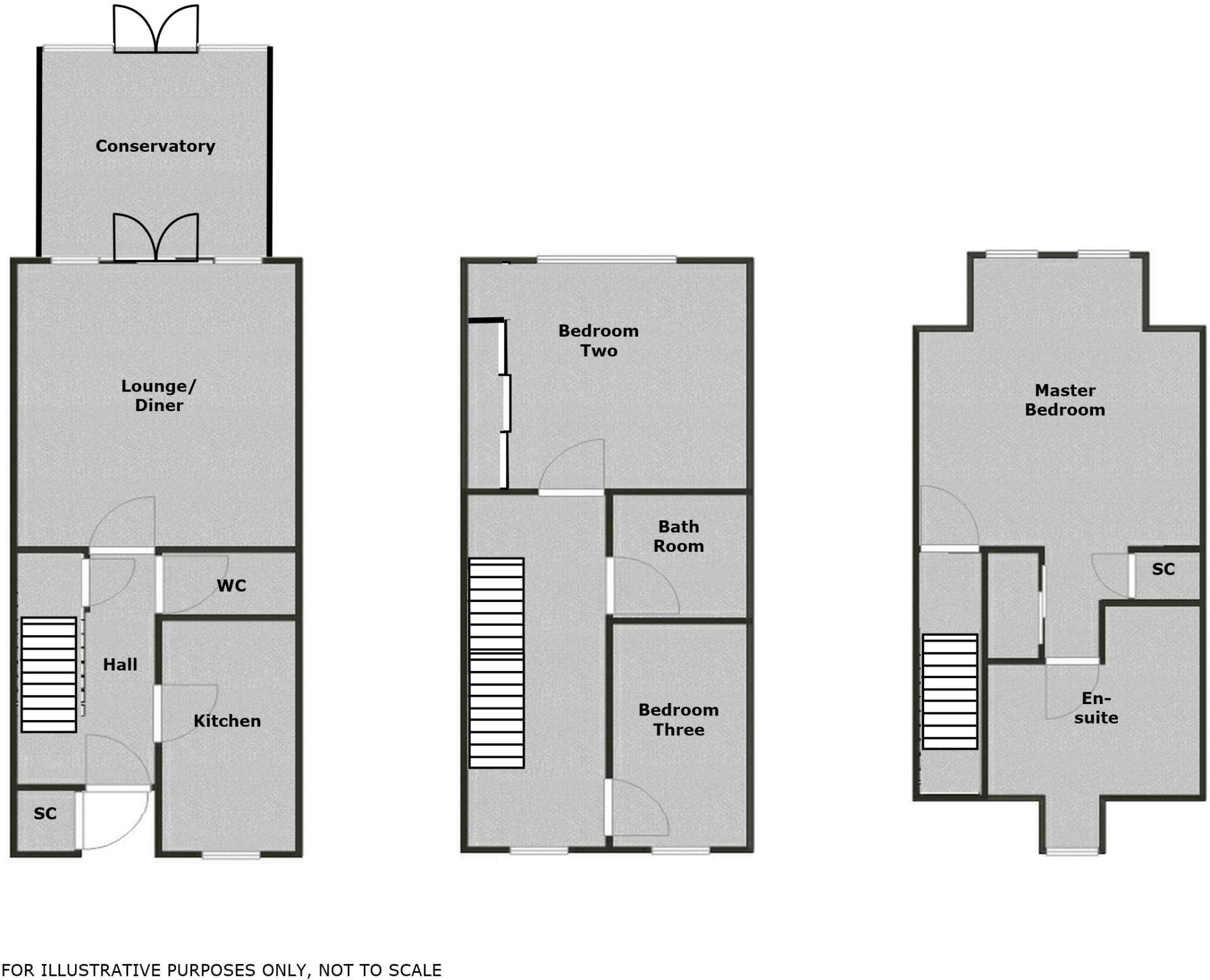
Lovett&Co. Estate Agents are pleased to offer for sale this well presented and homely three bedroom town house with spacious accommodation set over three floors. Internally the property briefly comprising: entrance hallway, modern fitted kitchen, spacious lounge-diner and large rear conservato...
Property Oracle says ..
This terraced house on Richardson Way, Rugeley, presents a solid opportunity for buyers. The property features three bedrooms and two bathrooms, making it suitable for families or couples. The inclusion of a garden adds to its appeal, providing a private outdoor space. The house is in good condition, with modern amenities, though some minor updates could further enhance its value. Its location offers convenient access to local schools and transportation, making it a practical choice for daily commuting and family needs. The price is competitive, reflecting the property’s features and the current market conditions in Rugeley.
Therefore, we give this property 6 / 10. *Disclaimer: This is our option and does constitute a recommendation or financial advice. Do your own research. *
- Price
- 7
- Condition
- 7
- Location
- 7
- Land
- 6
- Bedrooms
- 3
- Bathrooms
- 2
- Sqft (est)
- 1,485.00
The heatmap indicates the level of crime in the area. The color of the heatmap indicates the crime severity and recency.
Metrics Year-on-Year
- Average area value
- 431,054.00 £Increased by 64.12 %
- Est sale value
- 406,890.00 £Increased by 57.47 %
- Average area rental value
- 943.00 £/moIncreased by 7.77 %
- Est letting value
- 0.00 £/mo
- Est rental Yield
- 2.63 %Decreased by 34.25 %
- Crime Rate
- 15.00 %Unchanged by 0.00 %
Agent Activity
Lovett&Co. Estate Agents created the listing.
Nearby Schools
| Name | Type | Ofsted | Distance |
|---|---|---|---|
| Forest Hills Primary School | Academy Sponsor Led | 0.44 KM | |
| Chancel Primary School | Community School | Good | 1.22 KM |
| Etching Hill Cofe Primary Academy | Academy Converter | 1.24 KM | |
| The John Bamford Primary School | Community School | Good | 1.34 KM |
| The Hart School | Academy Sponsor Led | Good | 1.40 KM |
Images
Nearby Streets
| Name | Average Price | Average Sqft | Distance |
|---|---|---|---|
| The Bloody Steps | £ 195,000 | 0 | 0.00 KM |
| Springfields Road | £ 0 | 0 | 0.00 KM |
| Winstanley Close | £ 0 | 0 | 0.00 KM |
| Byron Close | £ 0 | 0 | 0.00 KM |
| The Beeches | £ 0 | 0 | 0.00 KM |
Nearby Transport
| Name | NLC | TLC | Distance |
|---|---|---|---|
| Rugeley Trent Valley | 1084 | RGL | 1.68 KM |
| Rugeley Town | 1135 | RGT | 2.01 KM |
| Hednesford | 1148 | HNF | 9.20 KM |
Nearby Listings
| Address | Price | Type | Score | Distance |
|---|---|---|---|---|
| Richardson Way, Rugeley | £ 390,000 | BUY | 7 / 10 | 0.00 KM |
| Richardson Way, Rugeley | £ 250,000 | BUY | 7 / 10 | 0.00 KM |
| Richardson Way, Rugeley | £ 240,000 | BUY | 6 / 10 | 0.00 KM |
| Richardson Way, Rugeley | £ 390,000 | BUY | 7 / 10 | 0.01 KM |
| Richardson Way, Rugeley | £ 390,000 | BUY | 7 / 10 | 0.09 KM |
Nearby Properties
| Address | Price | Distance |
|---|---|---|
| 36 Richardson Way | £ 171,000 | 0.01 KM |
| 20 Richardson Way | £ 340,000 | 0.01 KM |
| 13 Richardson Way | £ 175,000 | 0.01 KM |
| 21 Richardson Way | £ 150,000 | 0.01 KM |
| 4 Richardson Way | £ 350,000 | 0.01 KM |