Barnard Marcus says ..
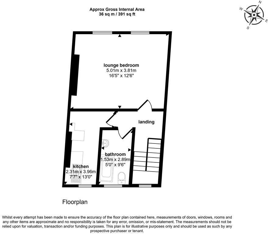
AUCTION SALE 11 March 2025 - Freehold three floor mid terrace building arranged as two self-contained flatsRequiring updatingFull vacant possession
Property Oracle says ..
The property is located in a desirable area of London, close to well-regarded schools and public transport, but requires significant modernisation and renovation. The list price seems relatively high considering the condition and small plot size.
Therefore, we give this property 4 / 10. *Disclaimer: This is our option and does constitute a recommendation or financial advice. Do your own research. *
- Price
- 5
- Condition
- 4
- Location
- 7
- Land
- 3
- Bedrooms
- 3
- Bathrooms
- 2
- Sqft (est)
- 742.71
The heatmap indicates the level of crime in the area. The color of the heatmap indicates the crime severity and recency.
Metrics Year-on-Year
- Average area value
- 834,279.00 £Decreased by 5.94 %
- Est sale value
- 670,667.13 £Decreased by 8.23 %
- Average area rental value
- 2,797.00 £/moIncreased by 4.68 %
- Est letting value
- 2,228.13 £/moIncreased by 50.00 %
- Est rental Yield
- 4.02 %Increased by 11.36 %
- Crime Rate
- 3.00 %Unchanged by 0.00 %
from 886,982.00 £
from 730,826.64 £
from 2,672.00 £/mo
from 1,485.42 £/mo
from 3.61 %
from 3.00 %
Agent Activity
Barnard Marcus created the listing.
Nearby Schools
| Name | Type | Ofsted | Distance |
|---|---|---|---|
| Brackenbury Primary School | Community School | Outstanding | 0.07 KM |
| Vanessa Nursery School | Local Authority Nursery School | Outstanding | 0.35 KM |
| Beyondautism Post-19 | Special Post 16 Institution | 0.37 KM | |
| John Betts Primary School | Voluntary Aided School | Outstanding | 0.41 KM |
| Hammersmith Academy | Academy Sponsor Led | Good | 0.45 KM |
Images
Nearby Streets
| Name | Average Price | Average Sqft | Distance |
|---|---|---|---|
| Parnell Close | £ 0 | 0 | 0.00 KM |
| Scotts Road | £ 599,950 | 0 | 0.00 KM |
| Elgin Avenue | £ 512,500 | 0 | 0.00 KM |
| Glenthorne Road | £ 0 | 0 | 0.00 KM |
| Southway Close | £ 0 | 0 | 0.00 KM |
Nearby Transport
| Name | NLC | TLC | Distance |
|---|---|---|---|
| Shepherd'S Bush | 9587 | SPB | 1.81 KM |
| Kensington (Olympia) | 3092 | KPA | 2.49 KM |
| Acton Central | 1404 | ACC | 3.49 KM |
| Kensal Green | 1447 | KNL | 3.59 KM |
| Barnes | 5551 | BNS | 3.72 KM |
Nearby Listings
| Address | Price | Type | Score | Distance |
|---|---|---|---|---|
| Cardross Street, London, W6 | £ 500,000 | BUY | 6 / 10 | 0.05 KM |
| Cardross Street, London, W6 | £ 1,500,000 | BUY | 7 / 10 | 0.10 KM |
| Regent Court, Hammersmith W6 | £ 525,000 | BUY | 6 / 10 | 0.11 KM |
| Nasmyth Street, Brackenbury Village, Hammersmith, W6 | £ 1,835,000 | BUY | 8 / 10 | 0.11 KM |
| Nasmyth Street, Hammersmith W6 | £ 700,000 | BUY | 6 / 10 | 0.11 KM |
Nearby Properties
| Address | Price | Distance |
|---|---|---|
| 198 Dalling Road | £ 610,000 | 0.00 KM |
| 210 Dalling Road | £ 1,910,000 | 0.00 KM |
| 196 Dalling Road | £ 685,000 | 0.00 KM |
| 194 Dalling Road | £ 1,095,000 | 0.00 KM |
| 208 Dalling Road | £ 525,000 | 0.00 KM |