Hydale Court, Low Moor, Bradford, BD12 0EQ
By Dinsdales Estates
£ 44,444
Reviews
3 out of 5 stars
Dinsdales Estates says ..
NEED AFFORDABLE LIVING, WOULD SUIT A SINGLE OR COUPLE. WORK WOULD BE REQUIRED TO UTILISE AS AN INVESTMENT - EPC RATE F. ENQUIRE ONLINE TODAY.
Property Oracle says ..
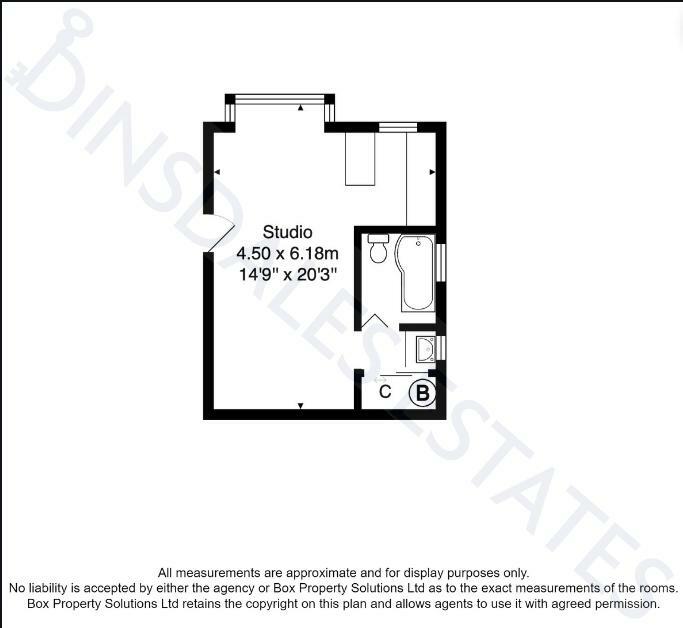
This property is a small studio flat located in Low Moor, Bradford. The location benefits from being close to local primary schools, including Hill Top Cofe Primary School (0.10km) which has a good Ofsted rating, and Low Moor Cofe Primary School (1.19km) with an outstanding Ofsted rating. Low Moor train station is also within reasonable proximity (1.82km). The property itself appears to be in good condition, well maintained and clean. It is compact but well-designed, making efficient use of space. While there is no garden, the property does have access to some communal outside space. The price of £44,444 is significantly lower than the average property price in the area (£617,618), and also considerably lower than other nearby properties. However, it is important to note that the property is very small (297 sqft), and this should be considered in relation to the price. The lack of bedrooms may also affect its appeal to a wide range of buyers.
Therefore, we give this property 6 / 10. *Disclaimer: This is our option and does constitute a recommendation or financial advice. Do your own research. *
- Price
- 6
- Condition
- 8
- Location
- 7
- Land
- 3
- Bedrooms
- 0
- Bathrooms
- 1
- Sqft (est)
- 297.41
The heatmap indicates the level of crime in the area. The color of the heatmap indicates the crime severity and recency.
Metrics Year-on-Year
- Average area value
- 856,250.00 £Increased by 15.74 %
- Est sale value
- 211,161.10 £Increased by 21.37 %
- Average area rental value
- 2,000.00 £/moDecreased by 15.25 %
- Est letting value
- 297.41 £/moUnchanged by 0.00 %
- Est rental Yield
- 2.80 %Decreased by 26.89 %
- Crime Rate
- 11.00 %Unchanged by 0.00 %
Agent Activity
Dinsdales Estates created the listing.
Nearby Schools
| Name | Type | Ofsted | Distance |
|---|---|---|---|
| Hill Top Cofe Primary School | Foundation School | Good | 0.10 KM |
| St Winefride'S Catholic Primary School, A Voluntary Academy | Academy Converter | Good | 1.00 KM |
| Low Moor Cofe Primary School | Voluntary Controlled School | Outstanding | 1.19 KM |
| St Paul'S Cofe Primary School | Voluntary Aided School | Good | 1.27 KM |
| Appleton Academy | Academy Sponsor Led | 1.52 KM |
Images
Nearby Streets
| Name | Average Price | Average Sqft | Distance |
|---|---|---|---|
| St. Abbs Close | £ 220,000 | 0 | 0.00 KM |
| St. Mark's Place | £ 0 | 0 | 0.00 KM |
| Gateways Close | £ 0 | 0 | 0.00 KM |
| Huddersfield Road | £ 0 | 0 | 0.00 KM |
| Carisbrooke Crescent | £ 0 | 0 | 0.00 KM |
Nearby Transport
| Name | NLC | TLC | Distance |
|---|---|---|---|
| Low Moor | 8416 | LMR | 1.82 KM |
| Bradford Interchange | 8345 | BDI | 4.45 KM |
| Bradford Forster Square | 8346 | BDQ | 4.89 KM |
| Brighouse | 8514 | BGH | 6.53 KM |
| Frizinghall | 8556 | FZH | 7.17 KM |
Nearby Listings
| Address | Price | Type | Score | Distance |
|---|---|---|---|---|
| Hydale Court, Low Moor, Bradford, BD12 0EQ | £ 44,444 | BUY | 6 / 10 | 0.00 KM |
| Hydale Court, Bradford, West Yorkshire, BD12 | £ 70,000 | BUY | 6 / 10 | 0.01 KM |
| Acaster Drive, Bradford, West Yorkshire, BD12 | £ 65,000 | BUY | 7 / 10 | 0.21 KM |
| Acaster Drive, Low Moor, Bradford, BD12 | £ 75,000 | BUY | Unknown | 0.21 KM |
| Acaster Drive, Low Moor, BD12 | £ 85,000 | BUY | 5 / 10 | 0.24 KM |
Nearby Properties
| Address | Price | Distance |
|---|---|---|
| 6 Hydale Court | £ 49,950 | 0.01 KM |
| 44 Hydale Court | £ 87,000 | 0.01 KM |
| 23 Hydale Court | £ 25,000 | 0.01 KM |
| 33 Hydale Court | £ 25,000 | 0.01 KM |
| 32 Hydale Court | £ 75,000 | 0.01 KM |