Plot 3, The Glebe, Ayton
ED

Plot 3, The Glebe, Ayton

By Edwin Thompson

£ 120,000

Reviews

3 out of 5 stars

Edwin Thompson says ..

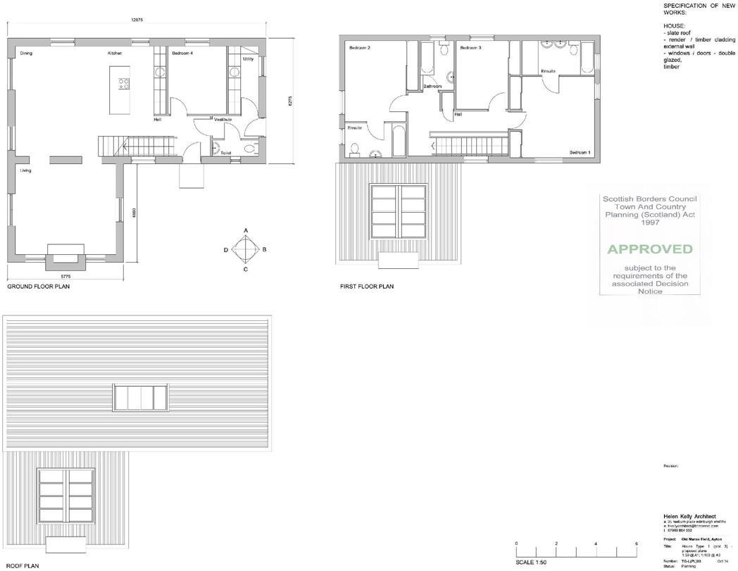
This plot at The Glebe on the outskirts of the popular village of Ayton has planning permission for a four bedroom detached house with garage and garden.

Property Oracle says ..

This listing is for a building plot in Ayton, Scottish Borders, with planning permission for a four-bedroom detached house. The plot itself appears sizable, as evidenced by aerial imagery, offering potential for a substantial garden. The images of a similar recently completed property on an adjacent plot offer a strong visual representation of the potential outcome. The plot’s location in Ayton, while lacking detailed information on immediate amenities, places it in a desirable area within the Scottish Borders region. The £120,000 list price needs further contextualisation through comparison with the price per sqft of comparable properties. However, considering the lack of this data, along with the inclusion of planning permission and the seemingly large plot size, the price appears reasonable. It should be noted that the final cost of the property will vary, depending on the choice of building materials, the final size of the completed property, and labour costs. Overall, this listing presents a promising investment opportunity for someone looking to build a new home in a picturesque and desirable Scottish village. Further investigation would be required into precise details of plot size, local services and school quality. The lack of information on building costs is a key factor in assessing the financial viability of the project.

Therefore, we give this property 7 / 10. *Disclaimer: This is our option and does constitute a recommendation or financial advice. Do your own research. *

Price
7
Condition
9
Location
6
Land
7
Bedrooms
0
Bathrooms
0
Sqft (est)
1,869.15

The heatmap indicates the level of crime in the area. The color of the heatmap indicates the crime severity and recency.

Metrics Year-on-Year

Average area value
376,133.00 £
Increased by 50.19 %
from 250,445.00 £
Est sale value
1,192,517.70 £
Increased by 131.16 %
from 515,885.40 £
Average area rental value
1,250.00 £/mo
Increased by 20.42 %
from 1,038.00 £/mo
Est letting value
3,738.30 £/mo
Increased by 100.00 %
from 1,869.15 £/mo
Est rental Yield
3.99 %
Decreased by 19.72 %
from 4.97 %
Crime Rate
0.00 %
from 0.00 %

Agent Activity

  • Edwin Thompson created the listing.

Images

Nearby Streets

NameAverage PriceAverage SqftDistance
Peelwalls Meadows £ 190,00000.00 KM
Tower Road £ 000.00 KM
Welltower Park £ 465,00000.00 KM

Nearby Listings

AddressPriceTypeScoreDistance
Plot 3, The Glebe, Ayton £ 120,000BUY7 / 100.00 KM
Beanburn, Ayton, Berwickshire, TD14 £ 310,000BUY8 / 100.42 KM
The Archway, Ayton, Eyemouth, TD14 £ 280,000BUY6 / 100.53 KM
St. Andrews Square, High Street, Ayton, Berwickshire, TD14 £ 110,000BUYUnknown0.54 KM
Journey's End, High Street, Ayton, Eyemouth, TD14 £ 80,000BUY5 / 100.56 KM