Ashtons says ..
A charming three bedroom, three bathroom townhouse forming part of an impressive Victorian conversion. The property has an excellent central location, gated access and the benefit of allocated parking.
Property Oracle says ..
This is a well-presented semi-detached property located in a sought-after area of St. Albans. The house benefits from modern interiors, a small garden, and proximity to local amenities and schools. The property offers good value for money, given its condition and location. The house is a traditional build that has been modernised internally.
Therefore, we give this property 7 / 10. *Disclaimer: This is our option and does constitute a recommendation or financial advice. Do your own research. *
- Price
- 7
- Condition
- 8
- Location
- 8
- Land
- 5
- Bedrooms
- 3
- Bathrooms
- 3
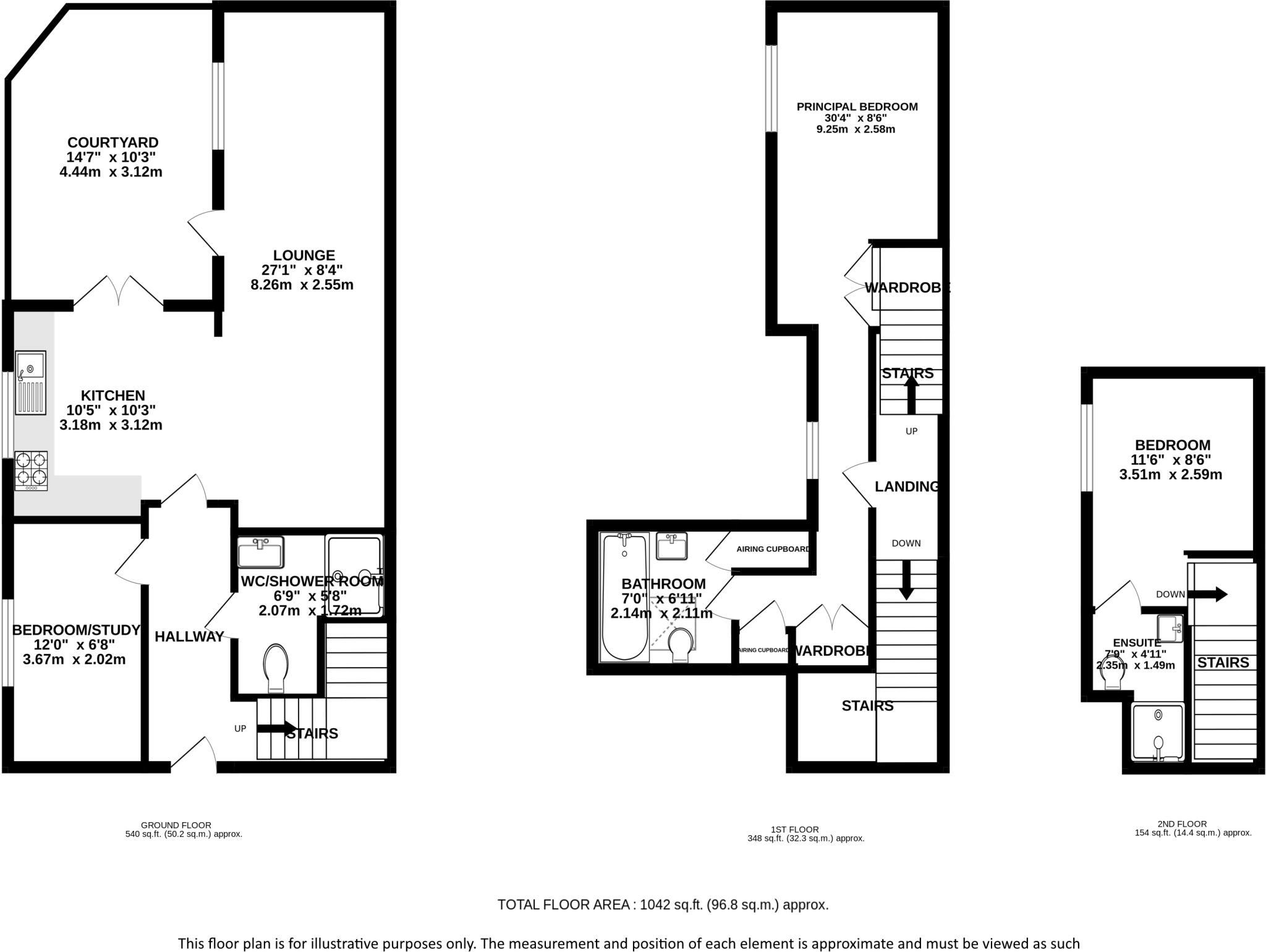
- Sqft (est)
- 1,042.00
The heatmap indicates the level of crime in the area. The color of the heatmap indicates the crime severity and recency.
Metrics Year-on-Year
- Average area value
- 879,375.00 £Increased by 25.99 %
- Est sale value
- 1,050,336.00 £Increased by 50.90 %
- Average area rental value
- 1,568.00 £/moDecreased by 10.50 %
- Est letting value
- 1,042.00 £/moUnchanged by 0.00 %
- Est rental Yield
- 2.14 %Decreased by 28.90 %
- Crime Rate
- 4.00 %Unchanged by 0.00 %
Agent Activity
Ashtons created the listing.
Nearby Schools
| Name | Type | Ofsted | Distance |
|---|---|---|---|
| Maple Primary School | Community School | Good | 0.45 KM |
| Bernards Heath Infant And Nursery School | Community School | Good | 0.45 KM |
| St Albans High School For Girls | Other Independent School | 0.46 KM | |
| Loreto College | Academy Converter | Outstanding | 0.56 KM |
| Alban City School | Free Schools | Good | 0.75 KM |
Images
Nearby Streets
| Name | Average Price | Average Sqft | Distance |
|---|---|---|---|
| Avenue Road | £ 417,500 | 0 | 0.00 KM |
| Cranmore Court | £ 250,000 | 0 | 0.00 KM |
| Elm Lawn Close | £ 0 | 0 | 0.00 KM |
| St Peter's Road | £ 550,000 | 0 | 0.00 KM |
| St Bernard's Road | £ 0 | 0 | 0.00 KM |
Nearby Transport
| Name | NLC | TLC | Distance |
|---|---|---|---|
| St Albans City | 1548 | SAC | 0.83 KM |
| St Albans Abbey | 1562 | SAA | 2.12 KM |
| Park Street | 1561 | PKT | 3.83 KM |
| How Wood (Hertfordshire) | 1563 | HWW | 4.80 KM |
| Bricket Wood | 1560 | BWO | 6.74 KM |
Nearby Listings
| Address | Price | Type | Score | Distance |
|---|---|---|---|---|
| Avenue Road, St. Albans, AL1 | £ 650,000 | BUY | 7 / 10 | 0.00 KM |
| Cadoxton Place, 29 Avenue Road, St. Albans, Hertfordshire | £ 675,000 | BUY | 7 / 10 | 0.01 KM |
| Avenue Road, St. Albans | £ 735,000 | BUY | 7 / 10 | 0.02 KM |
| Avenue Road, St. Albans, AL1 3EH | £ 300,000 | BUY | Unknown | 0.04 KM |
| Jameson Court, 33, Avenue Road, St Albans | £ 495,000 | BUY | Unknown | 0.08 KM |
Nearby Properties
| Address | Price | Distance |
|---|---|---|
| 21 Sandpit Lane | £ 510,000 | 0.07 KM |
| 22 Avenue Road | £ 1,150,000 | 0.10 KM |
| 16 Avenue Road | £ 1,125,000 | 0.10 KM |
| 15b Heath Road | £ 1,005,000 | 0.12 KM |
| 13a Heath Road | £ 510,000 | 0.12 KM |