Kilbury Close, Nuneaton, Warwickshire, CV11
By Reeds Rains
£ 88,000
Reviews
3 out of 5 stars
Reeds Rains says ..
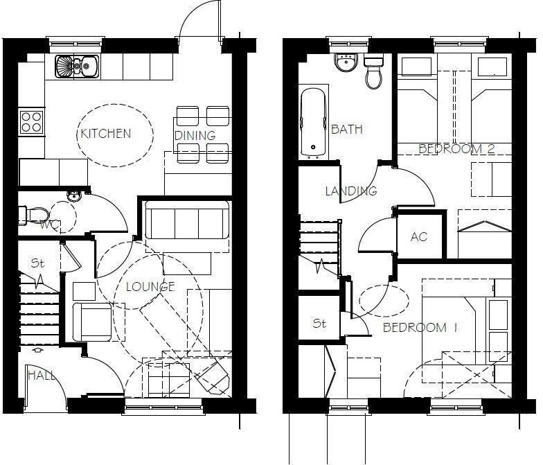
**40% shared ownership**Sought after location** No chain** A modern two bedroom terraced home, ideal for a first time purchase. The ground floor accommodation consists of a light and spacious lounge, ideal for cosy nights in, which leads to a well equipped kitchen with upgraded counter tops and c...
Property Oracle says ..
This two-bedroom terraced house in Nuneaton is listed at £88,000. The property appears to be in good condition, recently modernised with a contemporary feel. The kitchen and flooring have been updated. There is a small, enclosed rear garden with artificial turf and a shed. The location is close to St Nicolas Cofe Academy (Good Ofsted rating) and other amenities. However, the average house price in the area is significantly higher (£367,691), and the property is considerably smaller than average (595 sqft vs 1112 sqft). This suggests that the list price may be attractive to first-time buyers or investors, but a full survey is recommended to identify any potential issues.
Therefore, we give this property 6 / 10. *Disclaimer: This is our option and does constitute a recommendation or financial advice. Do your own research. *
- Price
- 6
- Condition
- 9
- Location
- 7
- Land
- 3
- Bedrooms
- 2
- Bathrooms
- 1
- Sqft (est)
- 595.00
The heatmap indicates the level of crime in the area. The color of the heatmap indicates the crime severity and recency.
Metrics Year-on-Year
- Average area value
- 456,875.00 £Increased by 1.27 %
- Est sale value
- 255,255.00 £Increased by 22.57 %
- Average area rental value
- 1,264.00 £/moDecreased by 16.90 %
- Est letting value
- 595.00 £/moUnchanged by 0.00 %
- Est rental Yield
- 3.32 %Decreased by 18.02 %
- Crime Rate
- 46.00 %Unchanged by 0.00 %
Agent Activity
Reeds Rains created the listing.
Nearby Schools
| Name | Type | Ofsted | Distance |
|---|---|---|---|
| St Nicolas Cofe Academy | Academy Converter | Good | 1.41 KM |
| Milby Primary School | Community School | Good | 1.76 KM |
| North Warwickshire And South Leicestershire College | Further Education | Good | 1.86 KM |
| Higham Lane School | Academy Converter | Outstanding | 2.45 KM |
| Higham-On-The-Hill Church Of England Primary School | Academy Converter | Good | 2.52 KM |
Images
Nearby Streets
| Name | Average Price | Average Sqft | Distance |
|---|---|---|---|
| Greendale Road | £ 367,143 | 0 | 0.00 KM |
| Shire Lane | £ 0 | 0 | 0.00 KM |
| Loweswater Close | £ 0 | 0 | 0.00 KM |
| Palomino Close | £ 0 | 0 | 0.00 KM |
| Colt Way | £ 0 | 0 | 0.00 KM |
Nearby Transport
| Name | NLC | TLC | Distance |
|---|---|---|---|
| Nuneaton | 1077 | NUN | 3.47 KM |
| Bermuda Park | 6543 | BEP | 5.58 KM |
| Hinckley (Leics) | 1870 | HNK | 6.79 KM |
| Bedworth | 1165 | BEH | 7.11 KM |
Nearby Listings
| Address | Price | Type | Score | Distance |
|---|---|---|---|---|
| Kilbury Close, Nuneaton, Warwickshire, CV11 | £ 88,000 | BUY | 6 / 10 | 0.00 KM |
| 5 Kilbury Close, Royal Park, Nuneaton, CV11 6XD | £ 88,000 | BUY | 7 / 10 | 0.01 KM |
| Edgedale Road, Nuneaton, CV11 | £ 625,000 | BUY | 7 / 10 | 0.05 KM |
| Farthington Drive, Royal Park | £ 450,000 | BUY | Unknown | 0.07 KM |
| Grassington Drive, Nuneaton | £ 650,000 | BUY | 8 / 10 | 0.07 KM |
Nearby Properties
| Address | Price | Distance |
|---|---|---|
| 25 Greendale Road | £ 296,995 | 0.15 KM |
| 43 Greendale Road | £ 340,000 | 0.15 KM |
| 21 Greendale Road | £ 388,000 | 0.15 KM |
| 23 Greendale Road | £ 280,000 | 0.23 KM |
| 8 Loweswater Close | £ 217,000 | 0.26 KM |