Princess Street, Shrewsbury
By Cooper Green Pooks
£ 1,100,000
Reviews
3 out of 5 stars
Cooper Green Pooks says ..
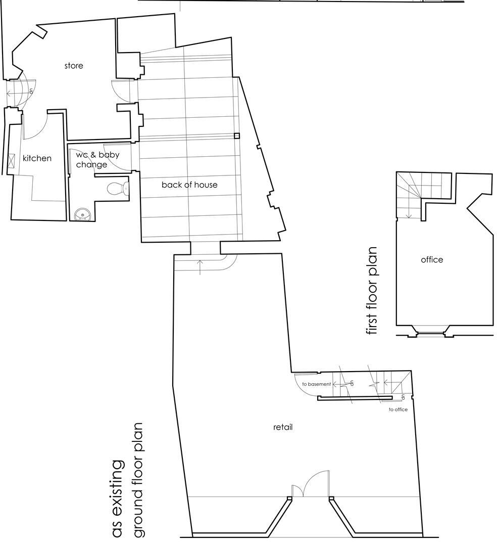
29-31 Princess Street is Listed Grade 2 and 2* and provides a striking façade which blends with many of the period buildings along the street. It underwent a comprehensive redevelopment/refurbishment in 2022 to provide a 5 -room House of Multiple Occupation (HMO) and a two-bedroom flat whilst ret...
Property Oracle says ..
This property is located on Princess Street in Shrewsbury, a historic market town in Shropshire. The location benefits from proximity to Shrewsbury railway station (0.72km), providing convenient access to other parts of the UK. Several schools are also nearby, including St Winefride’s Convent School (0.12km) and Shrewsbury High School (0.38km). The property itself appears to be a large, well-maintained building, possibly a period property given its architectural style. The interior photos reveal a modern and updated interior with high-quality finishes. The lack of plot size information prevents a definitive assessment of land availability. However, given the property’s location in a town centre setting, a significant garden is unlikely. Comparing the list price of £1,100,000 to the average price of £362,775 and average price per sqft of £382 in the area, this property is significantly more expensive. This is likely due to its size (2,895 sqft), location, and condition. While the average price per sqft is £382, this property is likely valued higher due to its superior condition and location in the town centre. More information on the plot size would help to refine the analysis further.
Therefore, we give this property 6 / 10. *Disclaimer: This is our option and does constitute a recommendation or financial advice. Do your own research. *
- Price
- 6
- Condition
- 9
- Location
- 9
- Land
- 2
- Bedrooms
- 7
- Bathrooms
- 6
- Sqft (est)
- 2,895.49
The heatmap indicates the level of crime in the area. The color of the heatmap indicates the crime severity and recency.
Metrics Year-on-Year
- Average area value
- 217,135.00 £Decreased by 23.22 %
- Est sale value
- 914,974.84 £Decreased by 0.63 %
- Average area rental value
- 852.00 £/moDecreased by 12.97 %
- Est letting value
- 2,895.49 £/moUnchanged by 0.00 %
- Est rental Yield
- 4.71 %Increased by 13.49 %
- Crime Rate
- 62.00 %Unchanged by 0.00 %
Agent Activity
Cooper Green Pooks created the listing.
Nearby Schools
| Name | Type | Ofsted | Distance |
|---|---|---|---|
| St Winefride'S Convent School | Other Independent School | 0.12 KM | |
| Shrewsbury High School | Other Independent School | 0.38 KM | |
| Shrewsbury Colleges Group | Further Education | Inadequate | 0.69 KM |
| Coleham Primary School | Academy Converter | 0.77 KM | |
| Shrewsbury School | Other Independent School | 0.98 KM |
Images
Nearby Streets
| Name | Average Price | Average Sqft | Distance |
|---|---|---|---|
| Swan Hill Gardens | £ 0 | 0 | 0.00 KM |
| Golden Cross Passage | £ 900,000 | 0 | 0.00 KM |
| Claremont Street | £ 162,475 | 0 | 0.00 KM |
| Saint Mary's Shut | £ 0 | 0 | 0.00 KM |
| Crescent Lane | £ 0 | 0 | 0.00 KM |
Nearby Transport
| Name | NLC | TLC | Distance |
|---|---|---|---|
| Shrewsbury | 4387 | SHR | 0.72 KM |
Nearby Listings
| Address | Price | Type | Score | Distance |
|---|---|---|---|---|
| Princess Street, Shrewsbury | £ 1,100,000 | BUY | 6 / 10 | 0.00 KM |
| College Hill, Shrewsbury, Shropshire | £ 520,000 | BUY | Unknown | 0.06 KM |
| Coffee House Passage, The Square, Shrewsbury | £ 230,000 | BUY | 6 / 10 | 0.08 KM |
| 2A, 2B & 3 Peacock Passage, High Street, Shrewsbury, Shropshire, SY1 1SX | £ 249,000 | BUY | Unknown | 0.11 KM |
| Market Street, Shrewsbury | £ 295,000 | BUY | 5 / 10 | 0.13 KM |
Nearby Properties
| Address | Price | Distance |
|---|---|---|
| 14 College Hill | £ 210,000 | 0.04 KM |
| 2 College Hill | £ 595,000 | 0.07 KM |
| 4 College Hill | £ 410,000 | 0.07 KM |
| 6 College Hill | £ 474,000 | 0.11 KM |
| 12a College Hill | £ 270,000 | 0.12 KM |