Devenports says ..
"We were all excited to collect the keys to this property, as we feel you will be hard pushed to find a better value three bedroom locally." - James (Devenports Co-Owner) This three-bedroom semi-detached bungalow will attract buyers who want to take full advantage of the man...
Property Oracle says ..
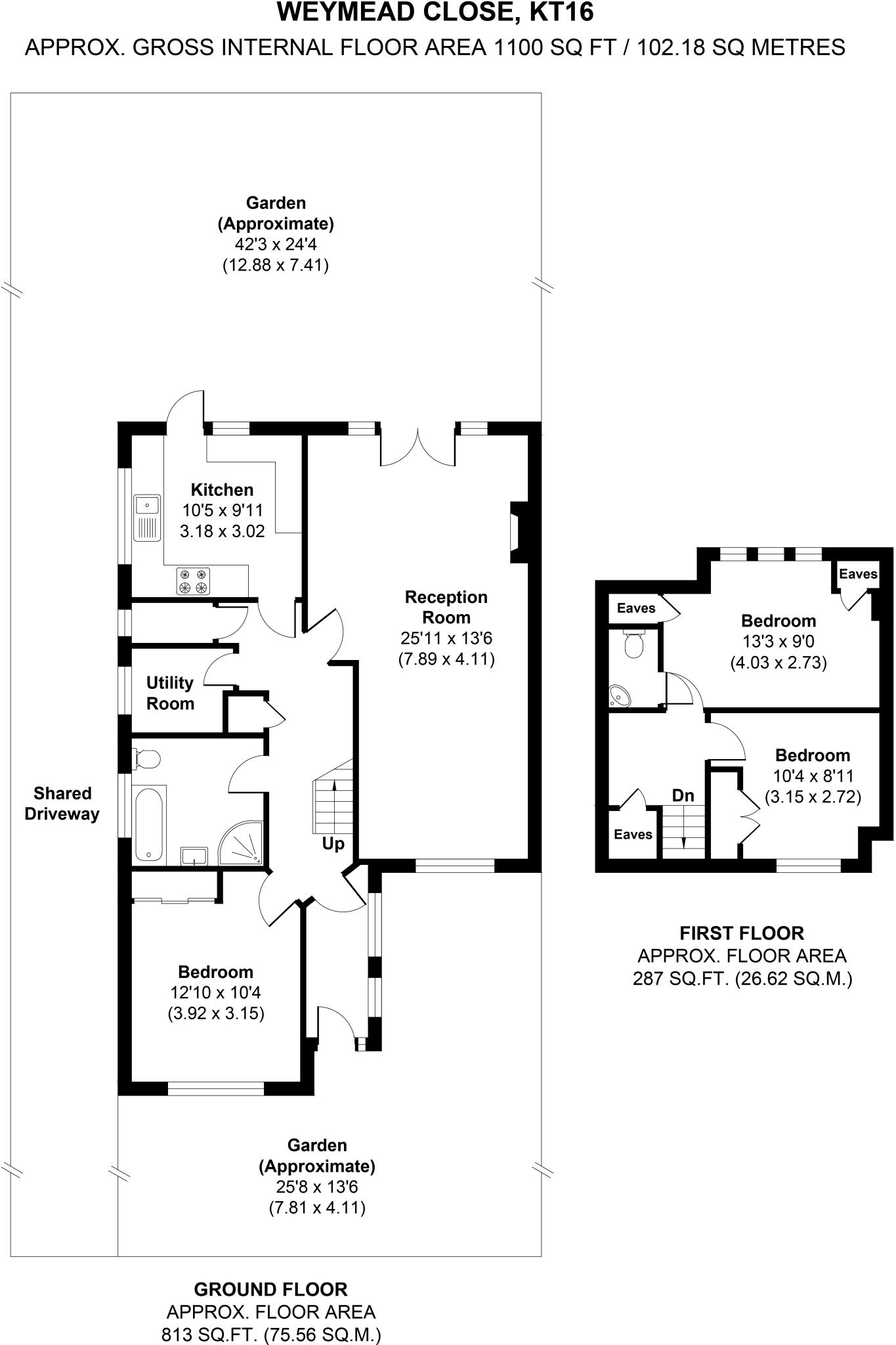
This is a three-bedroom bungalow in Chertsey Riverside. The property includes a garden and off-street parking. While generally well-maintained, some areas could benefit from modernization. The location is convenient for schools and transport links. The price is reasonable considering the location and size, but not significantly below market value.
Therefore, we give this property 6 / 10. *Disclaimer: This is our option and does constitute a recommendation or financial advice. Do your own research. *
- Price
- 6
- Condition
- 6
- Location
- 7
- Land
- 7
- Bedrooms
- 3
- Bathrooms
- 1
- Sqft (est)
- 1,100.00
- Lot (est)
- 2,141.00
The heatmap indicates the level of crime in the area. The color of the heatmap indicates the crime severity and recency.
Metrics Year-on-Year
- Average area value
- 411,990.00 £Increased by 0.67 %
- Est sale value
- 529,100.00 £Decreased by 4.94 %
- Average area rental value
- 1,703.00 £/moIncreased by 10.80 %
- Est letting value
- 1,100.00 £/moUnchanged by 0.00 %
- Est rental Yield
- 4.96 %Increased by 9.98 %
- Crime Rate
- 15.00 %Unchanged by 0.00 %
Agent Activity
Devenports created the listing.
Nearby Schools
| Name | Type | Ofsted | Distance |
|---|---|---|---|
| Philip Southcote School | Community Special School | Good | 0.65 KM |
| Chertsey High School | Free Schools | 0.66 KM | |
| Stepgates Community School | Community School | Good | 0.91 KM |
| St Anne'S Catholic Primary School | Academy Converter | Good | 1.24 KM |
| St George'S College Weybridge | Other Independent School | 1.61 KM |
Images
Nearby Streets
| Name | Average Price | Average Sqft | Distance |
|---|---|---|---|
| Foxglove Close | £ 474,975 | 0 | 0.00 KM |
| Chertsey Bridge | £ 0 | 0 | 0.00 KM |
| Ford Road | £ 275,000 | 0 | 0.00 KM |
| Ford Road | £ 0 | 0 | 0.00 KM |
| Chertsey Bridge Road | £ 0 | 0 | 0.00 KM |
Nearby Transport
| Name | NLC | TLC | Distance |
|---|---|---|---|
| Addlestone | 5550 | ASN | 1.70 KM |
| Chertsey | 5553 | CHY | 2.17 KM |
| Byfleet And New Haw | 5689 | BFN | 4.29 KM |
| Weybridge | 5577 | WYB | 4.54 KM |
| Shepperton | 5605 | SHP | 4.86 KM |
Nearby Listings
| Address | Price | Type | Score | Distance |
|---|---|---|---|---|
| Weymead Close, Chertsey, KT16 | £ 479,950 | BUY | 6 / 10 | 0.00 KM |
| Hazelbank Court, Chertsey, Surrey, KT16 | £ 239,950 | BUY | Unknown | 0.05 KM |
| Chertsey, Surrey, KT16 | £ 449,950 | BUY | 7 / 10 | 0.07 KM |
| Hazelbank Road, Chertsey, Surrey, KT16 | £ 200,000 | BUY | 5 / 10 | 0.07 KM |
| Hazelbank Court, Chertsey, Surrey, KT16 | £ 219,950 | BUY | 5 / 10 | 0.08 KM |
Nearby Properties
| Address | Price | Distance |
|---|---|---|
| 19 Weymead Close | £ 322,000 | 0.01 KM |
| 17 Weymead Close | £ 275,000 | 0.01 KM |
| 20 Weymead Close | £ 345,000 | 0.01 KM |
| 12 Weymead Close | £ 325,000 | 0.01 KM |
| 18 Weymead Close | £ 176,459 | 0.01 KM |