L&Q says ..
One bedroom apartment on the Ocean Estate Development. Shared Ownership also available at a 25% share at £87,500
Property Oracle says ..
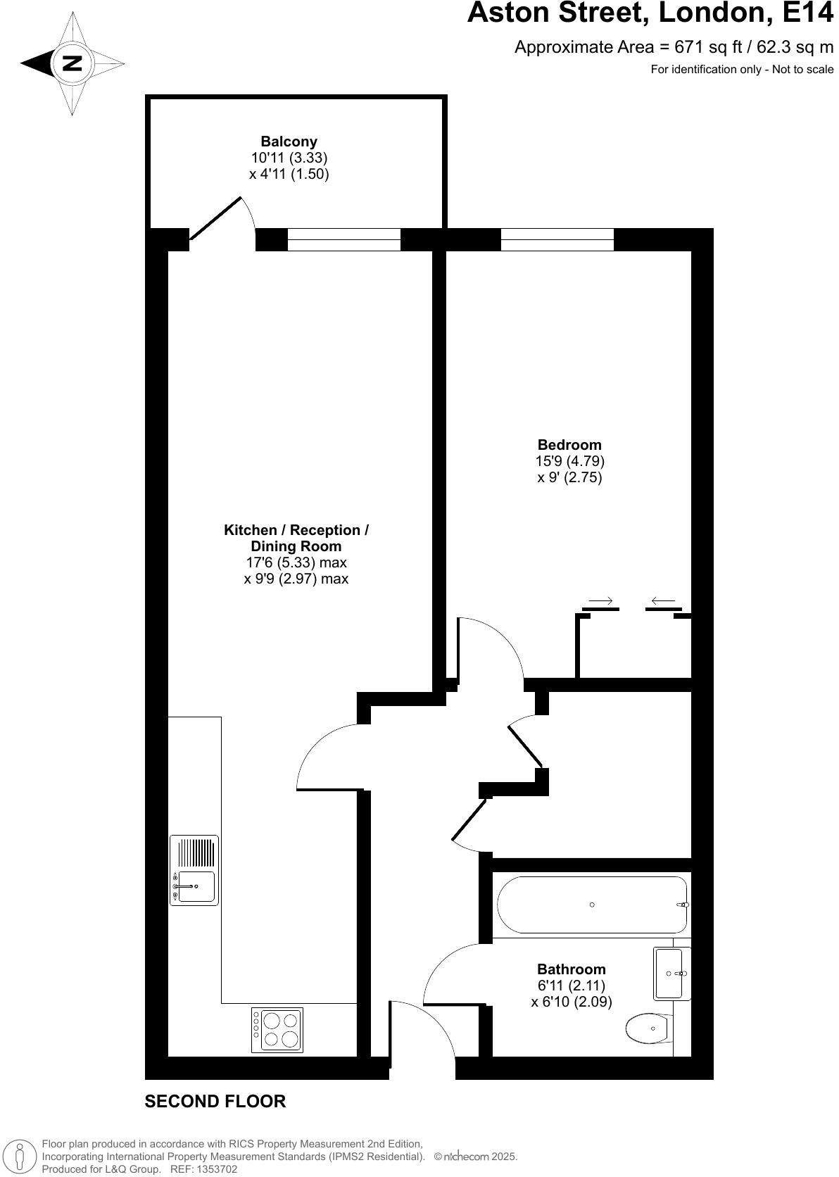
This is a one-bedroom flat located on Aston Street, Limehouse. The property is in good condition and benefits from a balcony. The flat is situated in a convenient location, with easy access to transportation and local amenities. Nearby schools include Cayley Primary School and Halley Primary School. The asking price of £350,000 appears reasonable for the area and the condition of the property. The flat is modern and well-maintained, making it an attractive option for potential buyers or renters. The flat is located close to Limehouse station.
Therefore, we give this property 6 / 10. *Disclaimer: This is our option and does constitute a recommendation or financial advice. Do your own research. *
- Price
- 7
- Condition
- 8
- Location
- 7
- Land
- 5
- Bedrooms
- 1
- Bathrooms
- 1
- Sqft (est)
- 476.30
The heatmap indicates the level of crime in the area. The color of the heatmap indicates the crime severity and recency.
Metrics Year-on-Year
- Average area value
- 456,286.00 £Decreased by 7.86 %
- Est sale value
- 321,502.50 £Increased by 0.60 %
- Average area rental value
- 2,399.00 £/moIncreased by 34.47 %
- Est letting value
- 1,428.90 £/moIncreased by 50.00 %
- Est rental Yield
- 6.31 %Increased by 46.06 %
- Crime Rate
- 5.00 %Unchanged by 0.00 %
Agent Activity
L&Q created the listing.
Nearby Schools
| Name | Type | Ofsted | Distance |
|---|---|---|---|
| Cayley Primary School | Community School | Good | 0.05 KM |
| Halley Primary School | Community School | Good | 0.28 KM |
| Stephen Hawking School | Community Special School | Outstanding | 0.38 KM |
| Stepney Green Mathematics And Computing College | Academy Converter | 0.50 KM | |
| Harry Roberts Nursery School | Local Authority Nursery School | Outstanding | 0.56 KM |
Images
Nearby Streets
| Name | Average Price | Average Sqft | Distance |
|---|---|---|---|
| Brenton Street | £ 0 | 0 | 0.00 KM |
| Belgrave Street | £ 0 | 0 | 0.00 KM |
| Tottam Terrace | £ 400,000 | 0 | 0.00 KM |
| Krupa Mews | £ 848,333 | 0 | 0.00 KM |
| Bohn Road | £ 0 | 0 | 0.00 KM |
Nearby Transport
| Name | NLC | TLC | Distance |
|---|---|---|---|
| Limehouse | 7491 | LHS | 0.40 KM |
| Shadwell | 1082 | SDE | 2.07 KM |
| Rotherhithe | 1039 | ROE | 2.23 KM |
| Wapping | 1085 | WPE | 2.29 KM |
| Canada Water | 1659 | ZCW | 2.34 KM |
Nearby Listings
| Address | Price | Type | Score | Distance |
|---|---|---|---|---|
| Vespucci Court, E14 7UP | £ 520,000 | BUY | 6 / 10 | 0.00 KM |
| 45 Aston Street, Limehouse, E14 7UP | £ 350,000 | BUY | 6 / 10 | 0.00 KM |
| Vespucci Court, Aston Street, London, E14 | £ 350,000 | BUY | 6 / 10 | 0.01 KM |
| Vespucci Court, Aston Street, London, E14 7UP | £ 549,000 | BUY | Unknown | 0.01 KM |
| Aston Street, Limehouse | £ 375,000 | BUY | 6 / 10 | 0.01 KM |
Nearby Properties
| Address | Price | Distance |
|---|---|---|
| 14 Matlock Street | £ 630,000 | 0.10 KM |
| 5 Matlock Street | £ 770,000 | 0.10 KM |
| 17 Aston Street | £ 482,000 | 0.11 KM |
| 21 Aston Street | £ 495,000 | 0.11 KM |
| 15 Aston Street | £ 722,250 | 0.11 KM |