Saxmundham, Suffolk
By Druce Estate & Letting Agents Ltd
£ 300,000
Reviews
3 out of 5 stars
Druce Estate & Letting Agents Ltd says ..
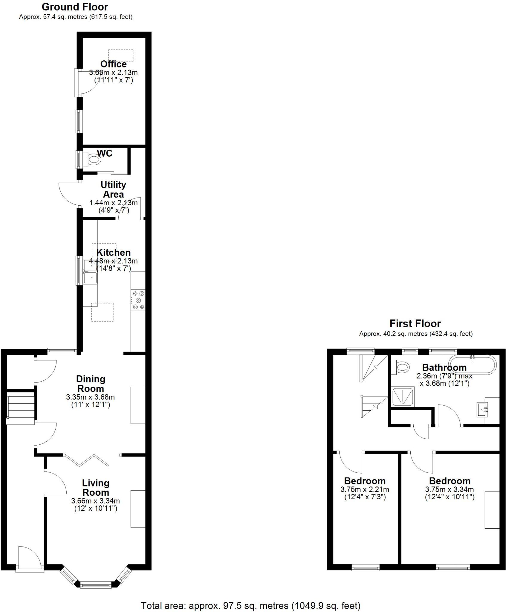
This stunning 2 bedroom (was 3) semi detached Victorian home has been tastefully renovated in late 2023/early 24 whilst still retaining some original features. The property also benefits from a good size garden with a studio/ guest room, outbuildings and parking to the front of the property. It's...
Property Oracle says ..
Therefore, we give this property 7 / 10. *Disclaimer: This is our option and does constitute a recommendation or financial advice. Do your own research. *
- Price
- 7
- Condition
- 8
- Location
- 7
- Land
- 7
- Bedrooms
- 2
- Bathrooms
- 1
- Sqft (est)
- 800.74
The heatmap indicates the level of crime in the area. The color of the heatmap indicates the crime severity and recency.
Metrics Year-on-Year
- Average area value
- 431,667.00 £Increased by 32.70 %
- Est sale value
- 303,480.46 £Increased by 6.76 %
- Average area rental value
- 1,100.00 £/moDecreased by 43.73 %
- Est letting value
- 0.00 £/moDecreased by 100.00 %
- Est rental Yield
- 3.06 %Decreased by 57.56 %
- Crime Rate
- 52.00 %Unchanged by 0.00 %
Agent Activity
Druce Estate & Letting Agents Ltd marked this listing as sold.
Druce Estate & Letting Agents Ltd created the listing.
Nearby Schools
| Name | Type | Ofsted | Distance |
|---|---|---|---|
| Meadow Children'S Centre | Children's Centre | 0.79 KM | |
| Set Saxmundham School | Free Schools | Good | 0.81 KM |
| Saxmundham Primary School | Academy Converter | 0.82 KM | |
| Kelsale Church Of England Voluntary Controlled Primary School | Voluntary Controlled School | Good | 1.39 KM |
| Benhall St Mary'S Church Of England Voluntary Controlled Primary School | Voluntary Controlled School | Good | 1.63 KM |
Images
Nearby Streets
| Name | Average Price | Average Sqft | Distance |
|---|---|---|---|
| Southwood Close | £ 0 | 0 | 0.00 KM |
| Chapel Road | £ 327,498 | 0 | 0.00 KM |
| Holly Way | £ 291,667 | 0 | 0.00 KM |
| Beech Road | £ 342,727 | 0 | 0.00 KM |
| Oak Close | £ 375,000 | 0 | 0.00 KM |
Nearby Transport
| Name | NLC | TLC | Distance |
|---|---|---|---|
| Saxmundham | 7224 | SAX | 0.13 KM |
| Darsham | 7211 | DSM | 7.56 KM |
Nearby Listings
| Address | Price | Type | Score | Distance |
|---|---|---|---|---|
| Saxmundham, Suffolk | £ 300,000 | BUY | 7 / 10 | 0.00 KM |
| Saxmundham | £ 215,000 | BUY | 7 / 10 | 0.07 KM |
| Albion Street, Saxmundham | £ 190,000 | BUY | Unknown | 0.17 KM |
| Bell Close, Saxmundham, IP17 | £ 160,000 | BUY | 6 / 10 | 0.17 KM |
| Saxmundham | £ 315,000 | BUY | 7 / 10 | 0.19 KM |
Nearby Properties
| Address | Price | Distance |
|---|---|---|
| 2 Alma Place | £ 157,000 | 0.12 KM |
| 1 Alma Place | £ 144,500 | 0.12 KM |
| 3 Alma Place | £ 122,500 | 0.14 KM |
| Station Cottage | £ 240,000 | 0.14 KM |
| 1a Station Approach | £ 131,750 | 0.14 KM |