Willow Drive, Johnstone, PA5
By Penny Lane Homes in Paisley Limited
£ 109,000
Reviews
3 out of 5 stars
Penny Lane Homes in Paisley Limited says ..
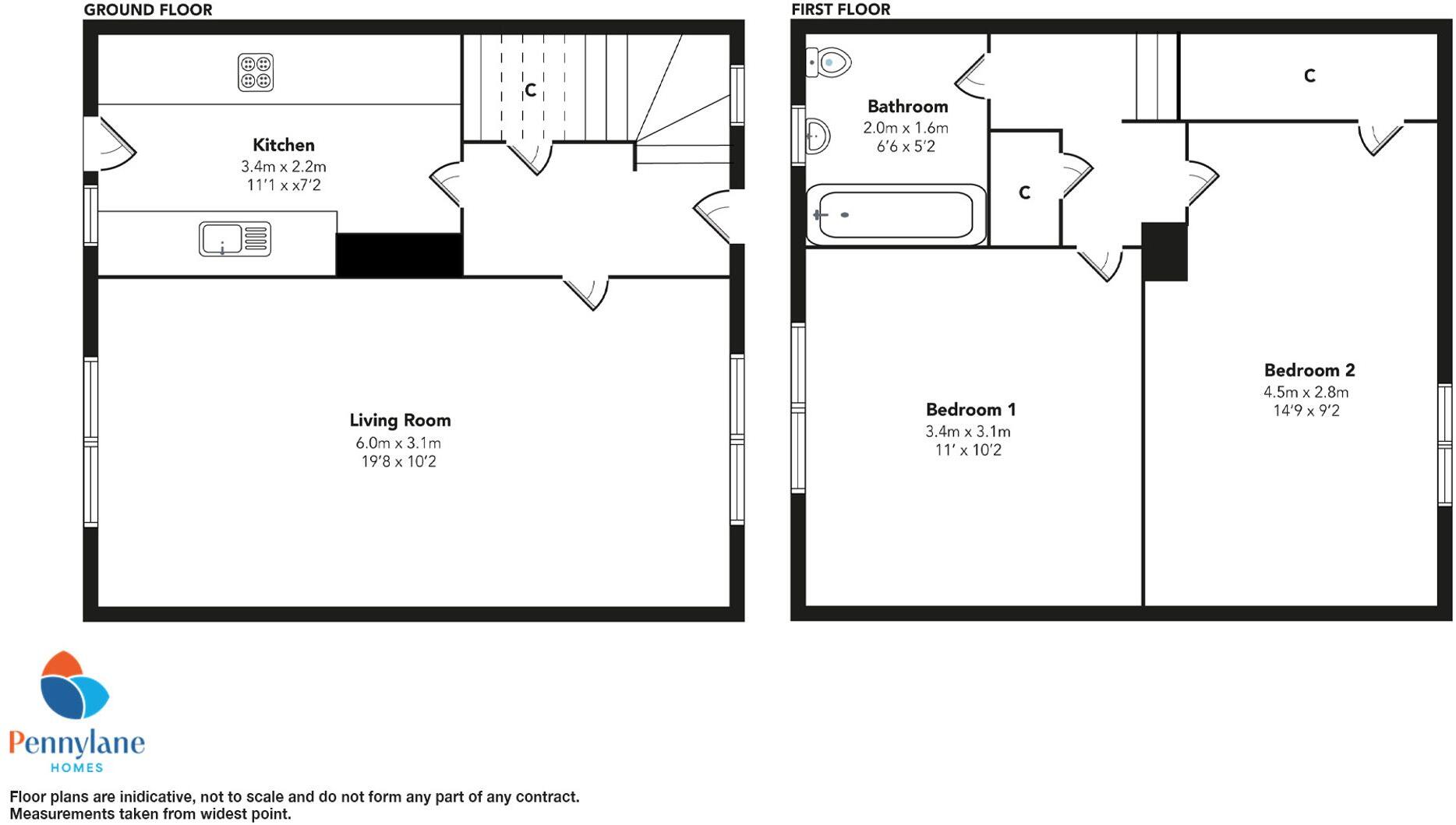
Spacious Two-Bedroom Mid-Terrace Home – Excellent Potential | Off-Street Parking | Large Rear Garden | JohnstoneThis spacious two-bedroom mid-terrace property is situated in a popular residential area of Johnstone and offers excellent potential for first-time buyers, investors, or anyone looking ...
Property Oracle says ..
This is a two-bedroom terraced house located on Willow Drive, Johnstone. The property is listed for £109,000 by Penny Lane Homes. It offers 564.24 sqft of living space. While the property could benefit from some modernisation, it features a good-sized garden and is located in an area with reasonable access to amenities and transport links. The price appears competitive compared to other properties in the vicinity, making it an attractive option for first-time buyers or investors willing to undertake some renovation work.
Therefore, we give this property 6 / 10. *Disclaimer: This is our option and does constitute a recommendation or financial advice. Do your own research. *
- Price
- 8
- Condition
- 5
- Location
- 6
- Land
- 7
- Bedrooms
- 2
- Bathrooms
- 1
- Sqft (est)
- 564.24
The heatmap indicates the level of crime in the area. The color of the heatmap indicates the crime severity and recency.
Metrics Year-on-Year
- Average area value
- 250,000.00 £Decreased by 10.99 %
- Est sale value
- 174,914.40 £Decreased by 0.96 %
- Average area rental value
- 900.00 £/moDecreased by 18.03 %
- Est letting value
- 564.24 £/moUnchanged by 0.00 %
- Est rental Yield
- 4.32 %Decreased by 7.89 %
- Crime Rate
- 0.00 %
Agent Activity
Penny Lane Homes in Paisley Limited created the listing.
Images
Nearby Streets
| Name | Average Price | Average Sqft | Distance |
|---|---|---|---|
| Ash Place | £ 0 | 0 | 0.00 KM |
| Fraser Avenue | £ 390,000 | 0 | 0.00 KM |
| Springfield Park | £ 115,000 | 0 | 0.00 KM |
| Larch Place | £ 0 | 0 | 0.00 KM |
| Thornside Road | £ 180,000 | 0 | 0.00 KM |
Nearby Transport
| Name | NLC | TLC | Distance |
|---|---|---|---|
| Johnstone (Renfrewshire) | 9648 | JHN | 0.72 KM |
| Milliken Park | 9658 | MIN | 3.33 KM |
| Howwood (Renfrewshire) | 1734 | HOZ | 6.88 KM |
| Paisley St James | 9664 | PYJ | 7.25 KM |
| Bishopton (Renfrewshire) | 9620 | BPT | 8.23 KM |
Nearby Listings
| Address | Price | Type | Score | Distance |
|---|---|---|---|---|
| Willow Drive, Johnstone, PA5 | £ 109,000 | BUY | 6 / 10 | 0.00 KM |
| Willow Drive, Johnstone, PA5 | £ 130,000 | BUY | Unknown | 0.05 KM |
| Willow Drive, Johnstone, Renfrewshire | £ 110,000 | BUY | 6 / 10 | 0.06 KM |
| Birch Crescent, Johnstone, PA5 | £ 128,500 | BUY | 6 / 10 | 0.14 KM |
| Willow Drive, Johnstone, PA5 | £ 115,000 | BUY | 7 / 10 | 0.16 KM |