Holbein Close, Basingstoke, Hampshire, RG21
By Bridges Estate Agents
£ 350,000
Reviews
3 out of 5 stars
Bridges Estate Agents says ..
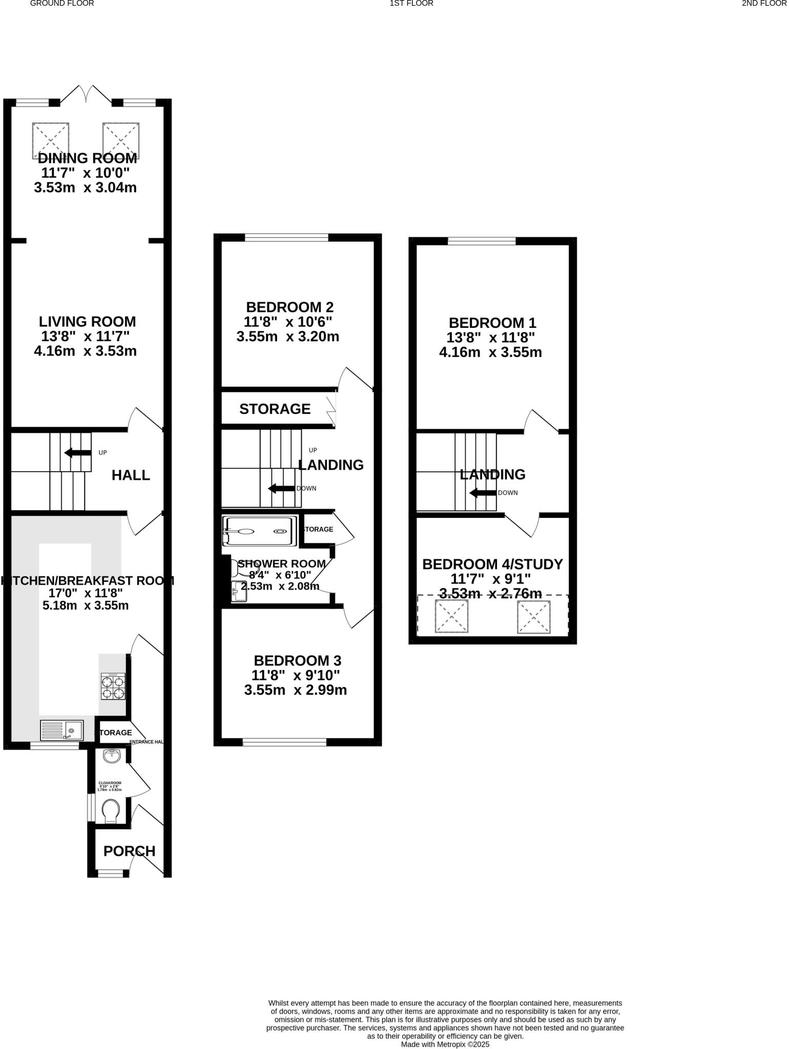
*** SOLD PRIOR TO LAUNCH*** Sitting in the popular area of Black Dam this three/four bedroom home is presented impeccably and offers extremely versatile accommodation over three floors. The entire ground floor is reserved for the living accommodation with a stunning and modern kitchen/breakf...
Property Oracle says ..
The property is a well-maintained 3-bedroom terraced house in a desirable location. It benefits from recent modernisation, including a contemporary kitchen and bathroom, and includes a small but usable rear garden. The asking price is reasonable in comparison to similar properties in the area, considering its condition and location.
Therefore, we give this property 7 / 10. *Disclaimer: This is our option and does constitute a recommendation or financial advice. Do your own research. *
- Price
- 8
- Condition
- 9
- Location
- 9
- Land
- 4
- Bedrooms
- 3
- Bathrooms
- 1
- Sqft (est)
- 1,259.81
The heatmap indicates the level of crime in the area. The color of the heatmap indicates the crime severity and recency.
Metrics Year-on-Year
- Average area value
- 361,250.00 £Increased by 16.86 %
- Est sale value
- 490,066.09 £Increased by 159.33 %
- Average area rental value
- 1,265.00 £/moDecreased by 5.17 %
- Est letting value
- 1,259.81 £/mo
- Est rental Yield
- 4.20 %Decreased by 18.92 %
- Crime Rate
- 5.00 %Unchanged by 0.00 %
Agent Activity
Bridges Estate Agents marked this listing as sold.
Bridges Estate Agents created the listing.
Nearby Schools
| Name | Type | Ofsted | Distance |
|---|---|---|---|
| Rucstall Primary School | Community School | Good | 0.10 KM |
| The Costello School | Academy Converter | Requires improvement | 0.83 KM |
| Queen Mary'S College | Academy 16-19 Converter | Good | 1.61 KM |
| Fairfields Primary School | Community School | Good | 1.70 KM |
| South View Junior School | Community School | Good | 2.20 KM |
Images
Nearby Streets
| Name | Average Price | Average Sqft | Distance |
|---|---|---|---|
| Black Dam Way | £ 0 | 0 | 0.00 KM |
| Westfield Road | £ 365,000 | 0 | 0.00 KM |
| Stubbs Road | £ 0 | 0 | 0.00 KM |
| Lea Close | £ 0 | 0 | 0.00 KM |
| Hackwood Lane | £ 0 | 0 | 0.00 KM |
Nearby Transport
| Name | NLC | TLC | Distance |
|---|---|---|---|
| Basingstoke | 5520 | BSK | 2.00 KM |
| Bramley (Hampshire) | 5500 | BMY | 8.23 KM |
Nearby Listings
| Address | Price | Type | Score | Distance |
|---|---|---|---|---|
| Holbein Close, Basingstoke, RG21 | £ 325,000 | BUY | 7 / 10 | 0.03 KM |
| Holbein Close, Basingstoke, RG21 | £ 250,000 | BUY | 5 / 10 | 0.06 KM |
| Renoir Close, Basingstoke, RG21 3EW | £ 385,000 | BUY | 6 / 10 | 0.09 KM |
| Renoir Close, Black Dam | £ 300,000 | BUY | 7 / 10 | 0.09 KM |
| Renoir Close, Basingstoke | £ 315,000 | BUY | 5 / 10 | 0.09 KM |
Nearby Properties
| Address | Price | Distance |
|---|---|---|
| 28 Holbein Close | £ 270,000 | 0.04 KM |
| 110 Holbein Close | £ 280,000 | 0.04 KM |
| 64 Holbein Close | £ 270,000 | 0.04 KM |
| 114 Holbein Close | £ 290,000 | 0.04 KM |
| 12 Holbein Close | £ 290,000 | 0.04 KM |