Terry Road, Stoke, Coventry
By Envisage Sales & Lettings
£ 220,000
Reviews
2 out of 5 stars
Envisage Sales & Lettings says ..
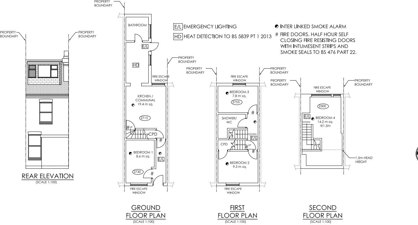
**HMO INVESTMENT OPPORTUNITY** - A Four bedroom HMO terraced house located within easy access of Coventry University, Coventry City Centre and the local amenities. Comprising ; Lounge, Four Bedrooms, Two Bathrooms & Fitted Kitchen. The property benefits from a rear garden, double glazing and...
Property Oracle says ..
This four-bedroom, two-bathroom terraced house in Stoke, Coventry, is marketed as an HMO investment opportunity due to its proximity to Coventry University and the city centre. The location is a key selling point, offering easy access to amenities and educational institutions, boosting potential rental income. While the property benefits from a rear garden, information on its size is lacking. The images reveal a generally acceptable interior condition; however, the exterior’s appearance suggests that some degree of maintenance and possible upgrades are necessary. The absence of key property details, such as the square footage and exact plot size, hinders a complete assessment of its value. A further consideration is the lack of precise condition details and the prevalence of similar properties listed at variable prices in the Terry Road area. More information about the property’s structural condition, maintenance history, and the exact details of the garden size would contribute to a more comprehensive valuation. The price of £220,000 appears reasonable, considering the location and potential rental income, but detailed property specifics are crucial for a definitive evaluation.
Therefore, we give this property 5 / 10. *Disclaimer: This is our option and does constitute a recommendation or financial advice. Do your own research. *
- Price
- 7
- Condition
- 5
- Location
- 7
- Land
- 2
- Bedrooms
- 4
- Bathrooms
- 2
The heatmap indicates the level of crime in the area. The color of the heatmap indicates the crime severity and recency.
Metrics Year-on-Year
- Average area value
- 234,977.00 £Increased by 10.88 %
- Average area rental value
- 1,065.00 £/moDecreased by 1.11 %
- Est rental Yield
- 5.44 %Decreased by 10.82 %
- Crime Rate
- 7.00 %Unchanged by 0.00 %
Agent Activity
Envisage Sales & Lettings created the listing.
Nearby Schools
| Name | Type | Ofsted | Distance |
|---|---|---|---|
| All Saints Church Of England Primary School | Voluntary Controlled School | Good | 0.43 KM |
| Blue Coat Church Of England School And Music College | Academy Converter | Good | 0.50 KM |
| Gosford Park Primary School | Community School | Good | 0.52 KM |
| Gosford Park Children'S Centre | Children's Centre | 0.52 KM | |
| Summit School | Other Independent Special School | 0.74 KM |
Images
Nearby Streets
| Name | Average Price | Average Sqft | Distance |
|---|---|---|---|
| Sky Blue Way | £ 0 | 0 | 0.00 KM |
| London Road | £ 180,000 | 0 | 0.00 KM |
| Spring Close | £ 0 | 0 | 0.00 KM |
| Vernon Close | £ 0 | 0 | 0.00 KM |
| Ringway Whitefriars | £ 0 | 0 | 0.00 KM |
Nearby Transport
| Name | NLC | TLC | Distance |
|---|---|---|---|
| Coventry | 1030 | COV | 2.15 KM |
| Coventry Arena | 7416 | CAA | 4.93 KM |
| Canley | 1129 | CNL | 5.92 KM |
| Bedworth | 1165 | BEH | 8.95 KM |
Nearby Listings
| Address | Price | Type | Score | Distance |
|---|---|---|---|---|
| Terry Road, Stoke, Coventry | £ 220,000 | BUY | 5 / 10 | 0.00 KM |
| Terry Road, Coventry, CV1 | £ 315,000 | BUY | 6 / 10 | 0.02 KM |
| Terry Road, Coventry, West Midlands, CV1 | £ 315,000 | BUY | 6 / 10 | 0.02 KM |
| Humber Avenue, Stoke, Coventry | £ 190,000 | BUY | Unknown | 0.04 KM |
| Terry Road, Coventry, CV1 2AW | £ 105,000 | BUY | 6 / 10 | 0.06 KM |
Nearby Properties
| Address | Price | Distance |
|---|---|---|
| 18 Terry Road | £ 28,150 | 0.00 KM |
| 26 Terry Road | £ 170,000 | 0.00 KM |
| 29 Terry Road | £ 51,000 | 0.00 KM |
| 44 Terry Road | £ 80,000 | 0.00 KM |
| 20 Terry Road | £ 145,000 | 0.00 KM |