Atkinsons Lane, Waltham
By Joy Walker Estate Agents
£ 214,950
Reviews
4 out of 5 stars
Joy Walker Estate Agents says ..
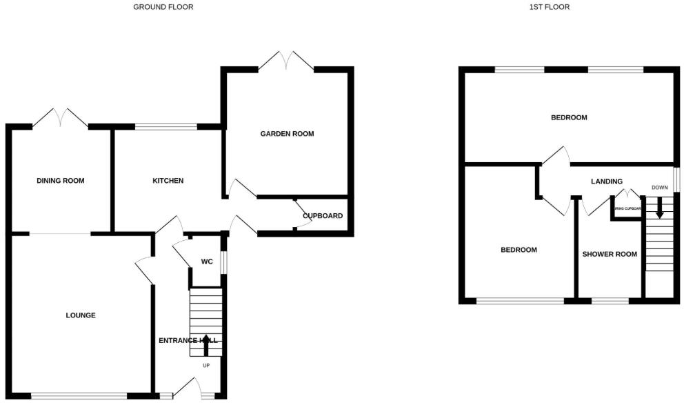
We are delighted to offer for sale this well maintained and beautifully modernised TWO DOUBLE BEDROOMS enjoying a cul de sac position just off Mill View within the sought after village of Waltham close to all local amenities, shops, pubs and highly regarded schools. Finished to a high standard an...
Property Oracle says ..
The property is a well-maintained 2 bedroom semi-detached house in a convenient location. It offers good value for money considering the average property price in the area and its excellent condition. The inclusion of a well-maintained garden and detached garage are added benefits.
Therefore, we give this property 8 / 10. *Disclaimer: This is our option and does constitute a recommendation or financial advice. Do your own research. *
- Price
- 8
- Condition
- 9
- Location
- 8
- Land
- 7
- Bedrooms
- 2
- Bathrooms
- 1
- Sqft (est)
- 1,205.00
The heatmap indicates the level of crime in the area. The color of the heatmap indicates the crime severity and recency.
Metrics Year-on-Year
- Average area value
- 360,817.00 £Increased by 12.73 %
- Est sale value
- 361,500.00 £Increased by 13.64 %
- Average area rental value
- 898.00 £/moDecreased by 30.82 %
- Est letting value
- 0.00 £/moDecreased by 100.00 %
- Est rental Yield
- 2.99 %Decreased by 38.60 %
- Crime Rate
- 29.00 %Unchanged by 0.00 %
Agent Activity
Joy Walker Estate Agents created the listing.
Nearby Schools
| Name | Type | Ofsted | Distance |
|---|---|---|---|
| Waltham Leas Primary Academy | Academy Converter | Good | 0.50 KM |
| Springfield Primary Academy | Academy Converter | Good | 1.90 KM |
| Fairfield Academy | Academy Converter | Good | 2.17 KM |
| Scartho Outreach | Children's Centre Linked Site | 2.23 KM | |
| Tollbar Academy | Academy Converter | Outstanding | 2.32 KM |
Images
Nearby Streets
| Name | Average Price | Average Sqft | Distance |
|---|---|---|---|
| Laburnum Close | £ 0 | 0 | 0.00 KM |
| Green Acres | £ 0 | 0 | 0.00 KM |
| Chiltern Drive | £ 210,000 | 0 | 0.00 KM |
| Claydon Way | £ 248,333 | 0 | 0.00 KM |
| The Green | £ 363,500 | 0 | 0.00 KM |
Nearby Transport
| Name | NLC | TLC | Distance |
|---|---|---|---|
| Grimsby Town | 6280 | GMB | 5.72 KM |
| Grimsby Docks | 6276 | GMD | 7.27 KM |
| Great Coates | 6275 | GCT | 7.68 KM |
| New Clee | 6289 | NCE | 8.03 KM |
| Cleethorpes | 6274 | CLE | 9.49 KM |
Nearby Listings
| Address | Price | Type | Score | Distance |
|---|---|---|---|---|
| Atkinsons Lane, Waltham, DN37 | £ 220,000 | BUY | 7 / 10 | 0.02 KM |
| Atkinsons Lane, Waltham | £ 187,500 | BUY | Unknown | 0.02 KM |
| Mill View, Waltham, Grimsby | £ 195,000 | BUY | 6 / 10 | 0.08 KM |
| Cheapside, Waltham, Grimsby, DN37 0HN | £ 425,000 | BUY | 7 / 10 | 0.09 KM |
| Mill View, Waltham, Grimsby, N.E. Lincs, DN37 OHT | £ 275,000 | BUY | 6 / 10 | 0.11 KM |
Nearby Properties
| Address | Price | Distance |
|---|---|---|
| 3 Atkinson Lane | £ 133,000 | 0.00 KM |
| 1 Atkinson Lane | £ 185,000 | 0.00 KM |
| 6 Atkinson Lane | £ 225,000 | 0.00 KM |
| 8 Atkinson Lane | £ 195,000 | 0.00 KM |
| 12 Atkinsons Lane | £ 210,000 | 0.02 KM |