Lampards says ..
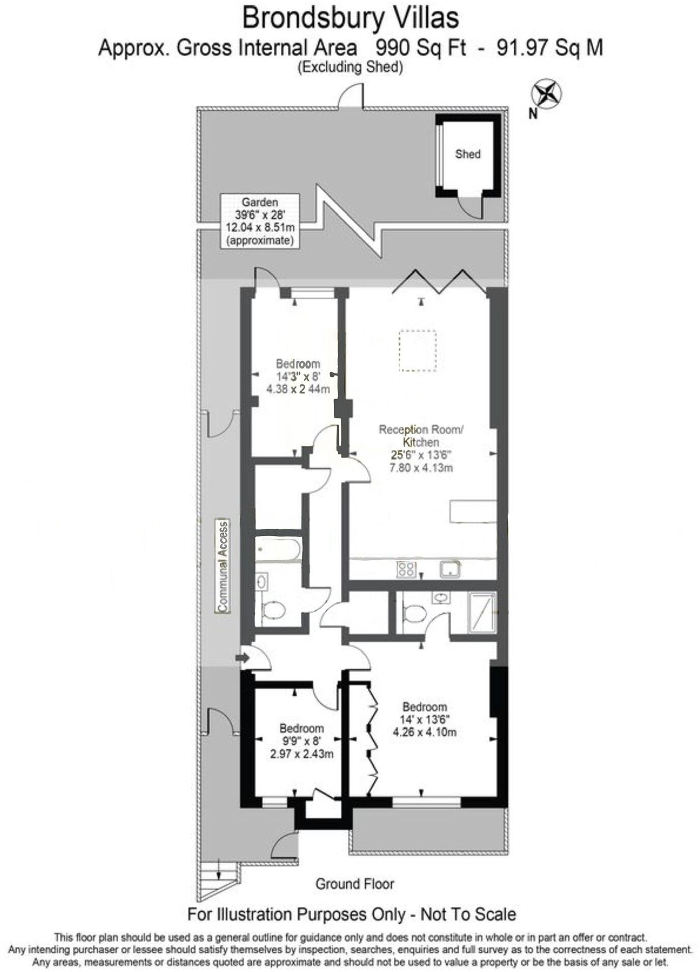
Guide Price: £850,000- £950,000 Lampards are instructed to sell this 3-bedroom, 2-bathroom garden maisonette, located on this tree lined street, the flat is in a Victorian period conversion that has a modern design occupying nearly 1000sq.ft of living space. The...
Property Oracle says ..
Therefore, we give this property 7 / 10. *Disclaimer: This is our option and does constitute a recommendation or financial advice. Do your own research. *
- Price
- 7
- Condition
- 8
- Location
- 8
- Land
- 7
- Bedrooms
- 3
- Bathrooms
- 2
- Sqft (est)
- 990.00
The heatmap indicates the level of crime in the area. The color of the heatmap indicates the crime severity and recency.
Metrics Year-on-Year
- Average area value
- 598,568.00 £Decreased by 21.57 %
- Est sale value
- 701,910.00 £Decreased by 22.77 %
- Average area rental value
- 2,229.00 £/moIncreased by 6.80 %
- Est letting value
- 1,980.00 £/moUnchanged by 0.00 %
- Est rental Yield
- 4.47 %Increased by 36.28 %
- Crime Rate
- 0.00 %
from 763,225.00 £
from 908,820.00 £
from 2,087.00 £/mo
from 1,980.00 £/mo
from 3.28 %
from 0.00 %
Agent Activity
Lampards created the listing.
Nearby Schools
| Name | Type | Ofsted | Distance |
|---|---|---|---|
| St Mary'S Rc Primary School | Voluntary Aided School | Good | 0.15 KM |
| The School Of The Islamic Republic Of Iran | Other Independent School | Inadequate | 0.43 KM |
| Granville Plus Nursery School | Local Authority Nursery School | Good | 0.45 KM |
| Granville Plus Children Centre | Children's Centre | 0.45 KM | |
| Kilburn Grange School | Free Schools | Good | 0.47 KM |
Images
Nearby Streets
| Name | Average Price | Average Sqft | Distance |
|---|---|---|---|
| Coral Mews | £ 0 | 0 | 0.00 KM |
| Kilburn High Road | £ 495,000 | 0 | 0.00 KM |
| Oxford Road | £ 0 | 0 | 0.00 KM |
| Granville Road | £ 0 | 0 | 0.00 KM |
| Mile Walk | £ 0 | 0 | 0.00 KM |
Nearby Transport
| Name | NLC | TLC | Distance |
|---|---|---|---|
| Kilburn High Road | 1415 | KBN | 0.47 KM |
| Queens Park (London) | 1419 | QPW | 0.99 KM |
| Brondesbury | 1437 | BSY | 1.17 KM |
| West Hampstead | 1421 | WHD | 1.35 KM |
| West Hampstead Thameslink | 1525 | WHP | 1.43 KM |
Nearby Listings
| Address | Price | Type | Score | Distance |
|---|---|---|---|---|
| Brondesbury Villas, London, NW6 | £ 850,000 | BUY | 7 / 10 | 0.00 KM |
| Brondesbury Villas, London, NW6 | £ 1,000,000 | BUY | 6 / 10 | 0.02 KM |
| Brondesbury Villas, London, NW6 | £ 850,000 | BUY | Unknown | 0.03 KM |
| Brondesbury Villas, London, NW6 | £ 600,000 | BUY | 6 / 10 | 0.03 KM |
| Brondesbury Villas, London, NW6 6AB | £ 720,000 | BUY | 6 / 10 | 0.05 KM |
Nearby Properties
| Address | Price | Distance |
|---|---|---|
| 49a Brondesbury Villas | £ 460,000 | 0.00 KM |
| 65c Brondesbury Villas | £ 447,950 | 0.00 KM |
| 41a Brondesbury Villas | £ 400,000 | 0.00 KM |
| 41e Brondesbury Villas | £ 268,000 | 0.00 KM |
| 39c Brondesbury Villas | £ 175,000 | 0.00 KM |