Rantree Fold, Lee Chapel North, Essex, SS16
By Temme English
£ 350,000
Reviews
3 out of 5 stars
Temme English says ..
Temme English are delighted to offer this exceptionally well located and generously proportioned three bedroom family home situated within the highly desirable location of Lee Chapel South! Sold with NO ONWARD CHAIN!
Property Oracle says ..
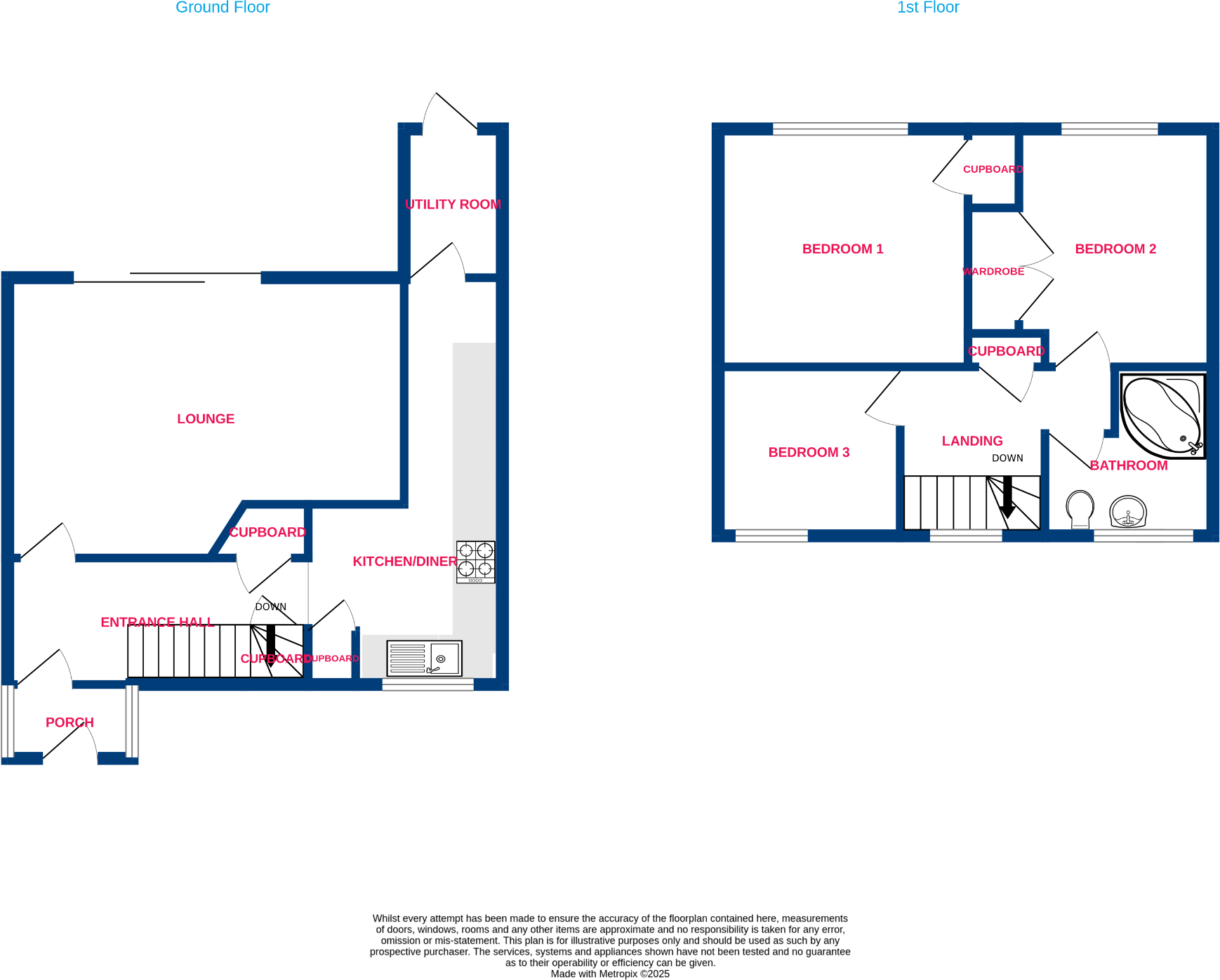
The property is a three-bedroom, one-bathroom terraced house with a total area of 900 square feet. It benefits from a garden, which is a desirable feature in the UK housing market. The images show the property to be in generally good condition, although some modernisation may be desirable. The kitchen and bathroom appear dated but functional. The property’s location in Lee Chapel North, Basildon, places it within proximity to several amenities. Lee Chapel Primary School is less than half a kilometer away, while Woodlands School, rated “Good” by Ofsted, is approximately 0.86km from the property. Basildon train station, providing links to London, is only 1.07km away, offering convenient transport links.
The list price of £350,000 needs to be considered in the context of comparable properties in the area. While there’s a lack of precise square footage data for nearby properties, several comparable three-bedroom terraced houses on Rantree Fold itself have recently sold for prices ranging from £100,000 to £320,000. Other nearby streets show average prices around £300,000 for similar properties. This suggests that the list price of £350,000 might be at the higher end of the market value, especially considering the apparent need for some modernisation. However, the presence of a garden and the convenient location could justify a slightly higher price compared to properties without these features.
Therefore, we give this property 7 / 10. *Disclaimer: This is our option and does constitute a recommendation or financial advice. Do your own research. *
- Price
- 6
- Condition
- 7
- Location
- 8
- Land
- 7
- Bedrooms
- 3
- Bathrooms
- 1
- Sqft (est)
- 900.00
The heatmap indicates the level of crime in the area. The color of the heatmap indicates the crime severity and recency.
Metrics Year-on-Year
- Average area value
- 396,667.00 £Increased by 2.81 %
- Est sale value
- 332,100.00 £Decreased by 16.52 %
- Average area rental value
- 1,323.00 £/moDecreased by 7.80 %
- Est letting value
- 900.00 £/moUnchanged by 0.00 %
- Est rental Yield
- 4.00 %Decreased by 10.31 %
- Crime Rate
- 2.00 %Unchanged by 0.00 %
Agent Activity
Temme English marked this listing as sold.
Temme English created the listing.
Nearby Schools
| Name | Type | Ofsted | Distance |
|---|---|---|---|
| Lee Chapel Primary School | Academy Converter | 0.46 KM | |
| Woodlands School | Academy Sponsor Led | Good | 0.86 KM |
| St Anne Line Catholic Infant School | Voluntary Aided School | Good | 0.93 KM |
| St Anne Line Catholic Junior School | Voluntary Aided School | Good | 0.93 KM |
| Kingswood Primary School And Nursery | Foundation School | Good | 1.69 KM |
Images
Nearby Streets
| Name | Average Price | Average Sqft | Distance |
|---|---|---|---|
| Hazel Road | £ 0 | 0 | 0.00 KM |
| Dixon Road | £ 0 | 0 | 0.00 KM |
| Clayton Way | £ 0 | 0 | 0.00 KM |
| Swan Grove | £ 0 | 0 | 0.00 KM |
| Clark Street | £ 0 | 0 | 0.00 KM |
Nearby Transport
| Name | NLC | TLC | Distance |
|---|---|---|---|
| Basildon | 7494 | BSO | 1.07 KM |
| Laindon | 7445 | LAI | 2.75 KM |
| Stanford-Le-Hope | 7458 | SFO | 6.08 KM |
| Pitsea | 7452 | PSE | 6.37 KM |
| Billericay | 6871 | BIC | 8.08 KM |
Nearby Listings
| Address | Price | Type | Score | Distance |
|---|---|---|---|---|
| Rantree Fold, Lee Chapel North, Essex, SS16 | £ 350,000 | BUY | 7 / 10 | 0.00 KM |
| Rantree Fold, Lee Chapel South, SS16 | £ 325,000 | BUY | Unknown | 0.05 KM |
| Rantree Fold, Basildon | £ 340,000 | BUY | 7 / 10 | 0.07 KM |
| Rantree Fold, Basildon, SS16 | £ 415,000 | BUY | 6 / 10 | 0.07 KM |
| Gernons, Basildon, Essex, SS16 | £ 400,000 | BUY | 7 / 10 | 0.09 KM |
Nearby Properties
| Address | Price | Distance |
|---|---|---|
| 94 Rantree Fold | £ 100,000 | 0.00 KM |
| 84 Rantree Fold | £ 320,000 | 0.00 KM |
| 74 Rantree Fold | £ 140,000 | 0.00 KM |
| 81 Rantree Fold | £ 234,500 | 0.00 KM |
| 90 Rantree Fold | £ 293,000 | 0.00 KM |