MO
Barrow Brook Close, Barrow, Clitheroe, Lancashire, BB7
By Mortimers Chartered Surveyors
£ 320,000
Mortimers Chartered Surveyors says ..
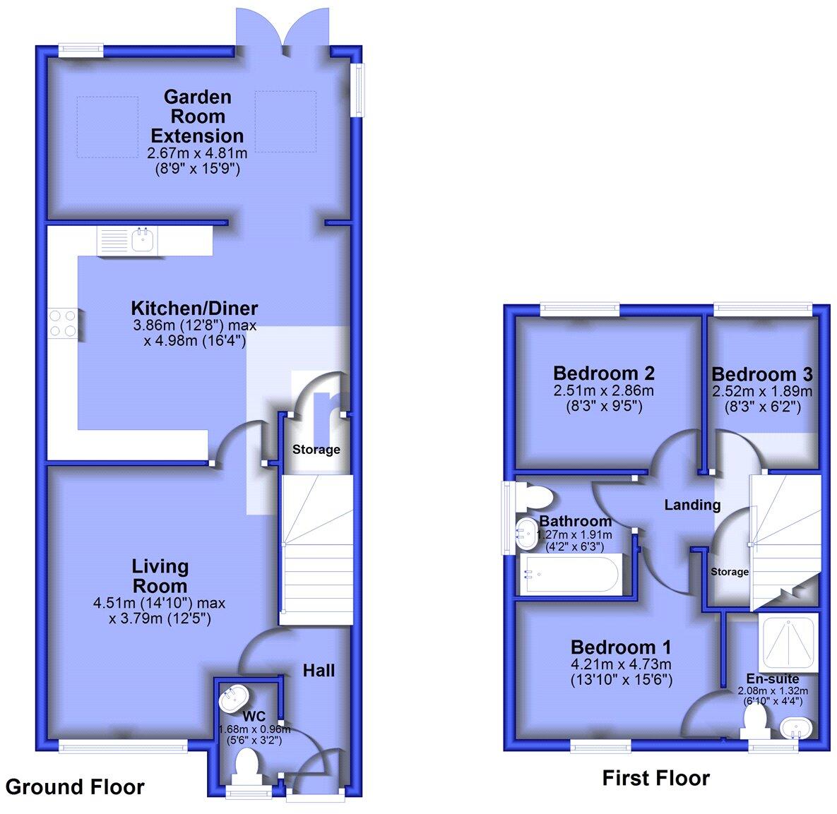
An immaculate modern detached home situated in a cul de sac location within Barrow, within a short walk of the local Primary School and ideal for access out onto the A59 for commuting. Beautifully extended by the current owners with pitched single storey and vaulted ceiling, the Velux...
- Bedrooms
- 3
- Bathrooms
- 2
The heatmap indicates the level of crime in the area. The color of the heatmap indicates the crime severity and recency.
Metrics Year-on-Year
- Average area value
- 347,454.00 £Decreased by 8.66 %
- Average area rental value
- 1,100.00 £/moDecreased by 5.98 %
- Est rental Yield
- 3.80 %Increased by 2.98 %
- Crime Rate
- 60.00 %Unchanged by 0.00 %
from 380,406.00 £
from 1,170.00 £/mo
from 3.69 %
from 60.00 %
Agent Activity
Mortimers Chartered Surveyors created the listing.
Nearby Schools
| Name | Type | Ofsted | Distance |
|---|---|---|---|
| Barrow Urc Primary School | Voluntary Controlled School | Outstanding | 0.46 KM |
| Oakhill School | Other Independent School | 1.30 KM | |
| Spring Wood Children'S Centre | Children's Centre Linked Site | 2.16 KM | |
| Whalley Church Of England Primary School | Voluntary Aided School | Good | 2.20 KM |
| St James' Church Of England Primary School, Clitheroe | Voluntary Aided School | Good | 3.20 KM |
Images
Nearby Streets
| Name | Average Price | Average Sqft | Distance |
|---|---|---|---|
| Barrow Bridge | £ 240,000 | 0 | 0.00 KM |
| Cypress Square | £ 0 | 0 | 0.00 KM |
| Hawthorn Road | £ 312,749 | 0 | 0.00 KM |
| Shepherds Close | £ 0 | 0 | 0.00 KM |
| Hawthorn Road | £ 0 | 0 | 0.00 KM |
Nearby Transport
| Name | NLC | TLC | Distance |
|---|---|---|---|
| Whalley (Lancashire) | 2736 | WHE | 2.10 KM |
| Clitheroe | 2574 | CLH | 3.88 KM |
| Langho | 2735 | LHO | 6.52 KM |
| Rishton | 2580 | RIS | 8.65 KM |
| Huncoat | 2558 | HCT | 9.54 KM |
Nearby Listings
| Address | Price | Type | Score | Distance |
|---|---|---|---|---|
| Barrow Brook Close, Barrow, Clitheroe, Lancashire, BB7 | £ 320,000 | BUY | Unknown | 0.00 KM |
| Barrow Brook Close, Barrow, BB7 | £ 430,000 | BUY | 8 / 10 | 0.06 KM |
| Barrow Brook Close, Barrow, Lancashire, BB7 | £ 159,950 | BUY | 8 / 10 | 0.09 KM |
| Barrow Brook Close, Barrow, Clitheroe, Lancashire, BB7 | £ 169,950 | BUY | 8 / 10 | 0.09 KM |
| Barrow Brook Close, Barrow, Ribble Valley | £ 159,995 | BUY | 6 / 10 | 0.10 KM |
Nearby Properties
| Address | Price | Distance |
|---|---|---|
| 21 Barrow Brook Close | £ 240,000 | 0.05 KM |
| 27 Barrow Brook Close | £ 330,000 | 0.05 KM |
| 19 Barrow Brook Close | £ 227,000 | 0.05 KM |
| 11 Barrow Brook Close | £ 238,000 | 0.05 KM |
| 4 Barrow Brook Close | £ 365,000 | 0.05 KM |