Margaret Grove, Harborne, Birmingham, B17
Hadleigh logo

Margaret Grove, Harborne, Birmingham, B17

By Hadleigh

£ 570,000

Reviews

4 out of 5 stars

Hadleigh says ..

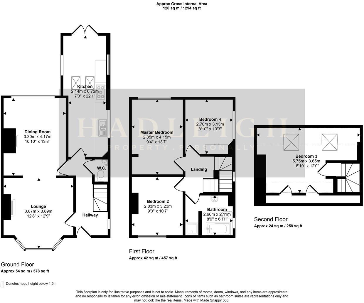
Hadleigh Estate Agents are delighted to offer this fantastic four bedroom semi detached home for sale. Situated on Margaret Grove within the ever popular Moor Pool Estate. The property comprises fore garden and entrance hallway. Spacious lounge and dining area, benefitting from under st...

Property Oracle says ..

This property is a 4-bedroom semi-detached house located in Harborne, Birmingham. Harborne is a desirable area known for its excellent schools, local amenities, and convenient transport links. The property itself appears well-maintained and modernised, with a contemporary kitchen and updated bathrooms. The inclusion of a garden and what seems to be a converted shed into a gym/office space adds to its appeal. The list price is slightly above the average price for the area, but considering the property’s condition, location, and additional features, it could be considered reasonable for the right buyer.

Therefore, we give this property 8 / 10. *Disclaimer: This is our option and does constitute a recommendation or financial advice. Do your own research. *

Price
7
Condition
9
Location
9
Land
7
Bedrooms
4
Bathrooms
1
Sqft (est)
1,291.67

The heatmap indicates the level of crime in the area. The color of the heatmap indicates the crime severity and recency.

Metrics Year-on-Year

Average area value
430,989.00 £
Increased by 6.80 %
from 403,536.00 £
Est sale value
636,793.31 £
Increased by 74.20 %
from 365,542.61 £
Average area rental value
1,439.00 £/mo
Increased by 15.21 %
from 1,249.00 £/mo
Est letting value
1,291.67 £/mo
from 0.00 £/mo
Est rental Yield
4.01 %
Increased by 8.09 %
from 3.71 %
Crime Rate
2.00 %
Unchanged by 0.00 %
from 2.00 %

Agent Activity

  • Hadleigh created the listing.

Nearby Schools

NameTypeOfstedDistance
Harborne Primary SchoolCommunity SchoolOutstanding0.50 KM
St Mary'S Catholic Primary SchoolVoluntary Aided SchoolOutstanding0.74 KM
Chad Vale Primary SchoolCommunity SchoolGood0.89 KM
Woodbourne Hospital SchoolOther Independent SchoolGood0.92 KM
St Peters Cofe Primary SchoolVoluntary Aided SchoolGood1.18 KM

Images

Hadleigh Estate Agents-49.jpg Hadleigh Estate Agents-1.jpg Hadleigh Estate Agents-52.jpg Hadleigh Estate Agents-15.jpg Hadleigh Estate Agents-2.jpg Lounge Hadleigh Estate Agents-5.jpg Hadleigh Estate Agents-6.jpg Hadleigh Estate Agents-10.jpg Dining Room Kitchen Hadleigh Estate Agents-14.jpg Hadleigh Estate Agents-17.jpg Hadleigh Estate Agents-19.jpg W.C Bedroom 2 Hadleigh Estate Agents-27.jpg Hadleigh Estate Agents-29.jpg Bedroom 4 Hadleigh Estate Agents-23.jpg Hadleigh Estate Agents-24.jpg Bedroom 3 Hadleigh Estate Agents-31.jpg Bathroom Hadleigh Estate Agents-34.jpg Master Bedroom Hadleigh Estate Agents-37.jpg Hadleigh Estate Agents-38.jpg Hadleigh Estate Agents-40.jpg Garden Studio Hadleigh Estate Agents-45.jpg Hadleigh Estate Agents-47.jpg Location Location Hadleigh Estate Agents-7.jpg Hadleigh Estate Agents-2.jpg Studio Garden Hadleigh Estate Agents-5.jpg Hadleigh Estate Agents-6.jpg

Nearby Streets

NameAverage PriceAverage SqftDistance
Eastway £ 000.00 KM
Forest Drive £ 230,25000.00 KM
Umpire Close £ 775,00000.00 KM
The Square £ 000.00 KM
Vine Terrace £ 328,75000.00 KM

Nearby Transport

NameNLCTLCDistance
University (Birmingham)4504UNI2.31 KM
Selly Oak1105SLY3.09 KM
Smethwick Rolfe Street1150SMR4.12 KM
Five Ways4503FWY4.56 KM
The Hawthorns4523THW4.80 KM

Nearby Listings

AddressPriceTypeScoreDistance
Margaret Grove, Harborne, Birmingham, B17 £ 570,000BUY8 / 100.00 KM
Ravenhurst Road, Birmingham £ 250,000BUY7 / 100.05 KM
Ravenhurst Road, Harborne, Birmingham, B17 9HR £ 675,000BUY7 / 100.08 KM
Margaret Grove, Harborne, Birmingham, B17 £ 555,000BUY7 / 100.09 KM
Ravenhurst Road, Harborne, Birmingham, B17 £ 270,000BUY7 / 100.10 KM

Nearby Properties

AddressPriceDistance
7 Kenrick Close £ 535,0000.07 KM
128 Ravenhurst Road £ 268,0000.09 KM
114 Ravenhurst Road £ 137,0000.09 KM
120 Ravenhurst Road £ 205,0000.09 KM
132 Ravenhurst Road £ 217,5000.09 KM