Yes Move says ..
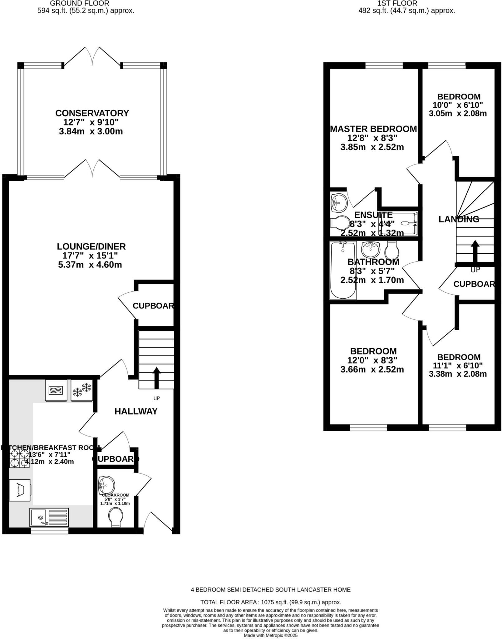
A fabulous 4 Bedroom Semi Detached Home located within one of South Lancaster's most desirable locations; Quernmore Park. Situated within a 2 minute stroll from the beautiful Williamson Park and Lancaster Royal Grammar School.
Property Oracle says ..
Therefore, we give this property 7 / 10. *Disclaimer: This is our option and does constitute a recommendation or financial advice. Do your own research. *
- Price
- 6
- Condition
- 8
- Location
- 8
- Land
- 7
- Bedrooms
- 4
- Bathrooms
- 3
- Sqft (est)
- 880.16
The heatmap indicates the level of crime in the area. The color of the heatmap indicates the crime severity and recency.
Metrics Year-on-Year
- Average area value
- 231,813.00 £Increased by 7.66 %
- Est sale value
- 248,205.12 £Increased by 17.99 %
- Average area rental value
- 911.00 £/moIncreased by 18.16 %
- Est letting value
- 880.16 £/mo
- Est rental Yield
- 4.72 %Increased by 9.77 %
- Crime Rate
- 2.00 %Unchanged by 0.00 %
from 215,316.00 £
from 210,358.24 £
from 771.00 £/mo
from 0.00 £/mo
from 4.30 %
from 2.00 %
Agent Activity
Yes Move created the listing.
Nearby Schools
| Name | Type | Ofsted | Distance |
|---|---|---|---|
| Lancaster Christ Church Church Of England Primary School | Voluntary Aided School | Good | 0.25 KM |
| Central Lancaster High School | Academy Converter | 0.55 KM | |
| Castle View Primary | Academy Sponsor Led | 0.76 KM | |
| Firbank Children'S Centre | Children's Centre | 0.87 KM | |
| Lancaster Royal Grammar School | Academy Converter | 1.02 KM |
Images
Nearby Streets
| Name | Average Price | Average Sqft | Distance |
|---|---|---|---|
| Lowther Road | £ 0 | 0 | 0.00 KM |
| Stone Row Head | £ 0 | 0 | 0.00 KM |
| Keswick Walk | £ 0 | 0 | 0.00 KM |
| Quernmore Road | £ 155,000 | 0 | 0.00 KM |
| Park Avenue | £ 0 | 0 | 0.00 KM |
Nearby Transport
| Name | NLC | TLC | Distance |
|---|---|---|---|
| Lancaster | 2685 | LAN | 2.90 KM |
| Bare Lane | 2690 | BAR | 6.58 KM |
| Carnforth | 2640 | CNF | 8.95 KM |
| Morecambe | 2695 | MCM | 10.00 KM |
Nearby Listings
| Address | Price | Type | Score | Distance |
|---|---|---|---|---|
| Nightingale Hall Road, Lancaster | £ 325,000 | BUY | 7 / 10 | 0.00 KM |
| Ellwood Square, Lancaster | £ 320,000 | BUY | 6 / 10 | 0.04 KM |
| Nightingale Hall Road, Quernmore Park | Stunning four bedroom detached home with beautiful open plan kitchen | £ 500,000 | BUY | Unknown | 0.10 KM |
| Dennison Close, Lancaster | Freehold, No Onward Chain! | £ 220,000 | BUY | Unknown | 0.12 KM |
| Macdonald Way, Lancaster | A short stroll form LRGS & Williamson Park | £ 415,000 | BUY | Unknown | 0.12 KM |
Nearby Properties
| Address | Price | Distance |
|---|---|---|
| 3 Pottery Gardens | £ 249,995 | 0.05 KM |
| 24 Macdonald Way | £ 230,495 | 0.12 KM |
| 2 Ellwood Square | £ 239,995 | 0.13 KM |
| 45 Derwent Road | £ 390,000 | 0.55 KM |
| 1a Derwent Road | £ 435,000 | 0.55 KM |