GA
Marple Road, Chisworth, Glossop
By Gascoigne Halman
£ 250,000
Reviews
3 out of 5 stars
Gascoigne Halman says ..
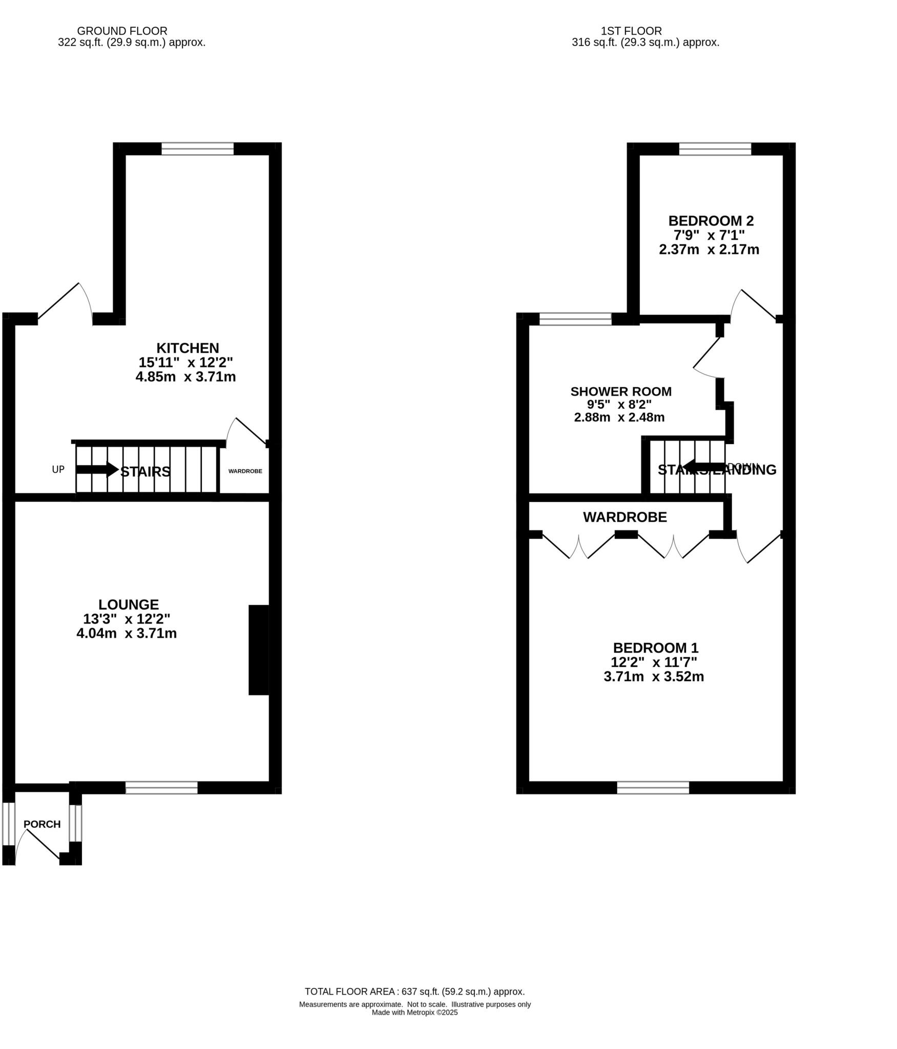
NO ONWARD CHAIN. A charming two bedroom stone cottage which is presented to a high standard throughout and benefits from a modern fitted kitchen and stylish shower room. There is a good sized, easy to maintain garden and a residents carpark over the road.
Property Oracle says ..
Therefore, we give this property 7 / 10. *Disclaimer: This is our option and does constitute a recommendation or financial advice. Do your own research. *
- Price
- 7
- Condition
- 8
- Location
- 7
- Land
- 6
- Bedrooms
- 2
- Bathrooms
- 1
- Sqft (est)
- 629.24
The heatmap indicates the level of crime in the area. The color of the heatmap indicates the crime severity and recency.
Metrics Year-on-Year
- Average area value
- 384,737.00 £Decreased by 1.20 %
- Est sale value
- 256,100.68 £Increased by 15.95 %
- Average area rental value
- 1,963.00 £/moIncreased by 39.81 %
- Est letting value
- 1,258.48 £/moIncreased by 100.00 %
- Est rental Yield
- 6.12 %Increased by 41.34 %
- Crime Rate
- 31.00 %Unchanged by 0.00 %
from 389,410.00 £
from 220,863.24 £
from 1,404.00 £/mo
from 629.24 £/mo
from 4.33 %
from 31.00 %
Agent Activity
Gascoigne Halman created the listing.
Nearby Schools
| Name | Type | Ofsted | Distance |
|---|---|---|---|
| Charlesworth Voluntary Controlled Primary School | Voluntary Controlled School | Good | 1.35 KM |
| Broadbottom Church Of England Primary School | Voluntary Controlled School | Requires improvement | 2.32 KM |
| St Margaret'S Catholic Voluntary Academy | Academy Converter | 2.59 KM | |
| Gamesley Children'S Centre | Children's Centre | 2.63 KM | |
| Mottram Cofe Primary School | Voluntary Aided School | Good | 3.15 KM |
Images
Nearby Streets
| Name | Average Price | Average Sqft | Distance |
|---|---|---|---|
| New Mills Road | £ 522,475 | 0 | 0.00 KM |
| St. Anne's Street | £ 0 | 0 | 0.00 KM |
Nearby Transport
| Name | NLC | TLC | Distance |
|---|---|---|---|
| Broadbottom | 2892 | BDB | 2.11 KM |
| Hattersley | 2604 | HTY | 4.48 KM |
| Dinting | 2893 | DTG | 4.58 KM |
| Hadfield | 2896 | HDF | 5.80 KM |
| Godley | 2948 | GDL | 6.23 KM |
Nearby Listings
| Address | Price | Type | Score | Distance |
|---|---|---|---|---|
| Marple Road, Chisworth, Glossop | £ 250,000 | BUY | 7 / 10 | 0.00 KM |
| Kinderlee Way, Chisworth, Glossop | £ 205,000 | BUY | Unknown | 0.15 KM |
| Kinderlee Way, Chisworth, Glossop | £ 210,000 | BUY | Unknown | 0.15 KM |
| Kinderlee Way, Chisworth, SK13 5DB | £ 330,000 | BUY | Unknown | 0.15 KM |
| Kinderlee Way, Chisworth, Glossop | £ 220,000 | BUY | 6 / 10 | 0.15 KM |
Nearby Properties
| Address | Price | Distance |
|---|---|---|
| 121 Marple Road | £ 180,000 | 0.42 KM |
| 127 Marple Road | £ 8,000 | 0.42 KM |
| 147 Marple Road | £ 160,995 | 0.42 KM |
| 149 Marple Road | £ 212,500 | 0.42 KM |
| 131 Marple Road | £ 152,500 | 0.42 KM |