Solo Homes Ltd says ..
A superb opportunity to purchase this brand new property at the highly anticipated development of Greywood Way, Harworth. Discover the perfect blend of modern living and picturesque surroundings in this three bedroom end terrace in Harworth. Available on a shared ownership basis, this is a grea...
Property Oracle says ..
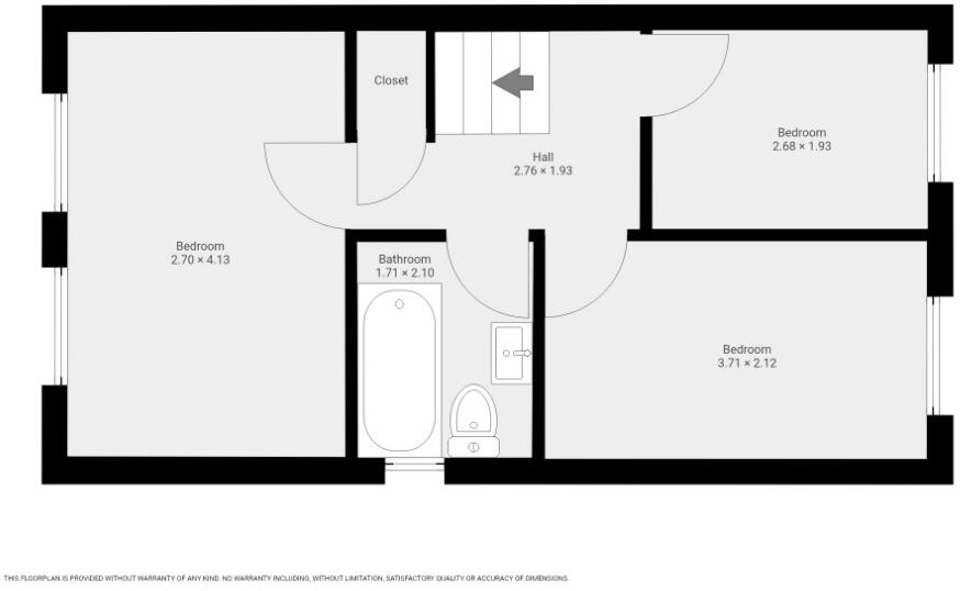
This end-of-terrace property, located on Belper Grove in Harworth, Nottinghamshire, is listed by Solo Homes Ltd. Featuring 3 bedrooms and 1 bathroom, the property is offered at a very attractive price of £17,999, significantly lower than the average property price in the area. The images suggest the property is in modern condition, with a newly fitted kitchen and bathroom. It also benefits from a garden. The property is located close to local schools, including Harworth Cofe Academy. The listing price reflects a shared ownership scheme.
Therefore, we give this property 7 / 10. *Disclaimer: This is our option and does constitute a recommendation or financial advice. Do your own research. *
- Price
- 9
- Condition
- 8
- Location
- 6
- Land
- 6
- Bedrooms
- 3
- Bathrooms
- 1
The heatmap indicates the level of crime in the area. The color of the heatmap indicates the crime severity and recency.
Metrics Year-on-Year
- Average area value
- 271,222.00 £Increased by 30.43 %
- Average area rental value
- 1,008.00 £/moIncreased by 15.86 %
- Est rental Yield
- 4.46 %Decreased by 11.16 %
- Crime Rate
- 3.00 %Unchanged by 0.00 %
Agent Activity
Solo Homes Ltd created the listing.
Nearby Schools
| Name | Type | Ofsted | Distance |
|---|---|---|---|
| Harworth Cofe Academy | Academy Converter | Good | 0.87 KM |
| Harworth & Bircotes Children'S Centre | Children's Centre | 1.71 KM | |
| St Patrick'S Catholic Primary School | Voluntary Aided School | Good | 2.49 KM |
| Serlby Park Academy | Academy Sponsor Led | Good | 2.66 KM |
| Hesley Holdings Limited | Special Post 16 Institution | 4.17 KM |
Images
Nearby Streets
| Name | Average Price | Average Sqft | Distance |
|---|---|---|---|
| Church Lane | £ 0 | 0 | 0.00 KM |
| Syringa Court | £ 0 | 0 | 0.00 KM |
| Devonshire Road | £ 0 | 0 | 0.00 KM |
| Brailsford Court | £ 296,000 | 0 | 0.00 KM |
| Smith Square | £ 169,950 | 0 | 0.00 KM |
Nearby Listings
| Address | Price | Type | Score | Distance |
|---|---|---|---|---|
| Taddington Mews, Greywood Way, Harworth | £ 184,995 | BUY | 7 / 10 | 0.00 KM |
| Taddington Mews, Greywood Way, Harworth | £ 259,995 | BUY | Unknown | 0.00 KM |
| Taddington Mews, Greywood Way, Harworth | £ 245,995 | BUY | 7 / 10 | 0.00 KM |
| Belper Grove, Harworth | £ 17,999 | BUY | 7 / 10 | 0.00 KM |
| Taddington Mews, Greywood Way, Harworth | £ 174,995 | BUY | 6 / 10 | 0.00 KM |
Nearby Properties
| Address | Price | Distance |
|---|---|---|
| Honeysuckle Barn | £ 400,000 | 0.01 KM |
| The Grange | £ 475,000 | 0.01 KM |
| Appletree Cottage | £ 40,000 | 0.01 KM |
| Granary | £ 175,000 | 0.03 KM |
| Hip End | £ 460,000 | 0.03 KM |