Areley Lane, Stourport-on-Severn, Worcestershire
PH

Areley Lane, Stourport-on-Severn, Worcestershire

By Phipps & Pritchard

£ 1,100,000

Reviews

3 out of 5 stars

Phipps & Pritchard says ..

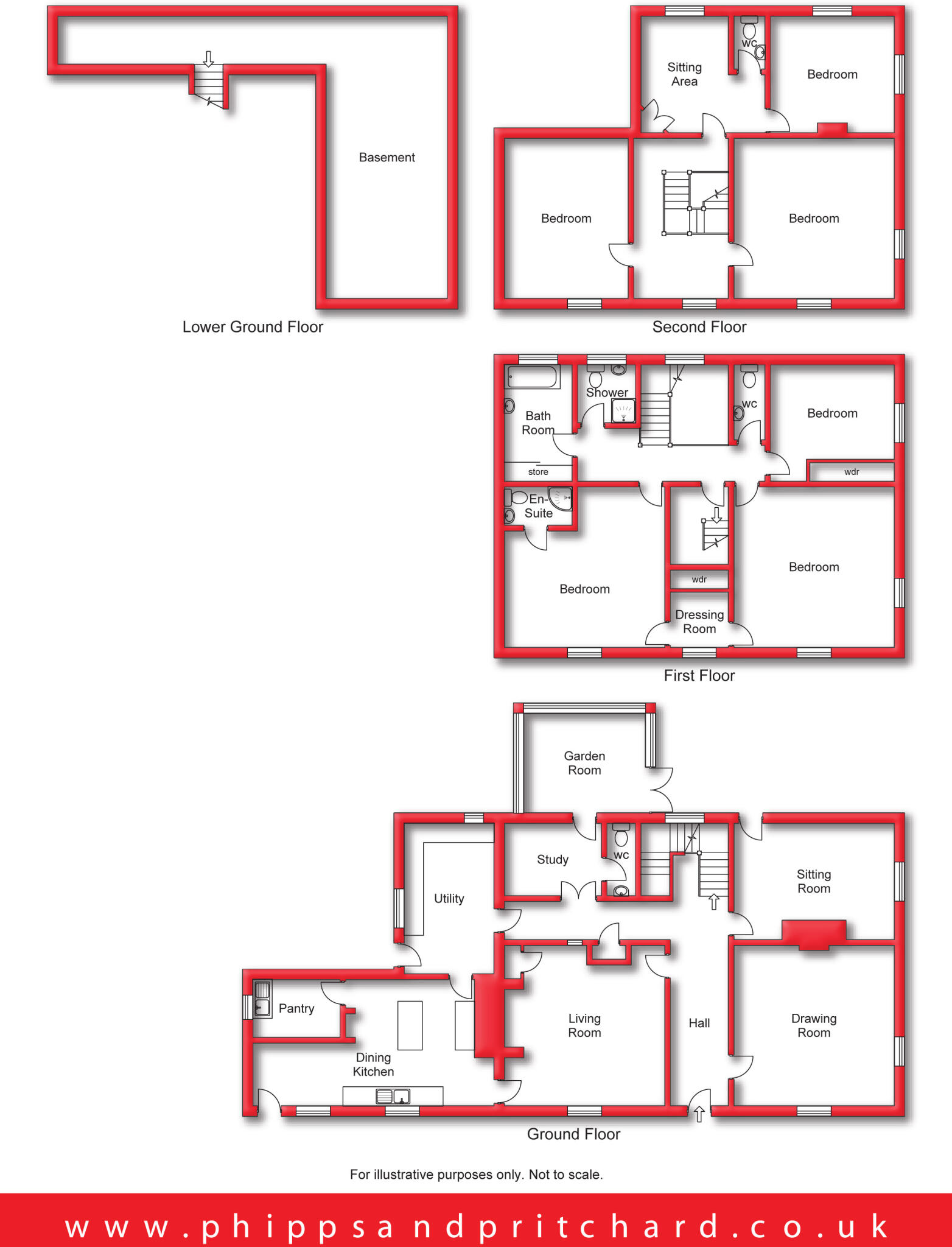
One of Stourport’s foremost homes! A remarkable, Grade II Listed, Queen Anne style, 6-bedroom detached residence in 2.81 acres with masses of parking and framed by expansive sweeping lawns, and paddocks/pasture, eminently suitable to accommodate marquee tents etc. for events and parties etc...

Property Oracle says ..

The property is a substantial detached house located in Areley Kings & Riverside, Stourport-on-Severn. It features six bedrooms and three bathrooms, offering ample space for a large family. The property includes a large garden and additional land, providing significant outdoor space. While the house is generally in good condition, some areas could benefit from modernization. The location offers proximity to schools and riverside amenities, but is a bit further from transportation links. The price is slightly above the local average per square foot, reflecting the property’s size and land.

Therefore, we give this property 7 / 10. *Disclaimer: This is our option and does constitute a recommendation or financial advice. Do your own research. *

Price
6
Condition
7
Location
7
Land
9
Bedrooms
6
Bathrooms
3
Sqft (est)
2,720.00

The heatmap indicates the level of crime in the area. The color of the heatmap indicates the crime severity and recency.

Metrics Year-on-Year

Average area value
290,687.00 £
Decreased by 3.78 %
from 302,106.00 £
Est sale value
884,000.00 £
Increased by 82.58 %
from 484,160.00 £
Average area rental value
1,095.00 £/mo
Increased by 20.59 %
from 908.00 £/mo
Est letting value
2,720.00 £/mo
from 0.00 £/mo
Est rental Yield
4.52 %
Increased by 25.21 %
from 3.61 %
Crime Rate
9.00 %
Unchanged by 0.00 %
from 9.00 %

Agent Activity

  • Phipps & Pritchard created the listing.

Nearby Schools

NameTypeOfstedDistance
Stourport Primary AcademyAcademy ConverterGood0.79 KM
St Bartholomew'S Cofe Vc Primary SchoolAcademy ConverterGood0.98 KM
Half Crown Wood Children'S CentreChildren's Centre0.98 KM
St Wulstan'S Catholic Primary SchoolAcademy ConverterGood1.38 KM
Lickhill Primary SchoolAcademy ConverterRequires improvement1.46 KM

Images

Picture No. 22 Picture No. 21 Picture No. 15 Picture No. 17 Picture No. 25 Picture No. 20 Picture No. 05 Picture No. 23 Picture No. 07 Picture No. 10 Picture No. 16 Picture No. 18 Picture No. 28 Picture No. 26 Picture No. 27 Picture No. 24 Picture No. 19 Picture No. 11 Picture No. 29 Picture No. 03 Picture No. 06 Picture No. 08 Picture No. 09 Picture No. 12 Picture No. 02 Picture No. 04

Nearby Streets

NameAverage PriceAverage SqftDistance
Cedar Close £ 000.00 KM
Coopers Lane £ 000.00 KM
Beatrice Walk £ 000.00 KM
Windmill Bank £ 000.00 KM
Lilac Grove £ 000.00 KM

Nearby Transport

NameNLCTLCDistance
Hartlebury4579HBY7.22 KM
Kidderminster4581KID7.50 KM

Nearby Listings

AddressPriceTypeScoreDistance
Areley Lane, Stourport-on-Severn, Worcestershire £ 1,100,000BUY7 / 100.00 KM
Areley Lane, Stourport-on-Severn £ 675,000BUY8 / 100.04 KM
Areley Lane, Stourport on Severn, DY13 0TA £ 325,000BUY6 / 100.10 KM
Stourport-on-Severn, Worcestershire £ 845,000BUY7 / 100.27 KM
Prince Rupert Road, Stourport on Severn, DY13 0AS £ 485,000BUY7 / 100.33 KM

Nearby Properties

AddressPriceDistance
7 Ryvere Close £ 65,0000.37 KM
5 Ryvere Close £ 140,0000.37 KM
22 Ryvere Close £ 141,0000.37 KM
33 Ryvere Close £ 117,0000.37 KM
12 Ryvere Close £ 150,0000.37 KM