GA
Gala Close, Appleton, Warrington
By Gascoigne Halman
£ 325,000
Reviews
3 out of 5 stars
Gascoigne Halman says ..
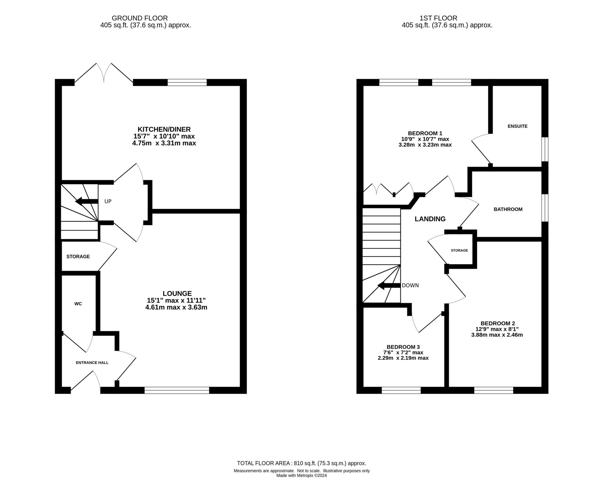
A modern three bedroom semi detached home perfect for a first time buyer. Benefiting from two bathrooms plus a downstairs WC, the property is well presented throughout with driveway parking and a lawned rear garden.
Property Oracle says ..
Therefore, we give this property 7 / 10. *Disclaimer: This is our option and does constitute a recommendation or financial advice. Do your own research. *
- Price
- 7
- Condition
- 9
- Location
- 8
- Land
- 7
- Bedrooms
- 3
- Bathrooms
- 2
- Sqft (est)
- 620.15
The heatmap indicates the level of crime in the area. The color of the heatmap indicates the crime severity and recency.
Metrics Year-on-Year
- Average area value
- 958,333.00 £Increased by 113.58 %
- Est sale value
- 261,703.30 £Increased by 29.85 %
- Average area rental value
- 1,117.00 £/moDecreased by 34.29 %
- Est letting value
- 0.00 £/moDecreased by 100.00 %
- Est rental Yield
- 1.40 %Decreased by 69.23 %
- Crime Rate
- 20.00 %Unchanged by 0.00 %
from 448,698.00 £
from 201,548.75 £
from 1,700.00 £/mo
from 620.15 £/mo
from 4.55 %
from 20.00 %
Agent Activity
Gascoigne Halman created the listing.
Nearby Schools
| Name | Type | Ofsted | Distance |
|---|---|---|---|
| Grappenhall Heys Community Primary School | Community School | Outstanding | 1.38 KM |
| Stretton St Matthew'S Cofe Primary School | Voluntary Aided School | Outstanding | 1.47 KM |
| Broomfields Junior School | Academy Converter | 1.66 KM | |
| The Cygnets Children'S Centre | Children's Centre Linked Site | 1.99 KM | |
| The Cobbs Infant And Nursery School | Community School | Good | 2.08 KM |
Images
Nearby Streets
| Name | Average Price | Average Sqft | Distance |
|---|---|---|---|
| Baldwin Grove | £ 0 | 0 | 0.00 KM |
| Pippin Vale | £ 0 | 0 | 0.00 KM |
| Crispin Grove | £ 550,000 | 0 | 0.00 KM |
| Bailey Crescent | £ 0 | 0 | 0.00 KM |
| Russet Avenue | £ 400,000 | 0 | 0.00 KM |
Nearby Transport
| Name | NLC | TLC | Distance |
|---|---|---|---|
| Warrington Central | 2390 | WAC | 5.84 KM |
| Warrington Bank Quay | 2384 | WBQ | 6.07 KM |
| Padgate | 2387 | PDG | 6.19 KM |
| Birchwood | 2304 | BWD | 7.98 KM |
| Warrington West | 6583 | WAW | 9.82 KM |
Nearby Listings
| Address | Price | Type | Score | Distance |
|---|---|---|---|---|
| Gala Close, Appleton, Warrington | £ 325,000 | BUY | 7 / 10 | 0.00 KM |
| Gala Close, Appleton | £ 243,750 | BUY | 6 / 10 | 0.00 KM |
| Baldwin Close | £ 535,000 | BUY | Unknown | 0.06 KM |
| Cann Lane South, Appleton, Cheshire, WA4 | £ 1,400,000 | BUY | 7 / 10 | 0.18 KM |
| Braeburn Drive, Appleton, Warrington | £ 149,650 | BUY | Unknown | 0.18 KM |
Nearby Properties
| Address | Price | Distance |
|---|---|---|
| Oak Tree Cottage | £ 685,000 | 0.27 KM |
| Russets | £ 945,000 | 0.27 KM |
| Layfield House | £ 940,000 | 0.27 KM |
| Boyne House | £ 925,000 | 0.27 KM |
| Cann Lane Farm House | £ 610,000 | 0.27 KM |