Stukely Meadows, Huntingdon
By harveyrobinson
£ 280,000
Reviews
3 out of 5 stars
harveyrobinson says ..
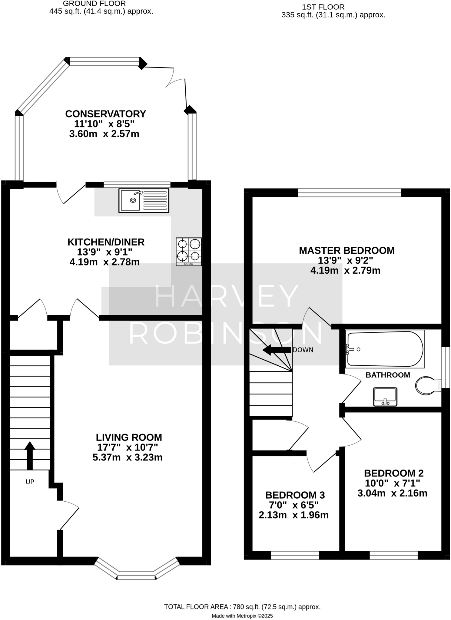
Harvey Robinson Estate Agents are delighted to present this beautifully presented three-bedroom semi-detached home, ideally located in the highly sought-after Stukeley Meadows area of Huntingdon.
Property Oracle says ..
This is a three-bedroom semi-detached house in Stukely Meadows, Huntingdon. The property is in good condition and benefits from a modern kitchen and bathroom, a conservatory, and a garden. The property is located close to local schools and amenities, and is within easy reach of Huntingdon train station. The property is listed at £280,000, which is slightly above the average price for similar properties in the area.
Therefore, we give this property 7 / 10. *Disclaimer: This is our option and does constitute a recommendation or financial advice. Do your own research. *
- Price
- 7
- Condition
- 8
- Location
- 7
- Land
- 6
- Bedrooms
- 3
- Bathrooms
- 1
- Sqft (est)
- 697.10
The heatmap indicates the level of crime in the area. The color of the heatmap indicates the crime severity and recency.
Metrics Year-on-Year
- Average area value
- 265,066.00 £Increased by 22.85 %
- Est sale value
- 303,238.50 £Increased by 59.34 %
- Average area rental value
- 1,330.00 £/moIncreased by 2.94 %
- Est letting value
- 1,394.20 £/moIncreased by 100.00 %
- Est rental Yield
- 6.02 %Decreased by 16.27 %
- Crime Rate
- 3.00 %Unchanged by 0.00 %
Agent Activity
harveyrobinson created the listing.
Nearby Schools
| Name | Type | Ofsted | Distance |
|---|---|---|---|
| Stukeley Meadows Primary School | Community School | Good | 0.38 KM |
| Hinchingbrooke School | Academy Converter | Good | 0.93 KM |
| Cromwell Academy | Academy Converter | Good | 1.07 KM |
| St Peter'S School | Academy Converter | Good | 1.31 KM |
| Huntingdon Nursery School | Local Authority Nursery School | Outstanding | 1.86 KM |
Images
Nearby Streets
| Name | Average Price | Average Sqft | Distance |
|---|---|---|---|
| Laurel Court | £ 0 | 0 | 0.00 KM |
| Mill Common Link Road | £ 115,000 | 0 | 0.00 KM |
| The Views | £ 0 | 0 | 0.00 KM |
| St George's Court | £ 0 | 0 | 0.00 KM |
| Oliver's Walk | £ 0 | 0 | 0.00 KM |
Nearby Transport
| Name | NLC | TLC | Distance |
|---|---|---|---|
| Huntingdon | 6108 | HUN | 0.92 KM |
Nearby Listings
| Address | Price | Type | Score | Distance |
|---|---|---|---|---|
| Stukely Meadows, Huntingdon | £ 280,000 | BUY | 7 / 10 | 0.00 KM |
| Elter Water, Stukeley Meadows, Huntingdon, PE29 | £ 275,000 | BUY | 6 / 10 | 0.07 KM |
| Lake Way, Stukeley Meadows, Huntingdon, PE29 | £ 495,000 | BUY | 8 / 10 | 0.14 KM |
| Blea Water, Stukeley Meadows | £ 290,000 | BUY | Unknown | 0.14 KM |
| Skeggles Close, Stukeley Meadows, Huntingdon. | £ 270,000 | BUY | 6 / 10 | 0.16 KM |
Nearby Properties
| Address | Price | Distance |
|---|---|---|
| 6 Elter Water | £ 135,000 | 0.05 KM |
| 3 Elter Water | £ 250,000 | 0.05 KM |
| 26 Elter Water | £ 215,000 | 0.05 KM |
| 25 Elter Water | £ 60,000 | 0.05 KM |
| 8 Elter Water | £ 60,000 | 0.05 KM |