Winkworth says ..
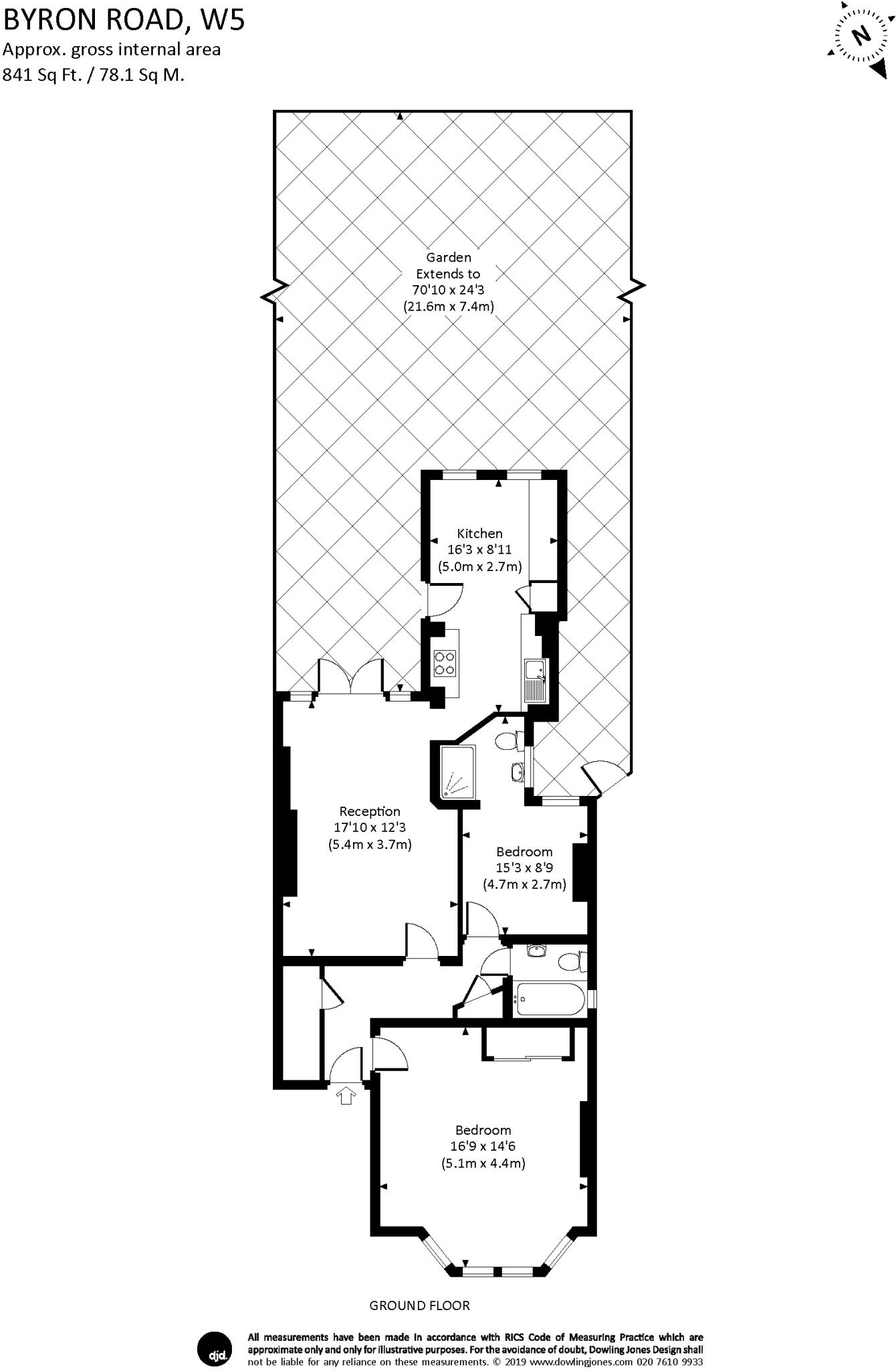
This charming two-bedroom ground-floor flat, set within a well-maintained share of freehold, offers a comfortable and spacious living environment, spanning just under 850 square feet. Perfectly positioned on a quiet, leafy residential road, the property is ideally located within 0.1 miles of Eali...
Property Oracle says ..
This property is a two bedroom, two bathroom apartment located in South Acton, Ealing, London. The apartment is situated on Byron Road, a street with a mix of property types and price points. While the property itself is in good condition and benefits from a garden, its list price of £625,000 is slightly higher than the average price per square foot for the area. Nearby transportation links include Ealing Broadway station (TfL Rail) and South Acton station (London Overground), both within a reasonable distance. Several schools with varying Ofsted ratings are also nearby. The property has a modern kitchen and updated bathrooms. The property shows evidence of having been recently renovated. The property benefits from a good sized garden.
Therefore, we give this property 7 / 10. *Disclaimer: This is our option and does constitute a recommendation or financial advice. Do your own research. *
- Price
- 6
- Condition
- 8
- Location
- 7
- Land
- 7
- Bedrooms
- 2
- Bathrooms
- 2
- Sqft (est)
- 840.66
The heatmap indicates the level of crime in the area. The color of the heatmap indicates the crime severity and recency.
Metrics Year-on-Year
- Average area value
- 719,207.00 £Increased by 15.99 %
- Est sale value
- 592,665.30 £Increased by 12.80 %
- Average area rental value
- 2,260.00 £/moIncreased by 12.16 %
- Est letting value
- 1,681.32 £/moUnchanged by 0.00 %
- Est rental Yield
- 3.77 %Decreased by 3.33 %
- Crime Rate
- 17.00 %Unchanged by 0.00 %
Agent Activity
Winkworth created the listing.
Nearby Schools
| Name | Type | Ofsted | Distance |
|---|---|---|---|
| The Ellen Wilkinson School For Girls | Foundation School | Outstanding | 0.69 KM |
| The Japanese School | Other Independent School | Inadequate | 0.79 KM |
| Ark Acton Academy | Academy Sponsor Led | 0.88 KM | |
| Twyford Church Of England High School | Academy Converter | Outstanding | 1.03 KM |
| Ada Lovelace Church Of England High School | Free Schools | 1.15 KM |
Images
Nearby Streets
| Name | Average Price | Average Sqft | Distance |
|---|---|---|---|
| Brook Close | £ 549,950 | 0 | 0.00 KM |
| Queens Drive | £ 475,000 | 0 | 0.00 KM |
| Hamilton Court | £ 650,000 | 0 | 0.00 KM |
| Station Road | £ 462,500 | 0 | 0.00 KM |
| Queens Drive | £ 0 | 0 | 0.00 KM |
Nearby Transport
| Name | NLC | TLC | Distance |
|---|---|---|---|
| Ealing Broadway | 3190 | EAL | 1.72 KM |
| South Acton | 1452 | SAT | 2.21 KM |
| Acton Main Line | 3000 | AML | 2.32 KM |
| Kew Bridge | 5593 | KWB | 2.37 KM |
| Gunnersbury | 5588 | GUN | 2.48 KM |
Nearby Listings
| Address | Price | Type | Score | Distance |
|---|---|---|---|---|
| Byron Road, London, W5 | £ 625,000 | BUY | 7 / 10 | 0.00 KM |
| Bryon Road, Ealing | £ 1,395,000 | BUY | 5 / 10 | 0.04 KM |
| Fordhook Avenue, Ealing, W5 | £ 1,450,000 | BUY | 7 / 10 | 0.07 KM |
| Fordhook Avenue, Ealing, W5 | £ 1,425,000 | BUY | 7 / 10 | 0.07 KM |
| Fordhook Avenue, London, W5 | £ 850,000 | BUY | 7 / 10 | 0.08 KM |
Nearby Properties
| Address | Price | Distance |
|---|---|---|
| 25 Byron Road | £ 990,000 | 0.04 KM |
| 14 Byron Road | £ 265,000 | 0.04 KM |
| 3 Byron Road | £ 610,000 | 0.04 KM |
| 4 Byron Road | £ 322,100 | 0.04 KM |
| 12 Byron Road | £ 134,950 | 0.04 KM |