Farr & Farr says ..
A very good size 2nd floor apartment with wonderful views over the park land. Cathedral Court is a very popular residential development for the over 55s on the London Road just over half a mile to the east of Gloucester city centre. Transport facilities are on the doorstep and access to both C...
Property Oracle says ..
This one-bedroom retirement apartment in Gloucester offers a convenient location on London Road, close to Gloucester railway station and several schools. The apartment itself appears well-maintained, although the interior decor and fittings might be considered dated by some buyers. The property lacks any significant private outdoor space. Given the local market context of similar retirement apartments, the list price seems fairly competitive. Potential buyers should focus on the suitability of the property within a retirement context, rather than its features comparative to traditional family homes. It is important to consider that the apartment is part of a larger development, with shared facilities that might attract some and deter others, this cannot be commented on without additional information. The lack of plot size is a considerable disadvantage, and the absence of details on the overall facilities and service charges of the retirement complex is a drawback that would heavily influence potential buyer’s appraisal.
Therefore, we give this property 5 / 10. *Disclaimer: This is our option and does constitute a recommendation or financial advice. Do your own research. *
- Price
- 7
- Condition
- 6
- Location
- 7
- Land
- 1
- Bedrooms
- 1
- Bathrooms
- 1
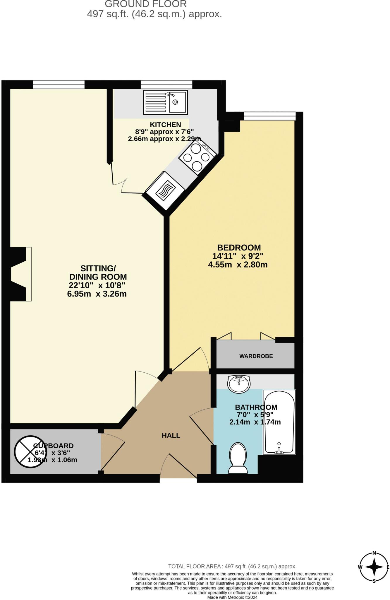
- Sqft (est)
- 497.29
The heatmap indicates the level of crime in the area. The color of the heatmap indicates the crime severity and recency.
Metrics Year-on-Year
- Average area value
- 332,488.00 £Increased by 46.95 %
- Est sale value
- 194,440.39 £Increased by 48.11 %
- Average area rental value
- 1,069.00 £/moIncreased by 11.24 %
- Est letting value
- 497.29 £/moUnchanged by 0.00 %
- Est rental Yield
- 3.86 %Decreased by 24.31 %
- Crime Rate
- 0.00 %
Agent Activity
Farr & Farr created the listing.
Nearby Schools
| Name | Type | Ofsted | Distance |
|---|---|---|---|
| Wotton House International School Gloucestershire | Other Independent School | 0.29 KM | |
| St Peter'S Catholic Primary School | Voluntary Aided School | Good | 0.48 KM |
| Edward Jenner School | Other Independent School | 0.77 KM | |
| Denmark Road High School | Academy Converter | 0.88 KM | |
| Kaleidoscope Kingsholm Children'S Centre | Children's Centre | 1.00 KM |
Images
Nearby Streets
| Name | Average Price | Average Sqft | Distance |
|---|---|---|---|
| The Courtyard | £ 147,500 | 0 | 0.00 KM |
| Royal Lane | £ 130,000 | 0 | 0.00 KM |
| Metz Way | £ 0 | 0 | 0.00 KM |
| Mermaid Close | £ 0 | 0 | 0.00 KM |
| Claremont Road | £ 0 | 0 | 0.00 KM |
Nearby Transport
| Name | NLC | TLC | Distance |
|---|---|---|---|
| Gloucester | 4760 | GCR | 1.08 KM |
Nearby Listings
| Address | Price | Type | Score | Distance |
|---|---|---|---|---|
| London Road, Gloucester | £ 85,000 | BUY | 5 / 10 | 0.00 KM |
| London Road, Gloucester | £ 140,000 | BUY | 6 / 10 | 0.00 KM |
| Flat 8, Cathedral Court, London Road, Gloucester, GL1 3QE | £ 50,000 | BUY | Unknown | 0.01 KM |
| Cathedral Court, London Road | £ 59,950 | BUY | 5 / 10 | 0.03 KM |
| Cathedral Court, Gloucester | £ 140,000 | BUY | 7 / 10 | 0.04 KM |
Nearby Properties
| Address | Price | Distance |
|---|---|---|
| 116 London Road | £ 240,000 | 0.04 KM |
| 114 London Road | £ 375,000 | 0.04 KM |
| 142 London Road | £ 300,000 | 0.04 KM |
| 106 London Road | £ 399,950 | 0.04 KM |
| 102 London Road | £ 377,000 | 0.04 KM |