Friars Loan, Linlithgow, EH49
By Halliday Homes Collection
£ 895,000
Reviews
3 out of 5 stars
Halliday Homes Collection says ..
Located in one of Linlithgow's most prestigious areas, this stunning detached property enjoys complete privacy and sits on an expansive plot featuring a gardener's paradise to the rear. This property presents an exceptional opportunity for an array of buyers to purchase a distinctive property tha...
Property Oracle says ..
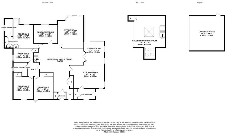
The property at Friars Loan, Linlithgow, is a detached house offering five bedrooms and three bathrooms. The location benefits from being near the Linlithgow train station. The interior photos suggest the property is well-maintained, with a modern kitchen and bathrooms, although some rooms feature decor that might be considered dated. The property includes a well-maintained garden with mature shrubs, trees, and a shed. The property is more expensive than average for the area, but it’s also larger than average.
Therefore, we give this property 7 / 10. *Disclaimer: This is our option and does constitute a recommendation or financial advice. Do your own research. *
- Price
- 6
- Condition
- 8
- Location
- 8
- Land
- 8
- Bedrooms
- 5
- Bathrooms
- 3
- Sqft (est)
- 2,357.62
The heatmap indicates the level of crime in the area. The color of the heatmap indicates the crime severity and recency.
Metrics Year-on-Year
- Average area value
- 712,500.00 £Increased by 63.65 %
- Est sale value
- 839,312.72 £Increased by 11.95 %
- Average area rental value
- 1,330.00 £/moIncreased by 17.28 %
- Est letting value
- 0.00 £/mo
- Est rental Yield
- 2.24 %Decreased by 28.43 %
- Crime Rate
- 0.00 %
Agent Activity
Halliday Homes Collection created the listing.
Images
Nearby Streets
| Name | Average Price | Average Sqft | Distance |
|---|---|---|---|
| Friars Loan | £ 0 | 0 | 0.00 KM |
| Friars Way | £ 673,333 | 0 | 0.00 KM |
| Carmelaws | £ 0 | 0 | 0.00 KM |
| Dog Well Wynd | £ 0 | 0 | 0.00 KM |
| Riccarton Road | £ 0 | 0 | 0.00 KM |
Nearby Transport
| Name | NLC | TLC | Distance |
|---|---|---|---|
| Linlithgow | 9438 | LIN | 0.70 KM |
| Bathgate | 9311 | BHG | 9.21 KM |
Nearby Listings
| Address | Price | Type | Score | Distance |
|---|---|---|---|---|
| Friars Loan, Linlithgow, EH49 | £ 895,000 | BUY | 7 / 10 | 0.00 KM |
| 14 Deacons Court, Linlithgow, EH49 6BT | £ 540,000 | BUY | Unknown | 0.36 KM |
| Avon Place, Linlithgow, EH49 | £ 215,000 | BUY | 6 / 10 | 0.38 KM |
| 8 Burgess Hill, Linlithgow, EH49 6BX | £ 350,000 | BUY | 7 / 10 | 0.42 KM |
| 14 Beechwood, Linlithgow, EH49 6SF | £ 375,000 | BUY | 7 / 10 | 0.43 KM |