Frocester Hill, Frocester, Stonehouse
By Naylor Powell
£ 315,000
Reviews
3 out of 5 stars
Naylor Powell says ..
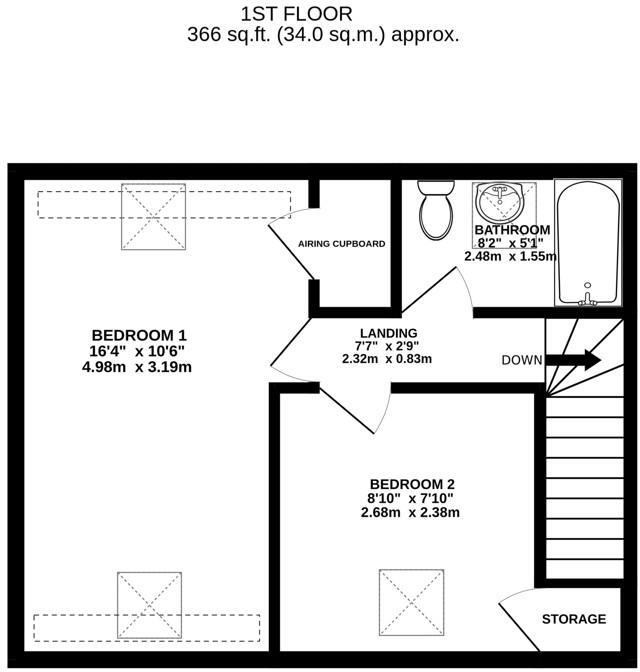
A mid-terrace two bedroom barn conversion set within the Frocester countryside and within a development of just nine properties. The property offers an open plan kitchen/living room and a downstairs WC to the ground floor, whilst there are two bedrooms and a bathroom to the first floor. There is ...
Property Oracle says ..
This property is a charming 2-bedroom, 1-bathroom terraced house located in Frocester, Gloucestershire. The property has been recently converted and is presented in excellent condition, with modern fixtures and fittings throughout. The asking price of £315,000 is slightly above the average price for the area (£245,826), but considering the property’s modern condition and the lack of similar properties on the market, it could represent good value. The small enclosed rear garden is a welcome addition. While the plot size is small, the location is convenient with good access to local schools and transport links. Overall, this property offers a modern and well-maintained home in a desirable location.
Therefore, we give this property 6 / 10. *Disclaimer: This is our option and does constitute a recommendation or financial advice. Do your own research. *
- Price
- 7
- Condition
- 9
- Location
- 7
- Land
- 3
- Bedrooms
- 2
- Bathrooms
- 1
- Sqft (est)
- 728.72
The heatmap indicates the level of crime in the area. The color of the heatmap indicates the crime severity and recency.
Metrics Year-on-Year
- Average area value
- 251,538.00 £Increased by 21.55 %
- Est sale value
- 150,845.04 £Decreased by 4.17 %
- Average area rental value
- 754.00 £/moDecreased by 18.22 %
- Est letting value
- 0.00 £/mo
- Est rental Yield
- 3.60 %Decreased by 32.71 %
- Crime Rate
- 323.00 %Unchanged by 0.00 %
Agent Activity
Naylor Powell created the listing.
Nearby Schools
| Name | Type | Ofsted | Distance |
|---|---|---|---|
| Coaley Church Of England Primary Academy | Academy Sponsor Led | 2.67 KM | |
| Eastington Primary School | Community School | Outstanding | 2.79 KM |
| St Joseph'S Catholic Primary School | Voluntary Aided School | Good | 3.36 KM |
| William Morris College | Special Post 16 Institution | Good | 3.36 KM |
| Leonard Stanley Church Of England Primary School | Voluntary Aided School | Good | 3.55 KM |
Images
Nearby Streets
| Name | Average Price | Average Sqft | Distance |
|---|---|---|---|
| Court Road | £ 0 | 0 | 0.00 KM |
| Peter's Street | £ 835,000 | 0 | 0.00 KM |
| Frocester Hill | £ 0 | 0 | 0.00 KM |
| Middle Street | £ 320,000 | 0 | 0.00 KM |
Nearby Transport
| Name | NLC | TLC | Distance |
|---|---|---|---|
| Stonehouse | 4770 | SHU | 4.24 KM |
| Cam And Dursley | 3238 | CDU | 5.32 KM |
Nearby Listings
| Address | Price | Type | Score | Distance |
|---|---|---|---|---|
| Frocester Hill, Frocester, Stonehouse | £ 315,000 | BUY | 6 / 10 | 0.00 KM |
| Frocester Hill, Frocester, GL10 | £ 975,000 | BUY | 8 / 10 | 0.16 KM |
| Bath Road, Frocester, Stonehouse, GL10 3TG | £ 535,000 | BUY | Unknown | 0.29 KM |
| Bath Road, Frocester, GL10 | £ 815,000 | BUY | 7 / 10 | 1.05 KM |
| Frocester Hill, Frocester, Stonehouse | £ 425,000 | BUY | 6 / 10 | 1.17 KM |
Nearby Properties
| Address | Price | Distance |
|---|---|---|
| Pike House | £ 285,000 | 0.39 KM |
| Red Cottage | £ 231,100 | 0.39 KM |
| 9 Peter Street | £ 247,000 | 0.39 KM |
| School House | £ 835,000 | 0.39 KM |
| 8 Peter Street | £ 660,000 | 0.39 KM |