Tahnee Court, Middle Street, Puriton, Bridgwater
By Charles Dickens Estate Agents
£ 250,000
Reviews
3 out of 5 stars
Charles Dickens Estate Agents says ..
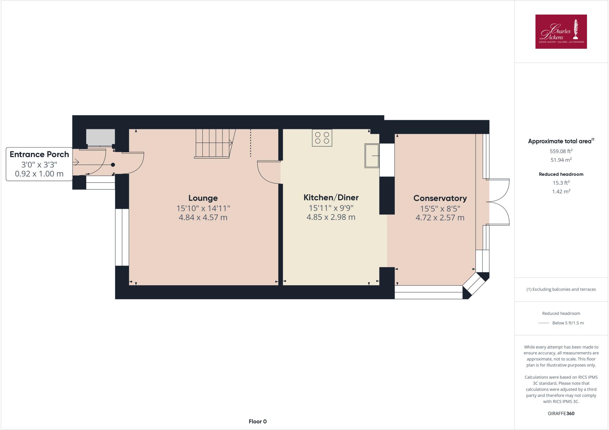
A modern 3 bedroom semi-detached house, centrally situated within this popular village in a non-estate location. This is a lovely family home in a well-served village that has a Post Office Store close by, a Hairdresser, Butcher, Primary School and easy access to the M5. Nearby Bridgwater offe...
Property Oracle says ..
This property is a 3 bedroom, 1 bathroom house located in Puriton, Somerset. Based on the provided images, the property appears to be well-maintained and in good condition. There is a garden present, although its size is not specified. The list price is £250,000. Nearby comparable properties range in price from £88,500 to £550,000, indicating a wide range of values in the area. The property’s proximity to Puriton Primary School (0.37km) is a positive feature for families. Transportation links to Bridgwater and Highbridge & Burnham via Great Western Railway are also within reasonable distance. More information on the plot size and specifics of the property’s condition would be needed to make a more definitive assessment of the price point.
Therefore, we give this property 6 / 10. *Disclaimer: This is our option and does constitute a recommendation or financial advice. Do your own research. *
- Price
- 6
- Condition
- 8
- Location
- 7
- Land
- 6
- Bedrooms
- 3
- Bathrooms
- 1
- Sqft (est)
- 906.97
The heatmap indicates the level of crime in the area. The color of the heatmap indicates the crime severity and recency.
Metrics Year-on-Year
- Average area value
- 414,980.00 £Increased by 5.47 %
- Est sale value
- 292,044.34 £Increased by 18.38 %
- Average area rental value
- 1,325.00 £/moIncreased by 12.57 %
- Est letting value
- 906.97 £/mo
- Est rental Yield
- 3.83 %Increased by 6.69 %
- Crime Rate
- 25.00 %Unchanged by 0.00 %
Agent Activity
Charles Dickens Estate Agents marked this listing as sold.
Charles Dickens Estate Agents created the listing.
Nearby Schools
| Name | Type | Ofsted | Distance |
|---|---|---|---|
| Puriton Primary School | Academy Converter | 0.37 KM | |
| Willowdown Primary School | Academy Sponsor Led | Requires improvement | 3.08 KM |
| Woolavington Village Primary School | Academy Sponsor Led | Requires improvement | 3.56 KM |
| Woolavington Building | Children's Centre Linked Site | 3.60 KM | |
| Kingsmoor Primary School | Community School | Good | 3.70 KM |
Images
Nearby Streets
| Name | Average Price | Average Sqft | Distance |
|---|---|---|---|
| Tahnee Court | £ 0 | 0 | 0.00 KM |
| Hillside | £ 550,000 | 0 | 0.00 KM |
| Greenacres | £ 378,750 | 0 | 0.00 KM |
| Enterprise Way | £ 0 | 0 | 0.00 KM |
| Batch Road | £ 0 | 0 | 0.00 KM |
Nearby Transport
| Name | NLC | TLC | Distance |
|---|---|---|---|
| Bridgwater | 3449 | BWT | 5.12 KM |
| Highbridge And Burnham | 3314 | HIG | 5.41 KM |
Nearby Listings
| Address | Price | Type | Score | Distance |
|---|---|---|---|---|
| Tahnee Court, Middle Street, Puriton, Bridgwater | £ 250,000 | BUY | 6 / 10 | 0.00 KM |
| Walnut Close, Puriton | £ 255,000 | BUY | 7 / 10 | 0.07 KM |
| Anchorage Court, Puriton | £ 265,000 | BUY | 7 / 10 | 0.07 KM |
| Culverhay Close, Puriton, Bridgwater | £ 375,000 | BUY | Unknown | 0.12 KM |
| Middle Street, Puriton | £ 279,950 | BUY | 6 / 10 | 0.14 KM |
Nearby Properties
| Address | Price | Distance |
|---|---|---|
| 11b Middle Street | £ 164,000 | 0.04 KM |
| 8 Middle Street | £ 276,000 | 0.04 KM |
| 22 Middle Street | £ 88,500 | 0.04 KM |
| Whitlow | £ 242,000 | 0.04 KM |
| 3 Middle Street | £ 189,000 | 0.04 KM |