Coales Gardens, Market Harborough, Leicestershire, LE16
By Albery Tyson
£ 275,000
Reviews
3 out of 5 stars
Albery Tyson says ..
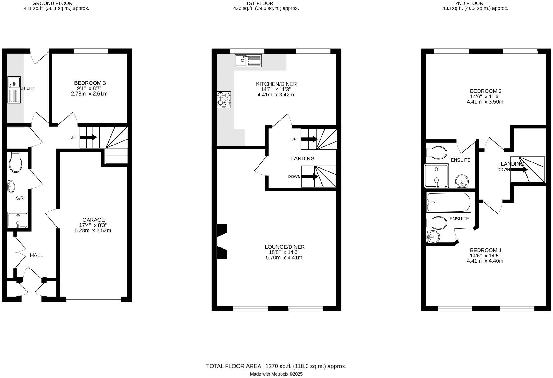
Three storey town house with integral garage and enclosed garden. Situated in a Cul-de-sac location on this popular residential development, this well-presented property has generously proportioned rooms. There is access to the A6 within 2 miles of the property, which leads directly on to the A14/M6
Property Oracle says ..
The property is located in Coales Gardens, Market Harborough, Leicestershire. It is a three-bedroom, three-bathroom house with 1,213.31 square feet of living space and a small garden. The property appears to be in reasonable condition, although some updates might enhance its appeal. The list price of £275,000 seems relatively low compared to the area average, but this should be considered in the context of the property’s condition and the size of the land. Nearby comparable properties show a wide range of prices, suggesting that the list price may reflect the lower end of the market on this street. The property’s proximity to well-rated schools and the train station are positive features.
Therefore, we give this property 6 / 10. *Disclaimer: This is our option and does constitute a recommendation or financial advice. Do your own research. *
- Price
- 6
- Condition
- 7
- Location
- 7
- Land
- 4
- Bedrooms
- 3
- Bathrooms
- 3
- Sqft (est)
- 1,213.31
The heatmap indicates the level of crime in the area. The color of the heatmap indicates the crime severity and recency.
Metrics Year-on-Year
- Average area value
- 593,306.00 £Increased by 37.78 %
- Est sale value
- 454,991.25 £Increased by 28.87 %
- Average area rental value
- 1,150.00 £/moDecreased by 17.56 %
- Est letting value
- 0.00 £/mo
- Est rental Yield
- 2.33 %Decreased by 40.10 %
- Crime Rate
- 1.00 %Unchanged by 0.00 %
Agent Activity
Albery Tyson marked this listing as sold.
Albery Tyson created the listing.
Nearby Schools
| Name | Type | Ofsted | Distance |
|---|---|---|---|
| The Robert Smyth Academy | Academy Converter | Good | 0.59 KM |
| Brooke House College | Other Independent School | 0.93 KM | |
| Market Harborough Church Of England Academy | Academy Converter | Good | 0.94 KM |
| St Joseph'S Catholic Voluntary Academy | Academy Converter | Good | 1.27 KM |
| Market Harborough Sure Start Children'S Centre | Children's Centre | 1.35 KM |
Images
Nearby Streets
| Name | Average Price | Average Sqft | Distance |
|---|---|---|---|
| Beech Avenue | £ 0 | 0 | 0.00 KM |
| Cherry Tree Drive | £ 0 | 0 | 0.00 KM |
| Victoria Mews | £ 0 | 0 | 0.00 KM |
| Ridgeway West | £ 0 | 0 | 0.00 KM |
| Ridge View | £ 0 | 0 | 0.00 KM |
Nearby Transport
| Name | NLC | TLC | Distance |
|---|---|---|---|
| Market Harborough | 1909 | MHR | 2.33 KM |
Nearby Listings
| Address | Price | Type | Score | Distance |
|---|---|---|---|---|
| Coales Gardens, Market Harborough, Leicestershire, LE16 | £ 275,000 | BUY | 6 / 10 | 0.00 KM |
| Coales Gardens, Market Harborough | £ 385,000 | BUY | Unknown | 0.00 KM |
| Coales Gardens, Market Harborough | £ 600,000 | BUY | Unknown | 0.13 KM |
| Davies Close, Market Harborough | £ 325,000 | BUY | 7 / 10 | 0.18 KM |
| Alvington Way, Market Harborough | £ 395,000 | BUY | 7 / 10 | 0.20 KM |
Nearby Properties
| Address | Price | Distance |
|---|---|---|
| 50 Coales Gardens | £ 225,000 | 0.00 KM |
| 1 Coales Gardens | £ 550,000 | 0.00 KM |
| 2 Coales Gardens | £ 532,500 | 0.00 KM |
| 27 Coales Gardens | £ 175,000 | 0.00 KM |
| 56 Coales Gardens | £ 310,000 | 0.00 KM |