Breakey & Co says ..
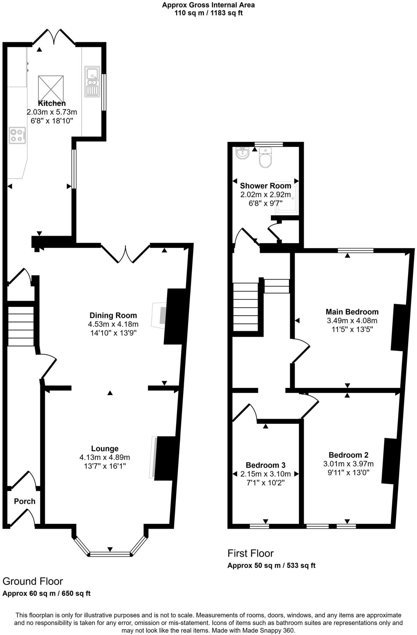
Charming 3-bed terraced home on Ormskirk Road, Pemberton. Ideal for first-time buyers, families, or investors. Open-plan living, modern kitchen, stylish yard, off-road parking. Close to amenities, schools, parks, transport links. Great value in sought-after location.
Property Oracle says ..
A well-presented terraced property located on Ormskirk Road, Wigan. The property benefits from three bedrooms, a modern kitchen and bathroom, and a rear garden. Close to local amenities and transport links.
Therefore, we give this property 7 / 10. *Disclaimer: This is our option and does constitute a recommendation or financial advice. Do your own research. *
- Price
- 8
- Condition
- 8
- Location
- 7
- Land
- 6
- Bedrooms
- 3
- Bathrooms
- 1
- Sqft (est)
- 963.76
The heatmap indicates the level of crime in the area. The color of the heatmap indicates the crime severity and recency.
Metrics Year-on-Year
- Average area value
- 161,000.00 £Increased by 21.76 %
- Est sale value
- 195,643.28 £Increased by 46.04 %
- Average area rental value
- 820.00 £/moIncreased by 8.04 %
- Est letting value
- 963.76 £/mo
- Est rental Yield
- 6.11 %Decreased by 11.32 %
- Crime Rate
- 0.00 %
Agent Activity
Breakey & Co created the listing.
Nearby Schools
| Name | Type | Ofsted | Distance |
|---|---|---|---|
| St Mark'S Cofe Primary School | Academy Sponsor Led | Requires improvement | 0.20 KM |
| Expanse Learning Wigan School | Other Independent Special School | Requires improvement | 0.61 KM |
| St Jude'S Catholic Primary School Wigan | Voluntary Aided School | Requires improvement | 0.80 KM |
| St James' Church Of England Primary School | Academy Converter | 0.81 KM | |
| St Paul'S Church Of England Primary School | Academy Converter | 1.38 KM |
Images
Nearby Streets
| Name | Average Price | Average Sqft | Distance |
|---|---|---|---|
| Alexandra Street | £ 0 | 0 | 0.00 KM |
| Mere Street | £ 125,000 | 0 | 0.00 KM |
| St Mark's Avenue | £ 200,000 | 0 | 0.00 KM |
| Wood Street | £ 0 | 0 | 0.00 KM |
| Hesketh Street | £ 115,000 | 0 | 0.00 KM |
Nearby Transport
| Name | NLC | TLC | Distance |
|---|---|---|---|
| Pemberton | 2403 | PEM | 1.77 KM |
| Wigan North Western | 2363 | WGN | 2.61 KM |
| Wigan Wallgate | 2406 | WGW | 2.66 KM |
| Bryn | 2222 | BYN | 4.34 KM |
| Gathurst | 2397 | GST | 4.86 KM |
Nearby Listings
| Address | Price | Type | Score | Distance |
|---|---|---|---|---|
| Ormskirk Road, Wigan, WN5 | £ 180,000 | BUY | 7 / 10 | 0.00 KM |
| Ormskirk Road, Wigan, WN5 | £ 150,000 | BUY | 7 / 10 | 0.04 KM |
| Reedsmere Close, Wigan, WN5 | £ 190,000 | BUY | 7 / 10 | 0.13 KM |
| Woolden Street, Newtown, Wigan, Greater Manchester | £ 170,000 | BUY | 6 / 10 | 0.15 KM |
| Mitchell Street, Wigan, WN5 | £ 160,000 | BUY | Unknown | 0.15 KM |
Nearby Properties
| Address | Price | Distance |
|---|---|---|
| 11 Alker Street | £ 90,000 | 0.07 KM |
| 6 Alker Street | £ 92,000 | 0.07 KM |
| 3 Alker Street | £ 95,000 | 0.07 KM |
| 1a Alker Street | £ 90,000 | 0.07 KM |
| 10 Alker Street | £ 90,000 | 0.07 KM |