Portico says ..
MODERN TWO BEDROOM APARTMENT LOCATED CLOSE TO LEYTON STATION: We are pleased to offer this great size two bedroom second floor modern apartment in great condition and ready to move into. The Property This is a great modern apartment located in a very well thought out develo...
Property Oracle says ..
Therefore, we give this property 6 / 10. *Disclaimer: This is our option and does constitute a recommendation or financial advice. Do your own research. *
- Price
- 8
- Condition
- 9
- Location
- 7
- Land
- 3
- Bedrooms
- 2
- Bathrooms
- 2
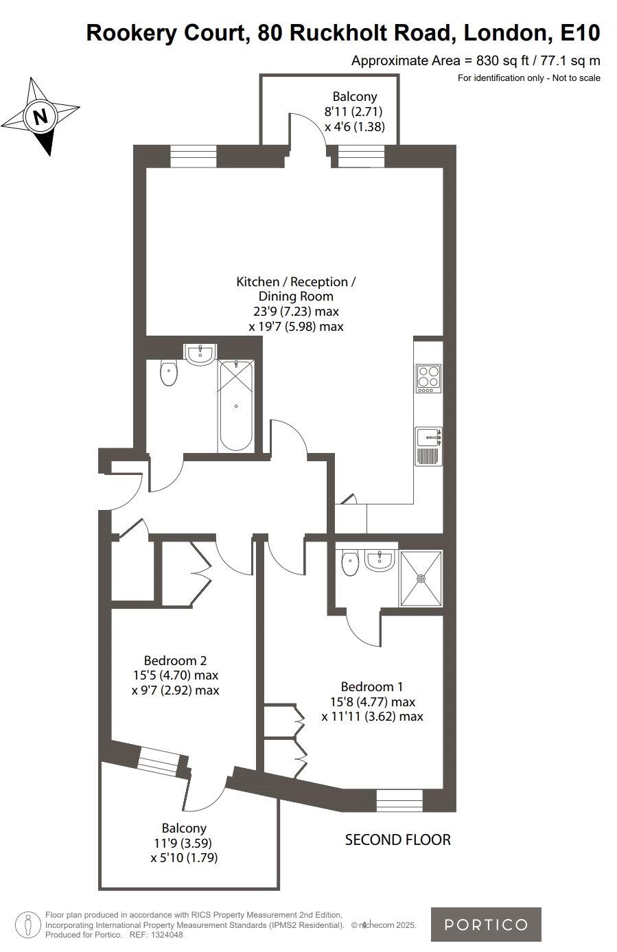
- Sqft (est)
- 830.00
The heatmap indicates the level of crime in the area. The color of the heatmap indicates the crime severity and recency.
Metrics Year-on-Year
- Average area value
- 552,778.00 £Increased by 26.58 %
- Est sale value
- 493,850.00 £Increased by 6.82 %
- Average area rental value
- 1,835.00 £/moDecreased by 4.03 %
- Est letting value
- 830.00 £/moDecreased by 50.00 %
- Est rental Yield
- 3.98 %Decreased by 24.19 %
- Crime Rate
- 3.00 %Unchanged by 0.00 %
from 436,717.00 £
from 462,310.00 £
from 1,912.00 £/mo
from 1,660.00 £/mo
from 5.25 %
from 3.00 %
Agent Activity
Portico created the listing.
Nearby Schools
| Name | Type | Ofsted | Distance |
|---|---|---|---|
| Lantern Of Knowledge Secondary School | Other Independent School | Inadequate | 0.81 KM |
| Noor Ul Islam Primary School | Other Independent School | Good | 0.92 KM |
| Dawlish Primary School | Community School | Good | 0.94 KM |
| Harris Academy Chobham | Academy Sponsor Led | Outstanding | 1.08 KM |
| Newport School | Community School | Outstanding | 1.08 KM |
Images
Nearby Streets
| Name | Average Price | Average Sqft | Distance |
|---|---|---|---|
| Auckland Road | £ 0 | 0 | 0.00 KM |
| Lyttelton Road | £ 0 | 0 | 0.00 KM |
| Coronation Square | £ 0 | 0 | 0.00 KM |
| Gateway Road | £ 0 | 0 | 0.00 KM |
| Osborne Road | £ 700,000 | 0 | 0.00 KM |
Nearby Transport
| Name | NLC | TLC | Distance |
|---|---|---|---|
| Stratford International | 7222 | SFA | 1.42 KM |
| Leyton Midland Road | 7402 | LEM | 1.44 KM |
| Stratford | 6969 | SRA | 1.94 KM |
| Hackney Wick | 6978 | HKW | 2.13 KM |
| Maryland | 6970 | MYL | 2.30 KM |
Nearby Listings
| Address | Price | Type | Score | Distance |
|---|---|---|---|---|
| 80 Ruckholt Road, Leyton, London | £ 425,000 | BUY | 7 / 10 | 0.00 KM |
| Ruckholt Road, Leyton, London | £ 450,000 | BUY | 6 / 10 | 0.00 KM |
| Ruckholt Road, London | £ 480,000 | BUY | 6 / 10 | 0.00 KM |
| Ruckholt Road, London | £ 450,000 | BUY | 6 / 10 | 0.00 KM |
| Rookery Court, Ruckholt Road, Leyton, E10 | £ 550,000 | BUY | 8 / 10 | 0.01 KM |
Nearby Properties
| Address | Price | Distance |
|---|---|---|
| 132 Dunedin Road | £ 237,500 | 0.12 KM |
| 130 Dunedin Road | £ 580,000 | 0.12 KM |
| 98 Dunedin Road | £ 400,000 | 0.12 KM |
| 103b Ruckholt Road | £ 61,000 | 0.13 KM |
| 103a Ruckholt Road | £ 154,995 | 0.13 KM |