24 Queens Road Queens Road, Weybridge, KT13 9UX
By McCarthy & Stone - South East
£ 465,000
Reviews
3 out of 5 stars
McCarthy & Stone - South East says ..
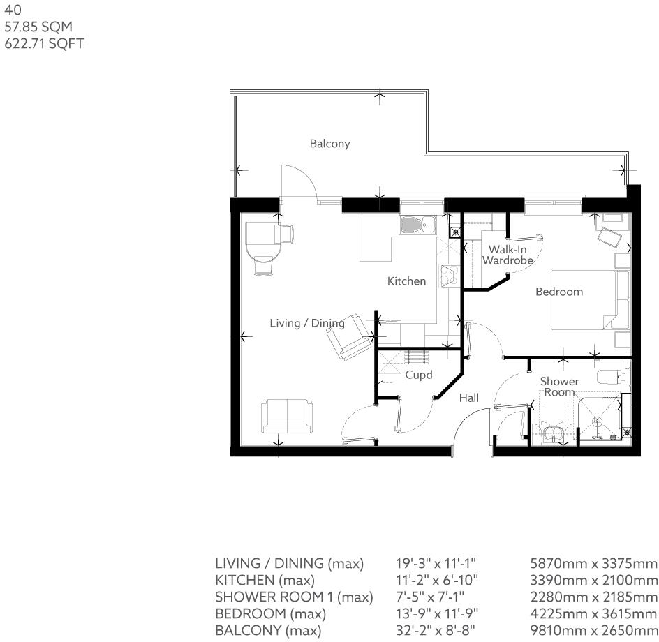
Light-filled and thoughtfully finished with contemporary design and elegant fixtures throughout, Apartment 42 is a beautiful apartment with access to communal features including a sociable lounge and large landscaped gardens with seating.
Property Oracle says ..
This is a well-presented, modern retirement property located in a sought-after area of Weybridge. The property benefits from its proximity to local amenities and transport links. While the land is limited, the condition of the property is excellent. The price appears fair when considering the location and condition, but the retirement property status should be taken into account.
Therefore, we give this property 6 / 10. *Disclaimer: This is our option and does constitute a recommendation or financial advice. Do your own research. *
- Price
- 6
- Condition
- 9
- Location
- 7
- Land
- 4
- Bedrooms
- 1
- Bathrooms
- 0
- Sqft (est)
- 783.64
The heatmap indicates the level of crime in the area. The color of the heatmap indicates the crime severity and recency.
Metrics Year-on-Year
- Average area value
- 2,713,636.00 £Increased by 69.90 %
- Est sale value
- 657,473.96 £Increased by 44.66 %
- Average area rental value
- 4,007.00 £/moIncreased by 11.27 %
- Est letting value
- 783.64 £/moUnchanged by 0.00 %
- Est rental Yield
- 1.77 %Decreased by 34.69 %
- Crime Rate
- 16.00 %Unchanged by 0.00 %
Agent Activity
McCarthy & Stone - South East created the listing.
Nearby Schools
| Name | Type | Ofsted | Distance |
|---|---|---|---|
| Manby Lodge Infant School | Community School | Good | 0.42 KM |
| St James Cofe Primary School | Voluntary Controlled School | Good | 0.87 KM |
| Oatlands School | Community School | Outstanding | 1.00 KM |
| St George'S Junior School Weybridge | Other Independent School | 1.39 KM | |
| Weybridge Sure Start Children'S Centre | Children's Centre | 1.49 KM |
Images
Nearby Streets
| Name | Average Price | Average Sqft | Distance |
|---|---|---|---|
| York Road | £ 925,000 | 0 | 0.00 KM |
| Barrington Lodge | £ 0 | 0 | 0.00 KM |
| Howard Place | £ 412,500 | 0 | 0.00 KM |
| Saint George’s Close | £ 725,000 | 0 | 0.00 KM |
| Cedar Grove | £ 0 | 0 | 0.00 KM |
Nearby Transport
| Name | NLC | TLC | Distance |
|---|---|---|---|
| Weybridge | 5577 | WYB | 1.46 KM |
| Shepperton | 5605 | SHP | 3.25 KM |
| Walton-On-Thames | 5575 | WAL | 3.51 KM |
| Addlestone | 5550 | ASN | 4.30 KM |
| Byfleet And New Haw | 5689 | BFN | 4.39 KM |
Nearby Listings
| Address | Price | Type | Score | Distance |
|---|---|---|---|---|
| 24 Queens Road Queens Road, Weybridge, KT13 9UX | £ 730,200 | BUY | 7 / 10 | 0.00 KM |
| 24 Queens Road Queens Road, Weybridge, KT13 9UX | £ 399,000 | BUY | 6 / 10 | 0.00 KM |
| 24 Queens Road Queens Road, Weybridge, KT13 9UX | £ 525,000 | BUY | 6 / 10 | 0.00 KM |
| 24 Queens Road Queens Road, Weybridge, KT13 9UX | £ 745,000 | BUY | 7 / 10 | 0.00 KM |
| 24 Queens Road Queens Road, Weybridge, KT13 9UX | £ 405,000 | BUY | 6 / 10 | 0.00 KM |
Nearby Properties
| Address | Price | Distance |
|---|---|---|
| 61 Queens Road | £ 490,000 | 0.05 KM |
| 87a Queens Road | £ 250,000 | 0.06 KM |
| 99a Queens Road | £ 280,000 | 0.06 KM |
| 16 Princes Road | £ 497,500 | 0.08 KM |
| 22 Princes Road | £ 649,995 | 0.08 KM |