Maidstone Road, Wigmore, Gillingham, ME8
By Greyfox Estate Agents
£ 350,000
Reviews
3 out of 5 stars
Greyfox Estate Agents says ..
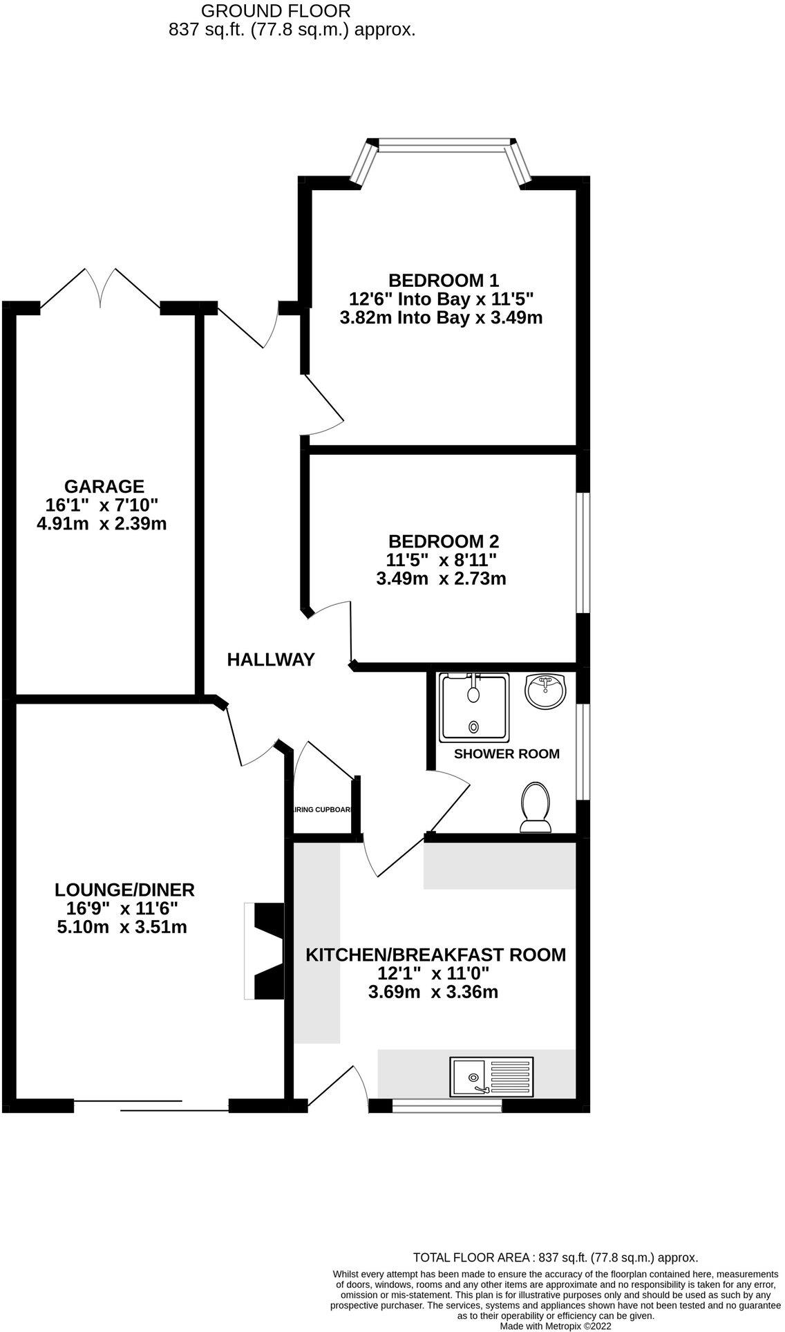
Guide Price - £350,000 - £375,000.Offered with no forward chain, this well presented two bedroom semi detached bungalow is located in the sought after area of Wigmore. Move in with confidence, as the owners installed a new Ideal combination boiler in 2023 covered by a five-y...
Property Oracle says ..
This property is a 2-bedroom bungalow located in Wigmore, Gillingham. It benefits from a good-sized garden and is within a reasonable distance of local amenities and transport links. The property appears to be in generally good condition, although some modernisation may be desirable to enhance its appeal. The list price of £350,000 is slightly below the average price for the area, but the smaller size of the property compared to the average needs to be considered. The property is a good option for those seeking a bungalow in a convenient location.
Therefore, we give this property 7 / 10. *Disclaimer: This is our option and does constitute a recommendation or financial advice. Do your own research. *
- Price
- 7
- Condition
- 7
- Location
- 8
- Land
- 7
- Bedrooms
- 2
- Bathrooms
- 1
- Sqft (est)
- 737.00
- Lot (est)
- 837.00
The heatmap indicates the level of crime in the area. The color of the heatmap indicates the crime severity and recency.
Metrics Year-on-Year
- Average area value
- 405,000.00 £Increased by 14.70 %
- Est sale value
- 292,589.00 £Increased by 5.03 %
- Average area rental value
- 1,825.00 £/moIncreased by 1.45 %
- Est letting value
- 737.00 £/moUnchanged by 0.00 %
- Est rental Yield
- 5.41 %Decreased by 11.46 %
- Crime Rate
- 6.00 %Unchanged by 0.00 %
Agent Activity
Greyfox Estate Agents created the listing.
Nearby Schools
| Name | Type | Ofsted | Distance |
|---|---|---|---|
| Deanwood Children'S Centre | Children's Centre | 0.37 KM | |
| Deanwood Primary School | Academy Converter | Good | 0.42 KM |
| Fairview Community Primary School | Community School | Good | 0.79 KM |
| St Augustine Of Canterbury Catholic Primary School | Voluntary Aided School | Good | 0.82 KM |
| Parkwood Primary School | Community School | Good | 1.43 KM |
Images
Nearby Streets
| Name | Average Price | Average Sqft | Distance |
|---|---|---|---|
| M2 | £ 0 | 0 | 0.00 KM |
| Hurstwood Road | £ 0 | 0 | 0.00 KM |
| Sunningdale Close | £ 375,000 | 0 | 0.00 KM |
| Blacksmiths Court | £ 0 | 0 | 0.00 KM |
| Honeybee Glade | £ 275,000 | 0 | 0.00 KM |
Nearby Transport
| Name | NLC | TLC | Distance |
|---|---|---|---|
| Rainham (Kent) | 5177 | RAI | 3.78 KM |
| Gillingham (Kent) | 5169 | GLM | 6.61 KM |
| Bearsted | 5091 | BSD | 7.37 KM |
| Chatham | 5199 | CTM | 8.62 KM |
| Newington | 5175 | NGT | 8.97 KM |
Nearby Listings
| Address | Price | Type | Score | Distance |
|---|---|---|---|---|
| Maidstone Road, Wigmore, Gillingham, ME8 | £ 350,000 | BUY | 7 / 10 | 0.00 KM |
| Maidstone Road, Wigmore, Kent, ME8 | £ 475,000 | BUY | Unknown | 0.01 KM |
| Maidstone Road, Wigmore, Rainham, Kent, ME8 | £ 550,000 | BUY | 6 / 10 | 0.10 KM |
| Rutland Place, Rainham | £ 550,000 | BUY | 6 / 10 | 0.17 KM |
| Sedley Close, Rainham | £ 210,000 | BUY | Unknown | 0.18 KM |
Nearby Properties
| Address | Price | Distance |
|---|---|---|
| 674 Maidstone Road | £ 456,000 | 0.02 KM |
| 15 Roper Close | £ 161,995 | 0.11 KM |
| 11 Roper Close | £ 160,000 | 0.11 KM |
| 27 Roper Close | £ 260,000 | 0.11 KM |
| 2 Roper Close | £ 258,000 | 0.11 KM |