Marks Hall Lane, White Roding, Dunmow, CM6
By Wright & Co
£ 1,850,000
Reviews
3 out of 5 stars
Wright & Co says ..
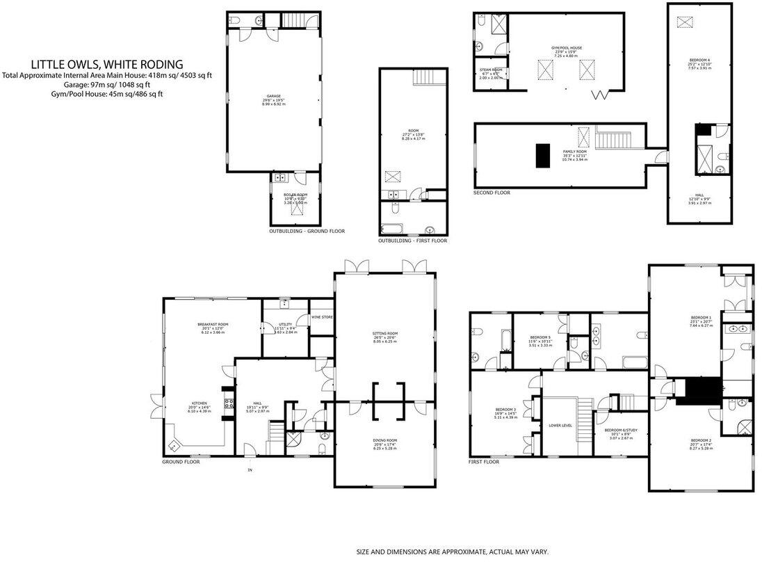
Little Owls is situated in one of the prettiest country lanes in the area. Approached from the White Roding end its tree lined and surrounded by open farmland. The property is set in approximately 5.3 acres of grounds and benefits from lots of useful outbuildings including a triple garage/anne...
Property Oracle says ..
This is a substantial detached property located in Hatfield Heath, Essex. The house features six bedrooms and five bathrooms, making it suitable for large families. The property is in excellent condition, with modern interiors and high-end amenities such as a swimming pool, gym, and outdoor kitchen. The large garden and surrounding land offer privacy and space for outdoor activities. While the price is significantly above the local average, the property’s size, condition, and features justify the premium. The proximity to Stansted Airport and well-rated schools adds to its appeal. Overall, this property offers a luxurious and comfortable living environment in a desirable rural location.
Therefore, we give this property 7 / 10. *Disclaimer: This is our option and does constitute a recommendation or financial advice. Do your own research. *
- Price
- 6
- Condition
- 9
- Location
- 7
- Land
- 9
- Bedrooms
- 6
- Bathrooms
- 5
- Sqft (est)
- 4,499.31
The heatmap indicates the level of crime in the area. The color of the heatmap indicates the crime severity and recency.
Metrics Year-on-Year
- Average area value
- 310,833.00 £Decreased by 19.99 %
- Est sale value
- 2,011,191.57 £Decreased by 3.25 %
- Average area rental value
- 1,673.00 £/moIncreased by 30.50 %
- Est letting value
- 8,998.62 £/moIncreased by 100.00 %
- Est rental Yield
- 6.46 %Increased by 63.13 %
- Crime Rate
- 0.00 %
Agent Activity
Wright & Co created the listing.
Nearby Schools
| Name | Type | Ofsted | Distance |
|---|---|---|---|
| St Mary'S Church Of England Voluntary Aided Primary School, Hatfield Broad Oak | Voluntary Aided School | Good | 3.73 KM |
| Matching Green Church Of England Voluntary Controlled Primary School | Voluntary Controlled School | Good | 4.92 KM |
| Rodings Primary School | Foundation School | Good | 4.92 KM |
| Hatfield Heath Primary School | Academy Converter | Good | 6.62 KM |
| Dr Walker'S Church Of England Voluntary Controlled Primary School, Fyfield | Voluntary Controlled School | Good | 6.88 KM |
Images
Nearby Streets
| Name | Average Price | Average Sqft | Distance |
|---|---|---|---|
| Elms Cottages | £ 0 | 0 | 0.00 KM |
Nearby Transport
| Name | NLC | TLC | Distance |
|---|---|---|---|
| Stansted Airport | 6834 | SSD | 9.94 KM |
Nearby Listings
| Address | Price | Type | Score | Distance |
|---|---|---|---|---|
| Marks Hall Lane, White Roding, Dunmow, CM6 | £ 775,000 | BUY | 7 / 10 | 0.00 KM |
| Marks Hall Lane, White Roding, Dunmow, CM6 | £ 1,850,000 | BUY | 7 / 10 | 0.00 KM |
| St. Martins Close, Dunmow | £ 344,995 | BUY | 7 / 10 | 0.20 KM |
| Church Lane, White Roding, Dunmow, CM6 | £ 550,000 | BUY | 7 / 10 | 0.29 KM |
| Church Lane, White Roding, Dunmow, Essex, CM6 | £ 1,000,000 | BUY | 6 / 10 | 0.58 KM |
Nearby Properties
| Address | Price | Distance |
|---|---|---|
| Yarra Springs | £ 580,000 | 0.08 KM |
| 13 St Martins Close | £ 370,000 | 0.21 KM |
| 7 St Martins Close | £ 280,000 | 0.21 KM |
| 6 St Martins Close | £ 265,000 | 0.21 KM |
| Sunnyside | £ 120,000 | 0.23 KM |