The Old School, Flat 9 The Highland Club, St. Benedicts Abbey, Fort Augustus, PH32 4BJ
By McEwan Fraser Legal
£ 249,000
Reviews
3 out of 5 stars
McEwan Fraser Legal says ..
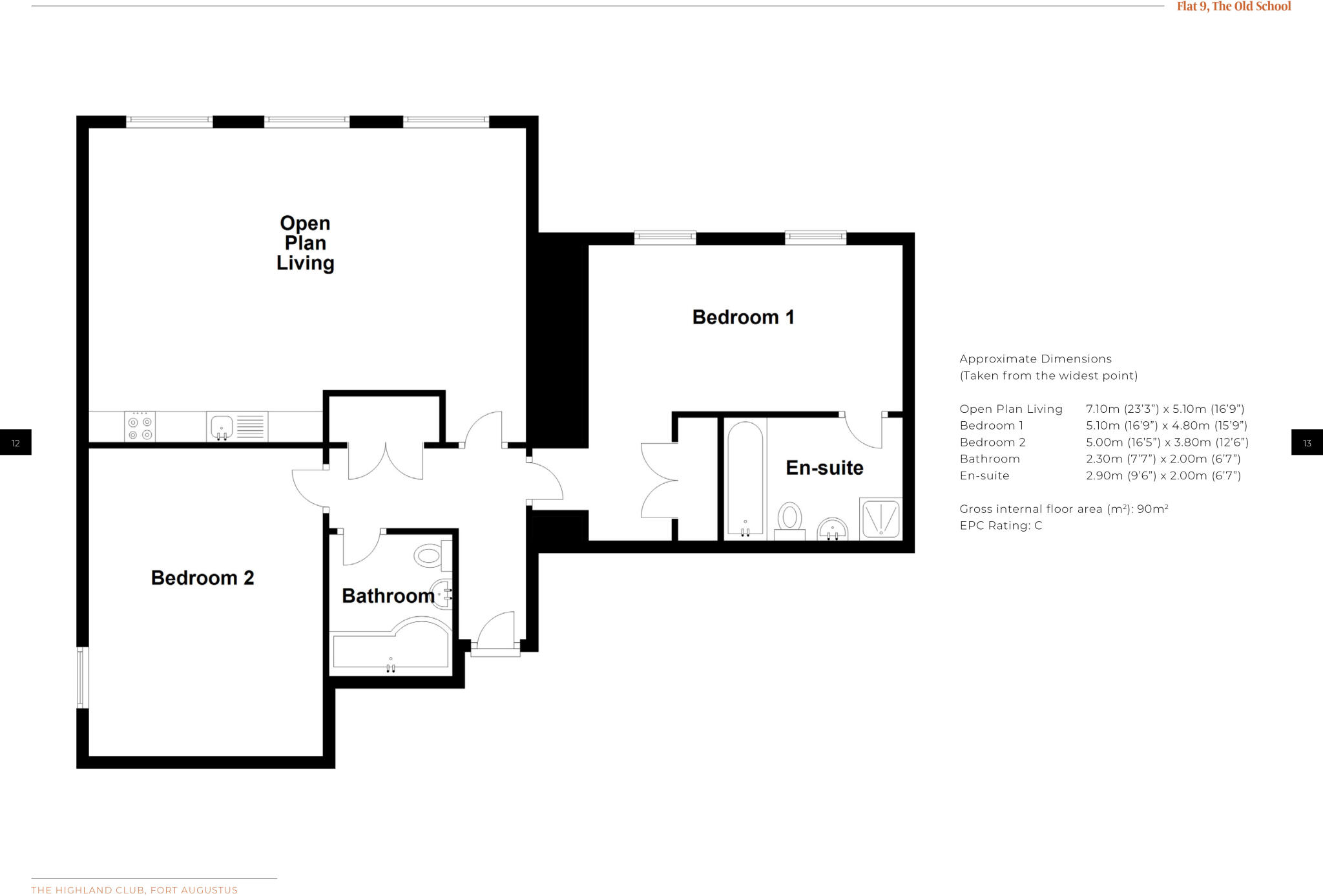
A stunning, fully furnished 2-bedroom, 2-bathroom apartment in the prestigious Highland Club, offering abundant natural light and picturesque views across the Cloister Gardens.
Property Oracle says ..
The property is located within The Highland Club, a prestigious development in Fort Augustus. The location benefits from the stunning scenery of Loch Ness and the historical significance of St. Benedict’s Abbey. While proximity to schools and transportation is not explicitly detailed, the area is generally considered peaceful and may appeal to those seeking a tranquil lifestyle. The lack of specific information on local amenities makes it difficult to provide a definitive location score.
Based on the images provided, the apartment appears to be in excellent condition. The interior is well-maintained, with modern fixtures and fittings. The decor is tasteful and consistent throughout. There is no visible evidence of wear and tear or the need for renovations.
The property is an apartment and therefore does not include a private garden. However, residents have access to communal grounds and facilities within The Highland Club.
The list price of £249,000 for a 968.75 sqft apartment is relatively high compared to the average price per sqft of £241 in the area. However, the property’s location within a prestigious development, its excellent condition, and the inclusion of communal facilities may justify the higher price. Further analysis of comparable properties within The Highland Club would be beneficial to determine a more accurate price assessment.
Therefore, we give this property 6 / 10. *Disclaimer: This is our option and does constitute a recommendation or financial advice. Do your own research. *
- Price
- 7
- Condition
- 10
- Location
- 0
- Land
- 1
- Bedrooms
- 2
- Bathrooms
- 2
- Sqft (est)
- 968.75
The heatmap indicates the level of crime in the area. The color of the heatmap indicates the crime severity and recency.
Metrics Year-on-Year
- Average area value
- 456,667.00 £Increased by 48.67 %
- Est sale value
- 154,031.25 £Decreased by 32.05 %
- Average area rental value
- 900.00 £/moDecreased by 18.18 %
- Est letting value
- 0.00 £/mo
- Est rental Yield
- 2.36 %Decreased by 45.12 %
- Crime Rate
- 0.00 %
Agent Activity
McEwan Fraser Legal created the listing.
Images
Nearby Streets
| Name | Average Price | Average Sqft | Distance |
|---|---|---|---|
| Glendoe Road | £ 105,000 | 0 | 0.00 KM |
| The Riggs | £ 160,000 | 0 | 0.00 KM |
| Bunoich Brae | £ 435,000 | 0 | 0.00 KM |
| Old Main Road | £ 240,000 | 0 | 0.00 KM |
Nearby Listings
| Address | Price | Type | Score | Distance |
|---|---|---|---|---|
| The Old School, Flat 9 The Highland Club, St. Benedicts Abbey, Fort Augustus, PH32 4BJ | £ 249,000 | BUY | 6 / 10 | 0.00 KM |
| Flat 11, The Abbey Church, St. Benedict's Abbey , Fort Augustus, PH32 | £ 300,000 | BUY | 6 / 10 | 0.01 KM |
| 1 Moat House The Highland Club, St. Benedicts Abbey, Fort Augustus, PH32 4BJ | £ 275,000 | BUY | 6 / 10 | 0.03 KM |
| 2 Moat House The Highland Club, St. Benedicts Abbey, Fort Augustus, PH32 4BJ | £ 310,000 | BUY | 6 / 10 | 0.03 KM |
| 8 The Monastery The Highland Club, St. Benedicts Abbey, Fort Augustus, PH32 4BJ | £ 310,000 | BUY | 7 / 10 | 0.04 KM |