WellingtonWise says ..
A centrally located first floor maisonette situated in the regarded King James Way location. The property features and extended lease with around 154 years remaining and the property is offered for sale with no chain!
Property Oracle says ..
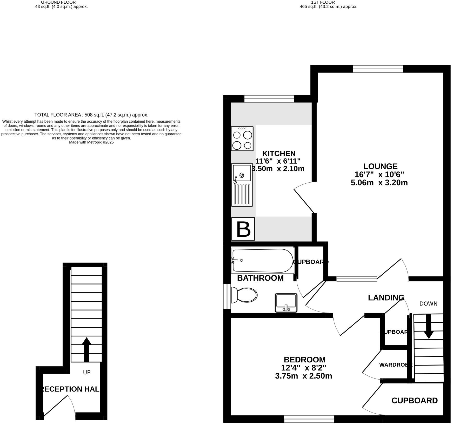
The property is a maisonette located in Royston, Hertfordshire.
It has one bedroom and one bathroom, and a total area of 408 sqft. The plot size is 508 sqft. The asking price is £200,000.
The property appears to be in good condition based on the provided images. The interior is clean and well-maintained, with modern fixtures and fittings in the kitchen and bathroom. There is no visible evidence of damage or disrepair.
The property benefits from a small garden area visible in the exterior photo. While not expansive, it does provide some outdoor space.
Considering the average price per sqft in the area is £380 and this property is listed at £200,000 for 408 sqft, the price per sqft is approximately £490. This is significantly higher than the average for the area. However, several comparable properties on King James Way are listed at similar prices, suggesting that the asking price may reflect the current market value for this particular location and property type. The proximity to Royston train station and several well-regarded schools adds value to the location.
Based on the information provided, the property is reasonably priced for its location and condition, but the price per sqft is above average.
Therefore, we give this property 6 / 10. *Disclaimer: This is our option and does constitute a recommendation or financial advice. Do your own research. *
- Price
- 6
- Condition
- 8
- Location
- 7
- Land
- 6
- Bedrooms
- 1
- Bathrooms
- 1
- Sqft (est)
- 408.00
- Lot (est)
- 508.00
The heatmap indicates the level of crime in the area. The color of the heatmap indicates the crime severity and recency.
Metrics Year-on-Year
- Average area value
- 345,333.00 £Decreased by 15.62 %
- Est sale value
- 156,672.00 £Increased by 17.07 %
- Average area rental value
- 1,049.00 £/moIncreased by 2.94 %
- Est letting value
- 408.00 £/mo
- Est rental Yield
- 3.65 %Increased by 22.07 %
- Crime Rate
- 17.00 %Unchanged by 0.00 %
Agent Activity
WellingtonWise marked this listing as sold.
WellingtonWise created the listing.
Nearby Schools
| Name | Type | Ofsted | Distance |
|---|---|---|---|
| St Mary Roman Catholic Primary School | Academy Converter | Outstanding | 0.34 KM |
| Tannery Drift School | Community School | Good | 0.65 KM |
| Studlands Rise First School | Community School | Good | 0.98 KM |
| Nh1 Royston And Villages Family Centre | Children's Centre | 1.09 KM | |
| Roman Way Academy | Academy Sponsor Led | 1.09 KM |
Images
Nearby Streets
| Name | Average Price | Average Sqft | Distance |
|---|---|---|---|
| Butchers Baulk | £ 0 | 0 | 0.00 KM |
| A10 | £ 0 | 0 | 0.00 KM |
| A10 | £ 0 | 0 | 0.00 KM |
| Cain Court | £ 0 | 0 | 0.00 KM |
| Rivermill Court | £ 0 | 0 | 0.00 KM |
Nearby Transport
| Name | NLC | TLC | Distance |
|---|---|---|---|
| Royston | 6090 | RYS | 0.60 KM |
| Meldreth | 7036 | MEL | 5.73 KM |
| Shepreth | 7044 | STH | 9.31 KM |
| Ashwell And Morden | 6083 | AWM | 9.88 KM |
Nearby Listings
| Address | Price | Type | Score | Distance |
|---|---|---|---|---|
| King James Way, Royston | £ 200,000 | BUY | 6 / 10 | 0.00 KM |
| King James Way, Royston | £ 240,000 | BUY | 7 / 10 | 0.02 KM |
| King James Way, Royston, Hertfordshire, SG8 | £ 240,000 | BUY | 6 / 10 | 0.02 KM |
| King James Way, Royston, SG8 | £ 160,000 | BUY | 5 / 10 | 0.04 KM |
| King James Way, Royston, SG8 | £ 170,000 | BUY | 6 / 10 | 0.06 KM |
Nearby Properties
| Address | Price | Distance |
|---|---|---|
| 45 King James Way | £ 320,000 | 0.06 KM |
| 112 King James Way | £ 185,000 | 0.06 KM |
| 118 King James Way | £ 66,500 | 0.06 KM |
| 96 King James Way | £ 128,500 | 0.06 KM |
| 21 King James Way | £ 134,000 | 0.06 KM |