Chancellors says ..
A three bedroom period cottage with 100' south west facing rear garden situated in this residential neighbourhood. 0.2 miles to Barnet town centre with its array of cafes, shops, bars and restaurants and 0.9 miles from High Barnet underground station.
Property Oracle says ..
This three-bedroom terraced property is located in High Barnet, Barnet, EN5, a suburb of London. The property benefits from being close to several schools, including Foulds School (Good Ofsted rating) and Christ Church Primary School (Good Ofsted rating), both within a kilometer. Transportation links are also relatively convenient, with several train stations within a reasonable distance, providing access to central London.
The property itself appears to be in good condition based on the provided images. The interior is modern and well-maintained, with a recently updated kitchen and bathroom. There is evidence of tasteful renovations and modernisation throughout. The garden is a significant feature, offering a good-sized outdoor space, which is a valuable asset in a densely populated area like London.
Considering the average price per square foot in the area is £571 and the list price of this property is £600,000, the price seems reasonable, especially given its location, condition, and the inclusion of a garden. While the average house price in the area is significantly higher (£979,926), this property’s smaller size and terraced nature justify the lower price point. Nearby comparable properties on Alston Road support this assessment, with prices ranging from £595,000 to £645,000.
The property’s location, condition, and price all contribute to a positive overall assessment. The inclusion of a garden further enhances its value.
Therefore, we give this property 7 / 10. *Disclaimer: This is our option and does constitute a recommendation or financial advice. Do your own research. *
- Price
- 7
- Condition
- 8
- Location
- 8
- Land
- 7
- Bedrooms
- 3
- Bathrooms
- 0
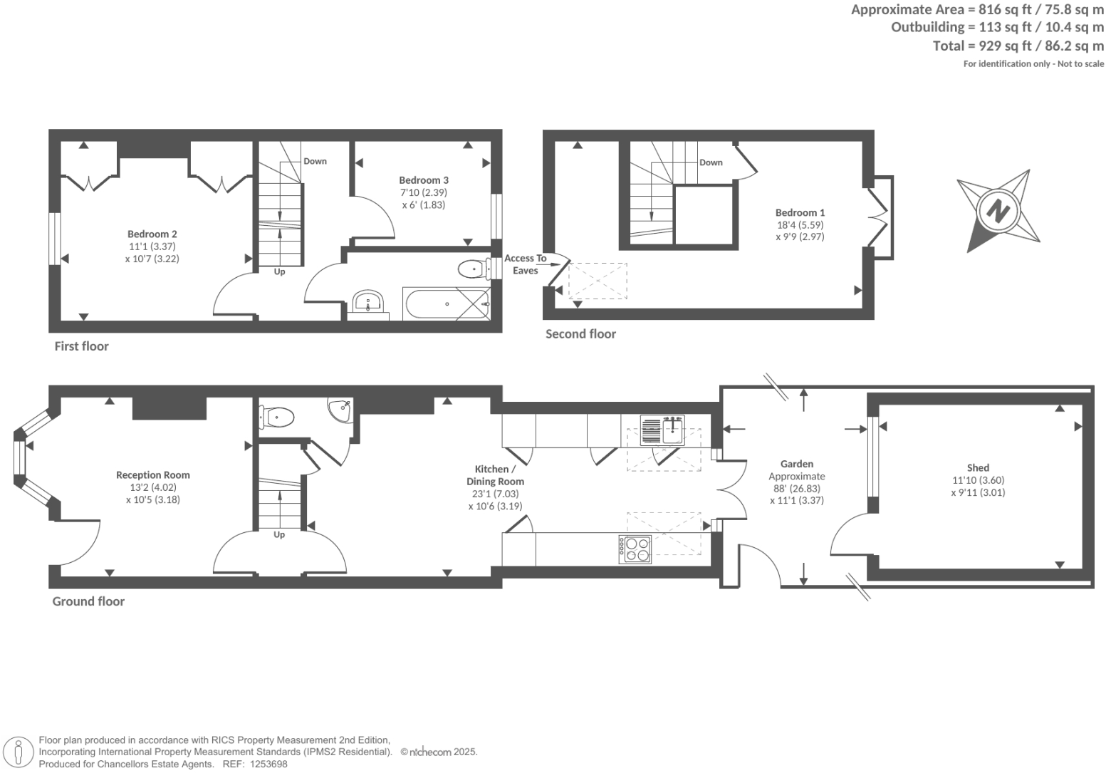
- Sqft (est)
- 929.00
The heatmap indicates the level of crime in the area. The color of the heatmap indicates the crime severity and recency.
Metrics Year-on-Year
- Average area value
- 677,122.00 £Decreased by 28.61 %
- Est sale value
- 501,660.00 £Decreased by 27.71 %
- Average area rental value
- 5,020.00 £/moIncreased by 76.26 %
- Est letting value
- 3,716.00 £/moIncreased by 100.00 %
- Est rental Yield
- 8.90 %Increased by 147.22 %
- Crime Rate
- 10.00 %Unchanged by 0.00 %
Agent Activity
Chancellors created the listing.
Nearby Schools
| Name | Type | Ofsted | Distance |
|---|---|---|---|
| Foulds School | Community School | Good | 0.46 KM |
| Christ Church Primary School | Voluntary Aided School | Good | 0.70 KM |
| Queen Elizabeth'S School, Barnet | Academy Converter | 0.74 KM | |
| Barnet And Southgate College | Further Education | Requires improvement | 0.78 KM |
| Susi Earnshaw Theatre School | Other Independent School | 0.79 KM |
Images
Nearby Streets
| Name | Average Price | Average Sqft | Distance |
|---|---|---|---|
| Spring Close | £ 0 | 0 | 0.00 KM |
| Oyster Close | £ 725,000 | 0 | 0.00 KM |
| Eleanor Gardens | £ 0 | 0 | 0.00 KM |
| Warwick Gardens | £ 750,000 | 0 | 0.00 KM |
| Hermes Close | £ 0 | 0 | 0.00 KM |
Nearby Transport
| Name | NLC | TLC | Distance |
|---|---|---|---|
| Hadley Wood | 6075 | HDW | 3.54 KM |
| New Barnet | 6018 | NBA | 3.77 KM |
| Potters Bar | 6022 | PBR | 4.70 KM |
| Oakleigh Park | 6020 | OKL | 4.90 KM |
| Mill Hill Broadway | 1527 | MIL | 6.84 KM |
Nearby Listings
| Address | Price | Type | Score | Distance |
|---|---|---|---|---|
| High Barnet, Barnet, EN5 | £ 600,000 | BUY | 7 / 10 | 0.00 KM |
| Alston Road, High Barnet | £ 645,000 | BUY | Unknown | 0.05 KM |
| Prospect Road, Barnet, EN5 | £ 500,000 | BUY | 7 / 10 | 0.09 KM |
| Sutherland Close, Barnet, EN5 | £ 395,000 | BUY | 6 / 10 | 0.09 KM |
| Strafford Road, Barnet | £ 575,000 | BUY | 6 / 10 | 0.09 KM |
Nearby Properties
| Address | Price | Distance |
|---|---|---|
| 45 Alston Road | £ 383,400 | 0.04 KM |
| 39a Alston Road | £ 159,995 | 0.04 KM |
| 39c Alston Road | £ 380,000 | 0.04 KM |
| 48 Strafford Road | £ 760,000 | 0.08 KM |
| 58 Strafford Road | £ 435,000 | 0.08 KM |