Winkworth says ..
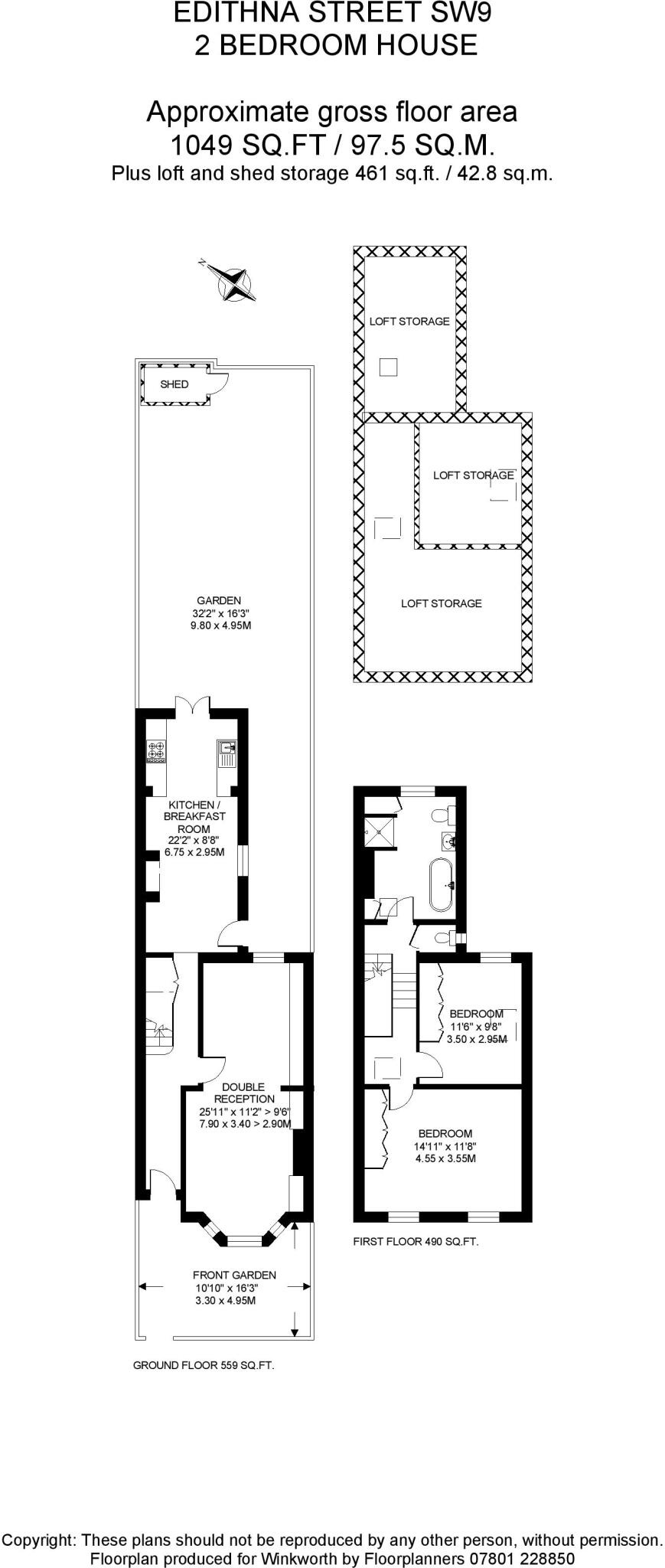
A beautiful late Victorian home with a garden. Tucked away on the peaceful, residential Edithna Street, this charming late Victorian mid-terrace house offers spacious and stylish living across two bedrooms, with the added benefit of a stunning private garden. EPC rating D.
Property Oracle says ..
Therefore, we give this property 7 / 10. *Disclaimer: This is our option and does constitute a recommendation or financial advice. Do your own research. *
- Price
- 5
- Condition
- 8
- Location
- 8
- Land
- 7
- Bedrooms
- 2
- Bathrooms
- 1
- Sqft (est)
- 1,486.44
The heatmap indicates the level of crime in the area. The color of the heatmap indicates the crime severity and recency.
Metrics Year-on-Year
- Average area value
- 288,590.00 £Decreased by 37.85 %
- Est sale value
- 477,147.24 £Decreased by 32.70 %
- Average area rental value
- 2,219.00 £/moDecreased by 2.72 %
- Est letting value
- 2,972.88 £/moUnchanged by 0.00 %
- Est rental Yield
- 9.23 %Increased by 56.71 %
- Crime Rate
- 11.00 %Unchanged by 0.00 %
from 464,364.00 £
from 709,031.88 £
from 2,281.00 £/mo
from 2,972.88 £/mo
from 5.89 %
from 11.00 %
Agent Activity
Winkworth marked this listing as sold.
Winkworth created the listing.
Nearby Schools
| Name | Type | Ofsted | Distance |
|---|---|---|---|
| St Andrew'S Church Of England Primary School | Voluntary Aided School | Good | 0.16 KM |
| Lansdowne School | Community Special School | Good | 0.26 KM |
| Stockwell Primary School And Children'S Centre | Children's Centre | 0.38 KM | |
| Stockwell Primary School | Community School | Requires improvement | 0.44 KM |
| Platanos College | Academy Converter | Outstanding | 0.78 KM |
Images
Nearby Streets
| Name | Average Price | Average Sqft | Distance |
|---|---|---|---|
| Stockwell Green Court | £ 0 | 0 | 0.00 KM |
| Ferndale Road | £ 0 | 0 | 0.00 KM |
| Swan Mews | £ 0 | 0 | 0.00 KM |
| Landor Road | £ 625,000 | 0 | 0.00 KM |
| Sidney Road | £ 550,000 | 0 | 0.00 KM |
Nearby Transport
| Name | NLC | TLC | Distance |
|---|---|---|---|
| Brixton | 5081 | BRX | 0.95 KM |
| Clapham High Street | 5301 | CLP | 1.18 KM |
| Wandsworth Road | 5372 | WWR | 1.86 KM |
| Vauxhall | 5597 | VXH | 2.14 KM |
| Loughborough Junction | 5082 | LGJ | 2.19 KM |
Nearby Listings
| Address | Price | Type | Score | Distance |
|---|---|---|---|---|
| Edithna Street, London, SW9 | £ 950,000 | BUY | 7 / 10 | 0.00 KM |
| Landor Road, London | £ 450,000 | BUY | 6 / 10 | 0.04 KM |
| Landor Road, Lambeth, London, SW9 | £ 475,000 | BUY | 6 / 10 | 0.04 KM |
| Nealden Street, Lambeth, London, SW9 | £ 500,000 | BUY | 5 / 10 | 0.04 KM |
| Hargwyne Street, Clapham, London, SW9 | £ 875,000 | BUY | 8 / 10 | 0.05 KM |
Nearby Properties
| Address | Price | Distance |
|---|---|---|
| 124 Landor Road | £ 250,000 | 0.03 KM |
| 135b Landor Road | £ 220,000 | 0.04 KM |
| 135 Landor Road | £ 435,000 | 0.04 KM |
| 139b Landor Road | £ 250,000 | 0.04 KM |
| 139a Landor Road | £ 287,500 | 0.04 KM |