Nelson Road North, Great Yarmouth
By Starkings & Watson
£ 140,000
Reviews
2 out of 5 stars
Starkings & Watson says ..
NO CHAIN. This END-OF-TERRACE house is located on the edge of Great Yarmouth town centre within walking distance to the ‘Golden Mile’, Great Yarmouth’s famous coastline, a bustling summer holiday destination. The property is occupied by a LONG TERM TENANT and benefits from GAS fired CENTRAL HEATI...
Property Oracle says ..
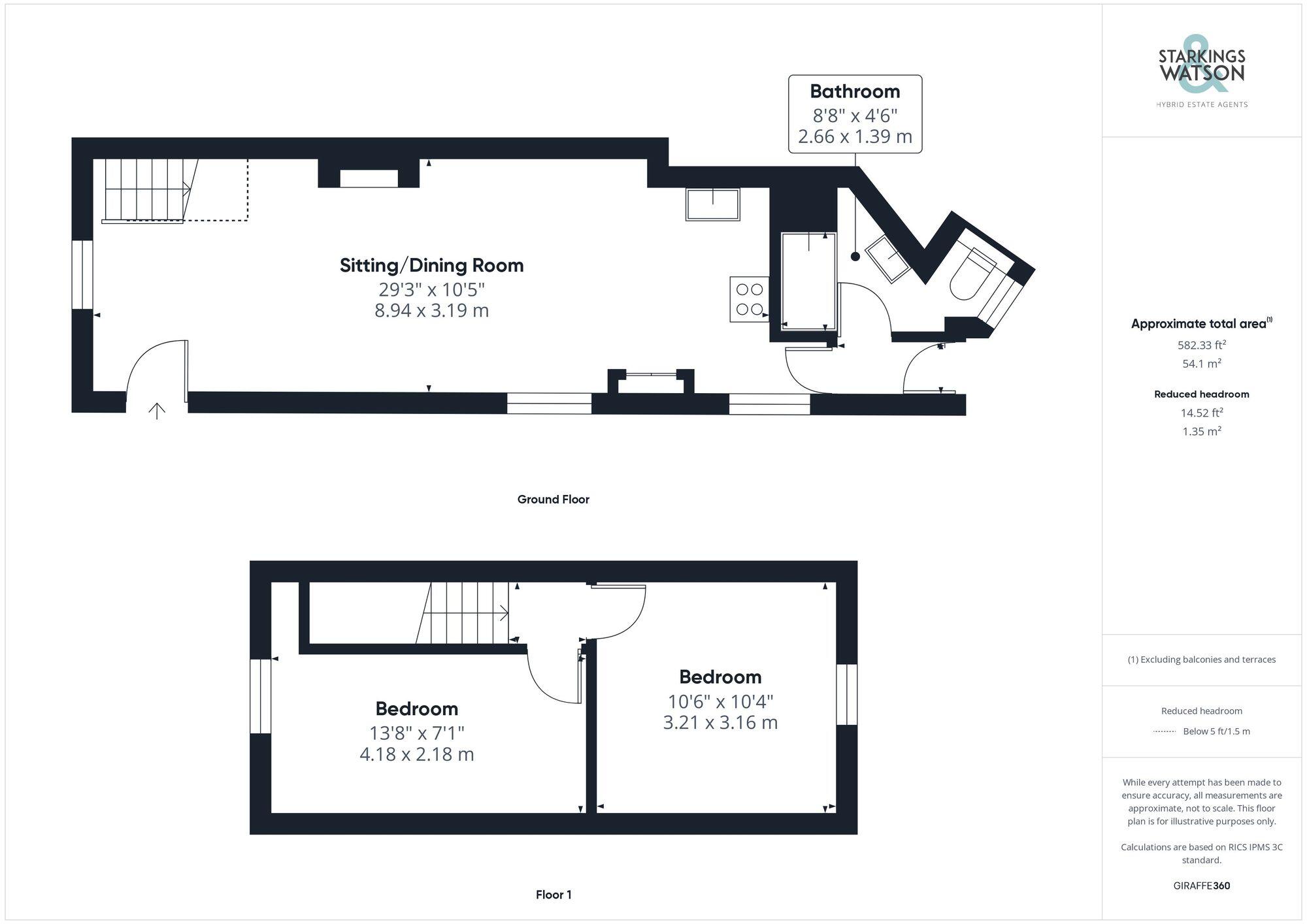
This 2-bedroom, 1-bathroom terraced house located on Nelson Road North in Great Yarmouth, Norfolk is listed for £140,000. The property’s size is 582.33 sqft and has essentially no outdoor space. From the photos provided, the property is habitable but appears dated and could benefit from modernisation, particularly in terms of interior décor. The kitchen and bathroom, while functional, show signs of age.
The location is positive, with nearby schools receiving good Ofsted ratings and the town centre within reach. However, there’s limited information about the immediate street’s character and the overall neighborhood ambiance. The pricing appears competitive within the given range of similar properties in the surrounding area, but the lack of outdoor space and the condition of the property would need to be carefully considered by any potential buyer. Further information about the property’s overall condition and structural soundness would be helpful. A survey is strongly recommended before purchase. The nearby transportation options are favourable, with Great Yarmouth train station within walking distance.
Therefore, we give this property 4 / 10. *Disclaimer: This is our option and does constitute a recommendation or financial advice. Do your own research. *
- Price
- 7
- Condition
- 5
- Location
- 6
- Land
- 1
- Bedrooms
- 2
- Bathrooms
- 1
- Sqft (est)
- 582.33
The heatmap indicates the level of crime in the area. The color of the heatmap indicates the crime severity and recency.
Metrics Year-on-Year
- Average area value
- 170,000.00 £Increased by 4.27 %
- Est sale value
- 127,530.27 £Increased by 28.82 %
- Average area rental value
- 840.00 £/moIncreased by 14.29 %
- Est letting value
- 582.33 £/mo
- Est rental Yield
- 5.93 %Increased by 9.61 %
- Crime Rate
- 14.00 %Unchanged by 0.00 %
Agent Activity
Starkings & Watson created the listing.
Nearby Schools
| Name | Type | Ofsted | Distance |
|---|---|---|---|
| Visiting Teacher Service East At Education Services Centre | Miscellaneous | 0.31 KM | |
| Novaturient School | Other Independent Special School | Good | 0.31 KM |
| St Nicholas Priory Cofe Va Primary School | Voluntary Aided School | Good | 0.67 KM |
| Great Yarmouth Children'S Centre (Priory) | Children's Centre | 0.67 KM | |
| St George'S Primary & Nursery School, Great Yarmouth | Community School | Good | 0.82 KM |
Images
Nearby Streets
| Name | Average Price | Average Sqft | Distance |
|---|---|---|---|
| Nettle Hill East | £ 0 | 0 | 0.00 KM |
| John Winter Court | £ 120,000 | 0 | 0.00 KM |
| Factory Road | £ 0 | 0 | 0.00 KM |
| Queens Square | £ 0 | 0 | 0.00 KM |
| Wellington Place | £ 0 | 0 | 0.00 KM |
Nearby Transport
| Name | NLC | TLC | Distance |
|---|---|---|---|
| Great Yarmouth | 7328 | GYM | 1.41 KM |
Nearby Listings
| Address | Price | Type | Score | Distance |
|---|---|---|---|---|
| Nelson Road North, Great Yarmouth | £ 140,000 | BUY | 4 / 10 | 0.00 KM |
| Nelson Road North, Great Yarmouth | £ 180,000 | BUY | 5 / 10 | 0.01 KM |
| 7 Nettle Hill West, Great Yarmouth, Norfolk NR30 2DW | £ 80,000 | BUY | 4 / 10 | 0.05 KM |
| 55 Nelson Road North, Great Yarmouth, Norfolk NR30 2AT | £ 160,000 | BUY | 5 / 10 | 0.05 KM |
| Nelson Road North, Great Yarmouth | £ 300,000 | BUY | 4 / 10 | 0.06 KM |
Nearby Properties
| Address | Price | Distance |
|---|---|---|
| 7 Nettlehill West | £ 64,950 | 0.04 KM |
| 24 Nelson Road North | £ 124,000 | 0.05 KM |
| 26 Nelson Road North | £ 126,950 | 0.05 KM |
| 50 Nelson Road North | £ 49,950 | 0.05 KM |
| 19 Nelson Road North | £ 150,000 | 0.05 KM |