Eco-home building plot, Compton Dundon
By Sandersons
£ 300,000
Reviews
3 out of 5 stars
Sandersons says ..
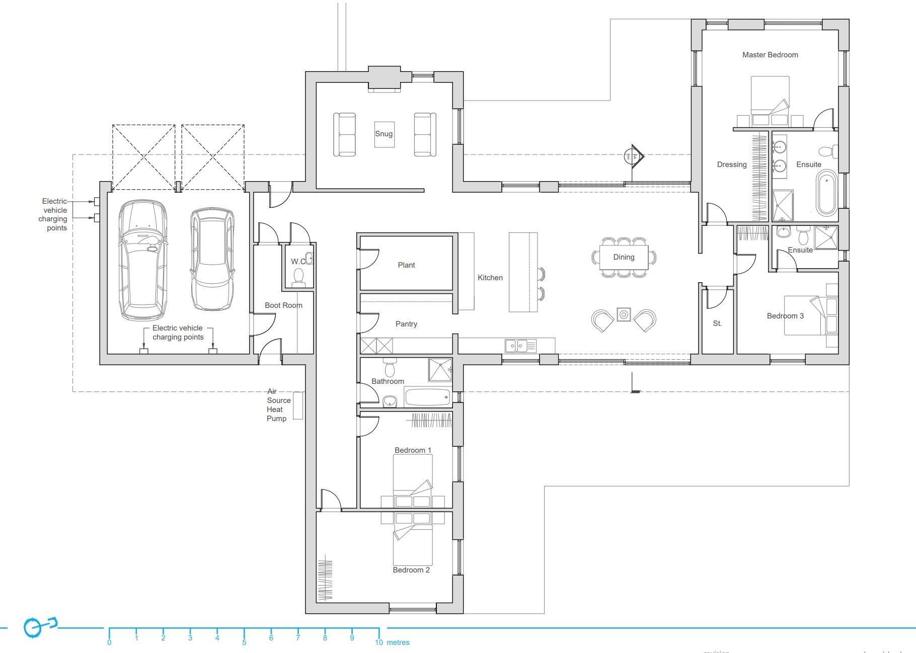
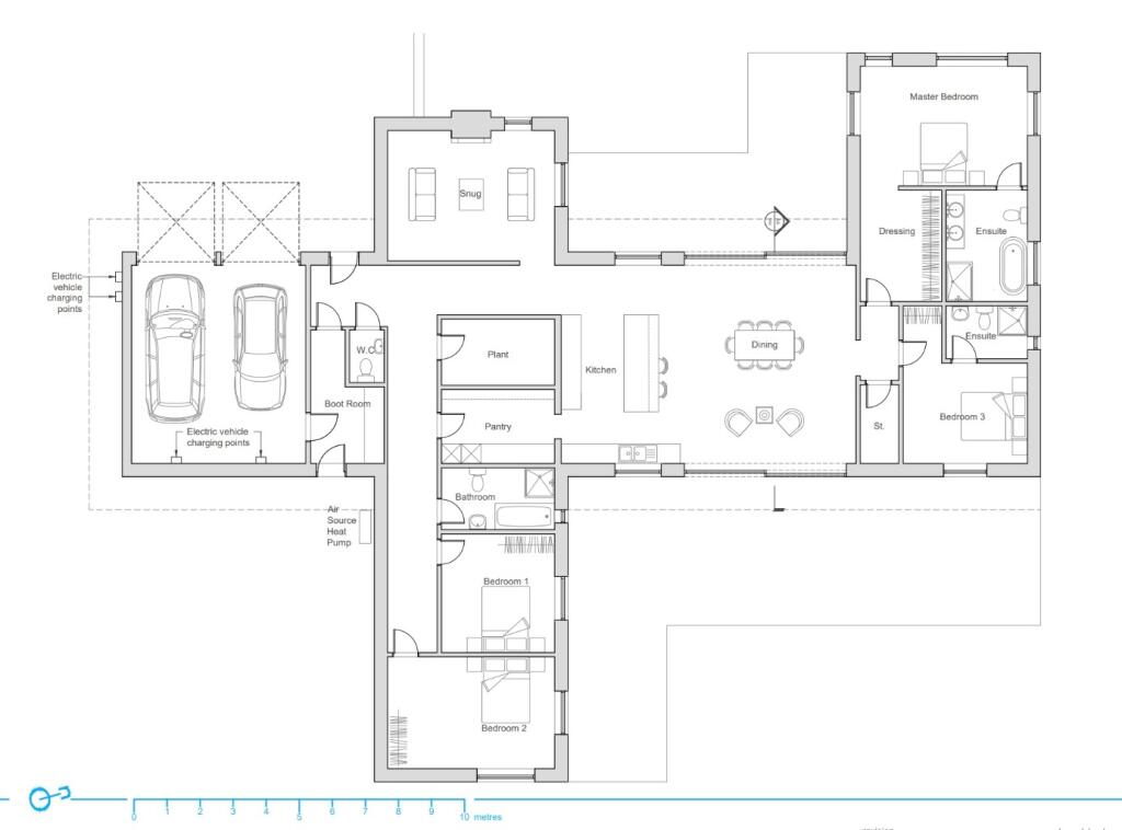
Guide Price: £300,000 - £350,000. Exceptional opportunity for a single storey, new-build four bed eco-home with stone outbuildings, gardens and orchard set in just under 1 acre (further land available). Located in the popular village of Compton Dundon
Property Oracle says ..
This is a detached property located on Castlebrook in Compton Dundon, South Somerset. Currently listed as a building plot, the property requires significant renovation or complete rebuilding. The existing structures appear dated and in need of repair. However, the location is desirable, with proximity to local schools and the surrounding Wessex countryside. The property benefits from a generous plot size, offering potential for landscaping and expansion. The asking price of £300,000 reflects the condition and the work required to develop the site.
Therefore, we give this property 6 / 10. *Disclaimer: This is our option and does constitute a recommendation or financial advice. Do your own research. *
- Price
- 7
- Condition
- 3
- Location
- 7
- Land
- 8
- Bedrooms
- 4
- Bathrooms
- 3
- Sqft (est)
- 1,054.86
The heatmap indicates the level of crime in the area. The color of the heatmap indicates the crime severity and recency.
Metrics Year-on-Year
- Average area value
- 1,000,000.00 £Increased by 113.64 %
- Est sale value
- 448,315.50 £Increased by 66.02 %
- Average area rental value
- 1,063.00 £/moDecreased by 28.32 %
- Est letting value
- 0.00 £/mo
- Est rental Yield
- 1.28 %Decreased by 66.32 %
- Crime Rate
- 0.00 %
Agent Activity
Sandersons created the listing.
Nearby Schools
| Name | Type | Ofsted | Distance |
|---|---|---|---|
| Compton Dundon School | Other Independent Special School | Good | 1.47 KM |
| Avalon School | Community Special School | Good | 3.41 KM |
| Millfield School | Other Independent School | 3.49 KM | |
| Street Building | Children's Centre Linked Site | 3.49 KM | |
| Brookside Community Primary School | Academy Converter | Good | 3.55 KM |
Images
Nearby Streets
| Name | Average Price | Average Sqft | Distance |
|---|---|---|---|
| Home Field Close | £ 0 | 0 | 0.00 KM |
Nearby Listings
| Address | Price | Type | Score | Distance |
|---|---|---|---|---|
| Castlebrook, Compton Dundon | £ 550,000 | BUY | Unknown | 0.00 KM |
| Eco-home building plot, Compton Dundon | £ 300,000 | BUY | 6 / 10 | 0.00 KM |
| Castlebrook, Compton Dundon | £ 750,000 | BUY | 7 / 10 | 0.04 KM |
| Compton Dundon, Somerton | £ 625,000 | BUY | 8 / 10 | 0.17 KM |
| Compton Street, Compton Dundon | £ 495,000 | BUY | Unknown | 0.18 KM |
Nearby Properties
| Address | Price | Distance |
|---|---|---|
| Brook Cottage | £ 420,000 | 0.03 KM |
| Compton Randle | £ 650,000 | 0.03 KM |
| Brook Barn Cottage | £ 266,500 | 0.03 KM |
| Castlebrook House | £ 1,082,500 | 0.03 KM |
| Long Orchard | £ 279,950 | 0.05 KM |