Chipping Campden, Gloucestershire, GL55
By Cotswold Property Auctions
£ 78,000
Reviews
3 out of 5 stars
Cotswold Property Auctions says ..
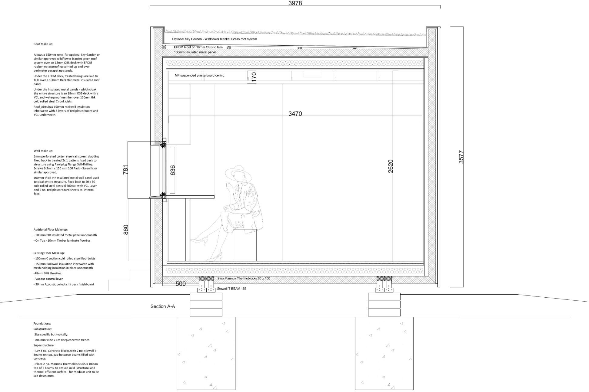
Contemporary modular homes by Neat Architecture. 1-2 bedrooms, 25-37sqm, fully fitted kitchens, living/dining, shower room. Sustainable, high-spec, flexible use as small homes, Airbnb units, or granny annexes. POA. Delivered anywhere in the UK
Property Oracle says ..
This is a one-bedroom bungalow located in Chipping Campden, Gloucestershire. The property is listed at £78,000 and has a floor area of 350 sqft. The property appears to be in good condition, with a modern interior. The location is desirable, being in the Cotswolds, and the price per square foot is below the local average. The property is located on Coronation Close. Nearby schools include St Catharine’s Catholic Primary School, St James And Ebrington Church Of England Primary School, and Chipping Campden School. The nearest train station is Honeybourne, which is 7.83 KM away.
Therefore, we give this property 7 / 10. *Disclaimer: This is our option and does constitute a recommendation or financial advice. Do your own research. *
- Price
- 9
- Condition
- 8
- Location
- 7
- Land
- 6
- Bedrooms
- 1
- Bathrooms
- 1
- Sqft (est)
- 350.00
The heatmap indicates the level of crime in the area. The color of the heatmap indicates the crime severity and recency.
Metrics Year-on-Year
- Average area value
- 241,538.00 £Decreased by 4.18 %
- Est sale value
- 96,950.00 £Increased by 2.97 %
- Average area rental value
- 846.00 £/moIncreased by 4.19 %
- Est letting value
- 0.00 £/mo
- Est rental Yield
- 4.20 %Increased by 8.53 %
- Crime Rate
- 92.00 %Unchanged by 0.00 %
Agent Activity
Cotswold Property Auctions created the listing.
Nearby Schools
| Name | Type | Ofsted | Distance |
|---|---|---|---|
| St Catharine'S Catholic Primary School | Voluntary Aided School | Good | 0.30 KM |
| St James And Ebrington Church Of England Primary School | Voluntary Aided School | Requires improvement | 0.73 KM |
| Chipping Campden School | Academy Converter | Outstanding | 1.36 KM |
| Blockley Church Of England Primary School | Academy Converter | Good | 4.65 KM |
| Mickleton Primary School | Community School | Good | 5.07 KM |
Images
Nearby Streets
| Name | Average Price | Average Sqft | Distance |
|---|---|---|---|
| Coronation Close | £ 375,000 | 0 | 0.00 KM |
| Izod's Close | £ 0 | 0 | 0.00 KM |
| Haysum's Close | £ 683,333 | 0 | 0.00 KM |
| Peelers Close | £ 0 | 0 | 0.00 KM |
| The Green | £ 0 | 0 | 0.00 KM |
Nearby Transport
| Name | NLC | TLC | Distance |
|---|---|---|---|
| Honeybourne | 4794 | HYB | 7.83 KM |
Nearby Listings
| Address | Price | Type | Score | Distance |
|---|---|---|---|---|
| Chipping Campden, Gloucestershire, GL55 | £ 78,000 | BUY | 7 / 10 | 0.00 KM |
| Coronation Close, Chipping Campden, GL55 6BQ | £ 395,000 | BUY | 7 / 10 | 0.01 KM |
| Park Road, Chipping Campden | £ 500,000 | BUY | 7 / 10 | 0.05 KM |
| Park Road, Chipping Campden, GL55 | £ 475,000 | BUY | 7 / 10 | 0.06 KM |
| Park Road, Chipping Campden, Gloucestershire, GL55 | £ 570,000 | BUY | 7 / 10 | 0.06 KM |
Nearby Properties
| Address | Price | Distance |
|---|---|---|
| Rundle Cottage | £ 415,000 | 0.06 KM |
| 3 Park Road | £ 295,000 | 0.06 KM |
| Binary Cottage | £ 445,000 | 0.06 KM |
| Vine Cottage | £ 315,000 | 0.06 KM |
| Acer Cottage | £ 345,000 | 0.06 KM |