Voltaire Road, Clapham High Street, LONDON, SW4
By Foxtons
£ 800,000
Reviews
4 out of 5 stars
Foxtons says ..
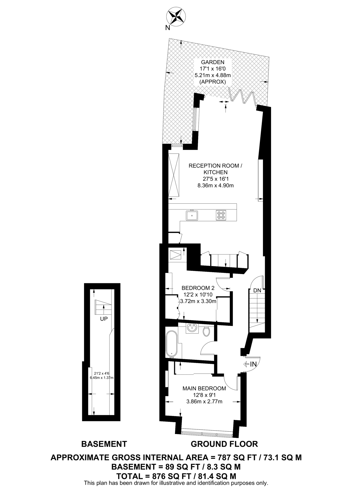
Moments from Clapham High Street, this stylish ground floor flat offers 2 double bedrooms, private garden and a modern open plan kitchen with space to dine.
Property Oracle says ..
This property is a 2 bedroom flat located in Clapham, South West London. The area is well served by transport links, with Clapham High Street Overground station just a short walk away. There are also several highly-rated primary schools within a reasonable distance. The flat itself has been recently renovated to a high standard, featuring a modern kitchen and bathroom. It also benefits from a private rear garden, a rare find for a flat in this area. The list price of £800,000 is slightly above the average price per square foot for the area, but considering the property’s condition, location, and the inclusion of a garden, it could be considered reasonable. Further analysis of comparable properties in the immediate vicinity would be needed to confirm this.
Therefore, we give this property 8 / 10. *Disclaimer: This is our option and does constitute a recommendation or financial advice. Do your own research. *
- Price
- 7
- Condition
- 9
- Location
- 9
- Land
- 7
- Bedrooms
- 2
- Bathrooms
- 1
- Sqft (est)
- 876.00
The heatmap indicates the level of crime in the area. The color of the heatmap indicates the crime severity and recency.
Metrics Year-on-Year
- Average area value
- 778,214.00 £Increased by 6.31 %
- Est sale value
- 828,696.00 £Decreased by 2.07 %
- Average area rental value
- 3,038.00 £/moIncreased by 13.91 %
- Est letting value
- 2,628.00 £/moUnchanged by 0.00 %
- Est rental Yield
- 4.68 %Increased by 7.09 %
- Crime Rate
- 25.00 %Unchanged by 0.00 %
Agent Activity
Foxtons created the listing.
Nearby Schools
| Name | Type | Ofsted | Distance |
|---|---|---|---|
| Clapham Manor Primary School And Children'S Centre | Children's Centre | 0.30 KM | |
| Clapham Manor Primary School | Community School | Outstanding | 0.35 KM |
| Triangle Nursery School | Local Authority Nursery School | Outstanding | 0.40 KM |
| St Mary'S Roman Catholic Primary School | Voluntary Aided School | Outstanding | 0.70 KM |
| Lark Hall Primary School And Children'S Centre | Children's Centre | 0.76 KM |
Images
Nearby Streets
| Name | Average Price | Average Sqft | Distance |
|---|---|---|---|
| Nelson's Row | £ 0 | 0 | 0.00 KM |
| Mews Road | £ 0 | 0 | 0.00 KM |
| Bowlands Road | £ 0 | 0 | 0.00 KM |
| Clapham Manor Court | £ 0 | 0 | 0.00 KM |
| Clapham Road | £ 591,667 | 0 | 0.00 KM |
Nearby Transport
| Name | NLC | TLC | Distance |
|---|---|---|---|
| Clapham High Street | 5301 | CLP | 0.25 KM |
| Wandsworth Road | 5372 | WWR | 0.81 KM |
| Queenstown Road (Battersea) | 5596 | QRB | 1.81 KM |
| Battersea Park | 5420 | BAK | 2.04 KM |
| Brixton | 5081 | BRX | 2.23 KM |
Nearby Listings
| Address | Price | Type | Score | Distance |
|---|---|---|---|---|
| Voltaire Road, Clapham High Street, LONDON, SW4 | £ 695,000 | BUY | 7 / 10 | 0.00 KM |
| Voltaire Road, Clapham High Street, LONDON, SW4 | £ 800,000 | BUY | 8 / 10 | 0.00 KM |
| Bicycle Mews, Clapham | £ 600,000 | BUY | 7 / 10 | 0.01 KM |
| Bicycle Mews, London, SW4 | £ 575,000 | BUY | Unknown | 0.03 KM |
| Voltaire Road, London, SW4 | £ 695,000 | BUY | 7 / 10 | 0.04 KM |
Nearby Properties
| Address | Price | Distance |
|---|---|---|
| 53 Voltaire Road | £ 495,000 | 0.02 KM |
| 59 Voltaire Road | £ 575,000 | 0.02 KM |
| 41 Voltaire Road | £ 675,000 | 0.02 KM |
| 53a Voltaire Road | £ 415,000 | 0.02 KM |
| 37a Voltaire Road | £ 675,000 | 0.03 KM |