Billing Road, Northampton, Northamptonshire, NN1 5RS
By Pattinson Estate Agents
£ 305,000
Reviews
3 out of 5 stars
Pattinson Estate Agents says ..
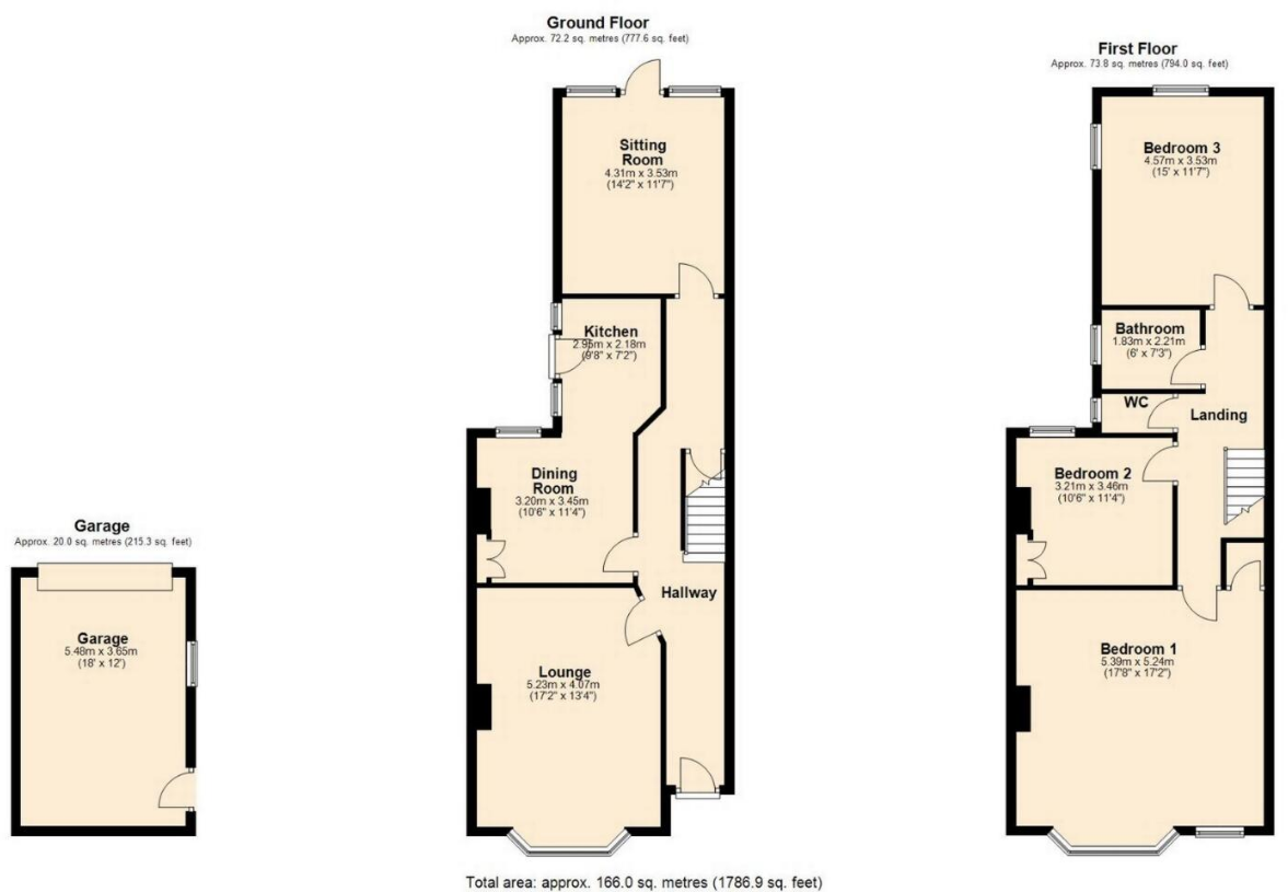
Located close to Northampton School For Boys, Northampton General Hospital and Abington Park is this fantastic opportunity to acquire this larger than average, three bedroom terrace family home, which could be configured into a four bedroom home. The property is in need of modernisation but bene...
Property Oracle says ..
The property is a 3-bedroom terraced house located on Billing Road, Northampton. It is situated in a convenient location, close to schools and local amenities. The property requires renovation, particularly in the kitchen and bathroom. It benefits from a good-sized garden. The listing price is £305,000, which is reasonable considering the location and the potential to add value through renovation.
Therefore, we give this property 6 / 10. *Disclaimer: This is our option and does constitute a recommendation or financial advice. Do your own research. *
- Price
- 6
- Condition
- 4
- Location
- 7
- Land
- 7
- Bedrooms
- 3
- Bathrooms
- 0
The heatmap indicates the level of crime in the area. The color of the heatmap indicates the crime severity and recency.
Metrics Year-on-Year
- Average area value
- 273,908.00 £Increased by 8.17 %
- Average area rental value
- 1,093.00 £/moIncreased by 13.85 %
- Est rental Yield
- 4.79 %Increased by 5.27 %
- Crime Rate
- 2.00 %Unchanged by 0.00 %
Agent Activity
Pattinson Estate Agents created the listing.
Nearby Schools
| Name | Type | Ofsted | Distance |
|---|---|---|---|
| Northampton School For Boys | Academy Converter | Outstanding | 0.21 KM |
| St Andrew'S College | Other Independent School | Outstanding | 0.27 KM |
| Barry Primary School | Community School | Good | 0.57 KM |
| Stimpson Avenue Academy | Academy Sponsor Led | Requires improvement | 1.00 KM |
| Vernon Terrace Primary School | Community School | Good | 1.14 KM |
Images
Nearby Streets
| Name | Average Price | Average Sqft | Distance |
|---|---|---|---|
| Sandringham Close | £ 0 | 0 | 0.00 KM |
| Melbourne Street | £ 0 | 0 | 0.00 KM |
| New Town Road | £ 0 | 0 | 0.00 KM |
| Park Avenue | £ 0 | 0 | 0.00 KM |
| Abington Avenue | £ 265,000 | 0 | 0.00 KM |
Nearby Transport
| Name | NLC | TLC | Distance |
|---|---|---|---|
| Northampton | 1069 | NMP | 4.12 KM |
Nearby Listings
| Address | Price | Type | Score | Distance |
|---|---|---|---|---|
| Billing Road, Northampton, Northamptonshire, NN1 5RS | £ 305,000 | BUY | 6 / 10 | 0.00 KM |
| Billing Road, Northampton, Northamptonshire, NN1 | £ 415,000 | BUY | 6 / 10 | 0.07 KM |
| Billing Road, Abington, NN1 5RS | £ 343,000 | BUY | 6 / 10 | 0.07 KM |
| Billing Road, Abington, Northampton, NN1 | £ 415,000 | BUY | 7 / 10 | 0.07 KM |
| Loyd Road, Abington | £ 310,000 | BUY | 6 / 10 | 0.16 KM |
Nearby Properties
| Address | Price | Distance |
|---|---|---|
| 189 Billing Road | £ 390,000 | 0.12 KM |
| 195 Billing Road | £ 310,000 | 0.12 KM |
| 173 Billing Road | £ 450,000 | 0.12 KM |
| 179 Billing Road | £ 270,000 | 0.12 KM |
| 187 Billing Road | £ 455,000 | 0.12 KM |