Acorn says ..
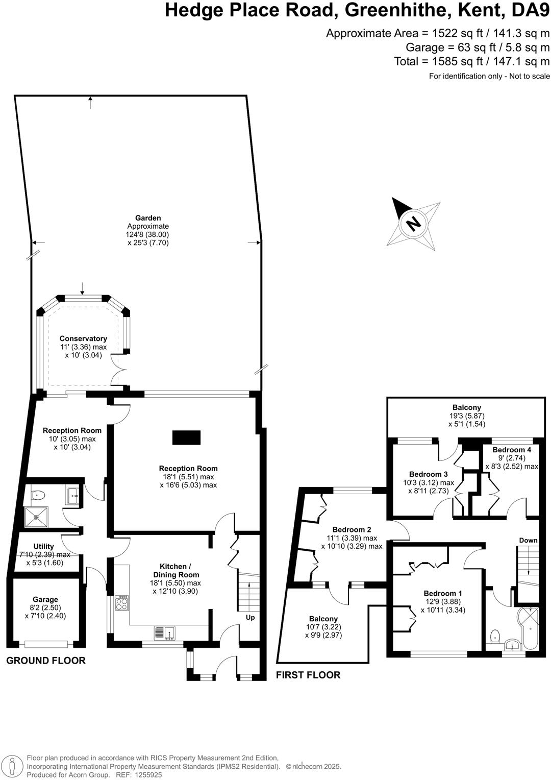
Nestled in a sought-after neighbourhood, this stunning semi-detached house offers an ideal family home with four bedrooms. The property boasts a beautiful garden, a charming conservatory, and a private balcony perfect for enjoying the outdoors. With off-street parking and a garage, co...
Property Oracle says ..
The property is a well-maintained 4-bedroom, 2-bathroom semi-detached house in a convenient location. While the list price is slightly above the area average, the good condition, outdoor space, and proximity to transport and schools could justify the price. More data on comparable properties would allow for a more precise evaluation.
Therefore, we give this property 7 / 10. *Disclaimer: This is our option and does constitute a recommendation or financial advice. Do your own research. *
- Price
- 7
- Condition
- 8
- Location
- 7
- Land
- 6
- Bedrooms
- 4
- Bathrooms
- 2
- Sqft (est)
- 1,369.00
- Lot (est)
- 1,522.00
The heatmap indicates the level of crime in the area. The color of the heatmap indicates the crime severity and recency.
Metrics Year-on-Year
- Average area value
- 335,611.00 £Increased by 6.01 %
- Est sale value
- 646,168.00 £Increased by 36.42 %
- Average area rental value
- 1,744.00 £/moDecreased by 0.85 %
- Est letting value
- 2,738.00 £/moIncreased by 100.00 %
- Est rental Yield
- 6.24 %Decreased by 6.45 %
- Crime Rate
- 0.00 %
Agent Activity
Acorn marked this listing as sold.
Acorn created the listing.
Nearby Schools
| Name | Type | Ofsted | Distance |
|---|---|---|---|
| Stone St Mary'S Cofe Primary School | Academy Converter | Good | 0.71 KM |
| Stone Lodge School | Free Schools | 2.19 KM | |
| The Brent Primary School | Academy Converter | Outstanding | 2.37 KM |
| Knockhall Primary School | Academy Sponsor Led | Requires improvement | 2.42 KM |
| Fleetdown Primary Academy | Academy Converter | 2.54 KM |
Images
Nearby Streets
| Name | Average Price | Average Sqft | Distance |
|---|---|---|---|
| Saint James Lane | £ 580,000 | 0 | 0.00 KM |
| Upper Church Hill | £ 0 | 0 | 0.00 KM |
| Church Road | £ 325,000 | 0 | 0.00 KM |
| Wintergarden Crescent | £ 0 | 0 | 0.00 KM |
| Orchard Terrace | £ 325,000 | 0 | 0.00 KM |
Nearby Transport
| Name | NLC | TLC | Distance |
|---|---|---|---|
| Stone Crossing | 5248 | SCG | 0.87 KM |
| Greenhithe For Bluewater | 5138 | GNH | 1.58 KM |
| Swanscombe | 5156 | SWM | 4.70 KM |
| Chafford Hundred | 7447 | CFH | 5.09 KM |
| Purfleet | 7453 | PFL | 5.29 KM |
Nearby Listings
| Address | Price | Type | Score | Distance |
|---|---|---|---|---|
| Hedge Place Road, Greenhithe, Kent, DA9 | £ 425,000 | BUY | Unknown | 0.00 KM |
| Hedge Place Road, Greenhithe, Kent | £ 525,000 | BUY | 7 / 10 | 0.00 KM |
| Hedge Place Road, GREENHITHE, Kent, DA9 | £ 700,000 | BUY | Unknown | 0.04 KM |
| Hedge Place Road, Greenhithe, Kent, DA9 | £ 380,000 | BUY | 7 / 10 | 0.11 KM |
| Hedge Place Road, Greenhithe, Kent, DA9 | £ 290,000 | BUY | 5 / 10 | 0.24 KM |
Nearby Properties
| Address | Price | Distance |
|---|---|---|
| 69 Hedge Place Road | £ 421,000 | 0.01 KM |
| 85 Hedge Place Road | £ 64,000 | 0.01 KM |
| 73 Hedge Place Road | £ 350,000 | 0.01 KM |
| 43 Hedge Place Road | £ 405,000 | 0.01 KM |
| 43b Hedge Place Road | £ 470,000 | 0.01 KM |