Bossell House, Bossell Park, Buckfastleigh
By Wood's Estate Agents and Auctioneers
£ 150,000
Reviews
2 out of 5 stars
Wood's Estate Agents and Auctioneers says ..
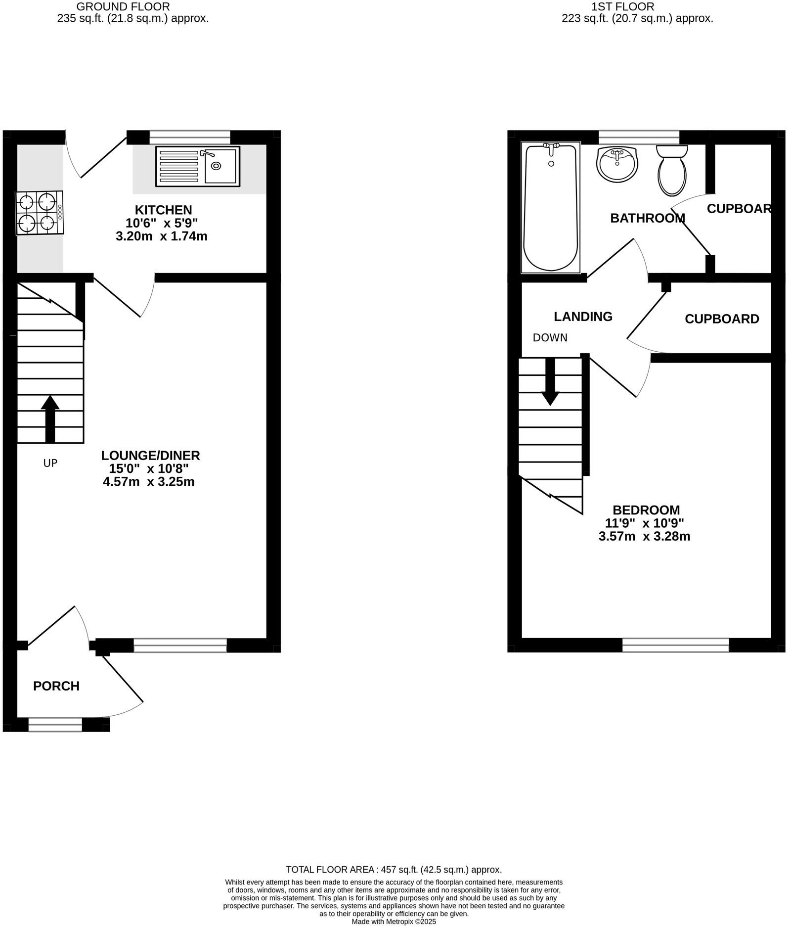
A freehold house in need of some updating situated a short walk from the town centre with accommodation comprising lounge, kitchen, bedroom and bathroom. There is some communal outside space and allocated parking.
Property Oracle says ..
This one bedroom terraced property is located in Buckfastleigh, Devon. The property is in need of modernisation, as can be seen from the images provided. The small garden is a bonus, however, the property is significantly smaller than the average property in the area and is listed at a price that is lower than the average price per sqft. There are a number of primary schools within a reasonable distance of the property, making it suitable for families. While the location is good, the condition and size of the property must be considered when assessing value.
Therefore, we give this property 4 / 10. *Disclaimer: This is our option and does constitute a recommendation or financial advice. Do your own research. *
- Price
- 6
- Condition
- 3
- Location
- 7
- Land
- 2
- Bedrooms
- 1
- Bathrooms
- 1
- Sqft (est)
- 457.00
The heatmap indicates the level of crime in the area. The color of the heatmap indicates the crime severity and recency.
Metrics Year-on-Year
- Average area value
- 347,013.00 £Decreased by 8.81 %
- Est sale value
- 128,874.00 £Increased by 12.35 %
- Average area rental value
- 940.00 £/moIncreased by 0.53 %
- Est letting value
- 0.00 £/mo
- Est rental Yield
- 3.25 %Increased by 10.17 %
- Crime Rate
- 4.00 %Unchanged by 0.00 %
Agent Activity
Wood's Estate Agents and Auctioneers created the listing.
Nearby Schools
| Name | Type | Ofsted | Distance |
|---|---|---|---|
| Buckfastleigh Primary School | Academy Converter | Requires improvement | 0.23 KM |
| Abc Ashburton And Buckfastleigh Children'S Centre | Children's Centre | 0.40 KM | |
| St Mary'S Catholic Primary School, Buckfast | Academy Converter | Good | 1.46 KM |
| Ashburton Primary School | Academy Converter | Good | 5.09 KM |
| Sands School | Other Independent School | 5.13 KM |
Images
Nearby Streets
| Name | Average Price | Average Sqft | Distance |
|---|---|---|---|
| New Road | £ 0 | 0 | 0.00 KM |
| Pioneer Terrace | £ 350,000 | 0 | 0.00 KM |
| Stormsdown Cottages | £ 0 | 0 | 0.00 KM |
| Oaklands Close | £ 0 | 0 | 0.00 KM |
| Stroud Road | £ 0 | 0 | 0.00 KM |
Nearby Listings
| Address | Price | Type | Score | Distance |
|---|---|---|---|---|
| Bossell House, Bossell Park, Buckfastleigh | £ 150,000 | BUY | 4 / 10 | 0.00 KM |
| Bossell Park, Buckfastleigh | £ 160,000 | BUY | 5 / 10 | 0.02 KM |
| Plymouth Road, Buckfastleigh | £ 295,000 | BUY | 7 / 10 | 0.14 KM |
| Buckfastleigh, Devon | £ 325,000 | BUY | 7 / 10 | 0.14 KM |
| New Park, Buckfastleigh, Devon | £ 1,800,000 | BUY | Unknown | 0.15 KM |
Nearby Properties
| Address | Price | Distance |
|---|---|---|
| 25 Bossell Park | £ 160,000 | 0.02 KM |
| 17 Bossell Park | £ 33,000 | 0.02 KM |
| 8 Bossell Park | £ 142,500 | 0.02 KM |
| 12 Bossell Park | £ 88,000 | 0.02 KM |
| 14 Bossell Park | £ 165,000 | 0.02 KM |