North Street, Northam, Bideford, EX39
By John Smale & Co
£ 240,000
Reviews
3 out of 5 stars
John Smale & Co says ..
THE COSIEST COTTAGE!! Having been the subject of a painstaking renovation by the current owners, this beautifully presented two bedroom character cottage abounds with period charm and contemporary style, throw in the sea views from the Master Bedroom and who could ask for more?!
Property Oracle says ..
This property is a 2 bedroom, 1 bathroom cottage located in Northam, Bideford. The property is well presented and has recently undergone some modernisation, as evidenced by the updated kitchen and bathroom. The cottage benefits from a good-sized rear garden. While the plot size is not explicitly stated, the garden appears to be relatively spacious compared to other properties in the area. The location is desirable, with nearby schools and other amenities. However, the average house price in the area is significantly higher than the list price of this property, suggesting it may be undervalued. The lack of information regarding the square footage of nearby properties makes a precise comparison difficult. However, based on the average price per square foot in the area, this property appears to be priced below market value.
Therefore, we give this property 7 / 10. *Disclaimer: This is our option and does constitute a recommendation or financial advice. Do your own research. *
- Price
- 9
- Condition
- 8
- Location
- 7
- Land
- 7
- Bedrooms
- 2
- Bathrooms
- 1
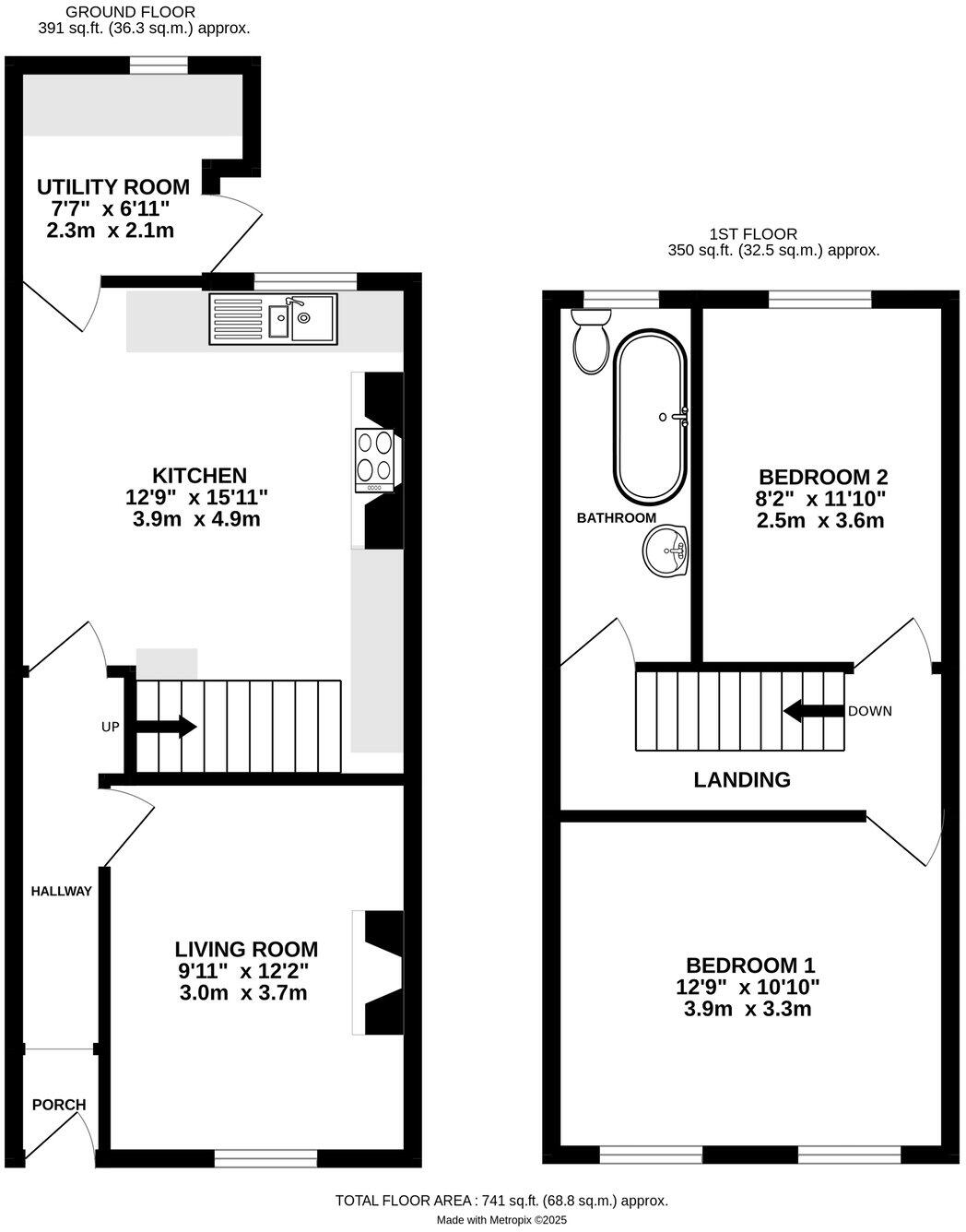
- Sqft (est)
- 740.56
The heatmap indicates the level of crime in the area. The color of the heatmap indicates the crime severity and recency.
Metrics Year-on-Year
- Average area value
- 450,000.00 £Increased by 14.46 %
- Est sale value
- 265,861.04 £Increased by 8.79 %
- Average area rental value
- 850.00 £/moDecreased by 4.39 %
- Est letting value
- 0.00 £/mo
- Est rental Yield
- 2.27 %Decreased by 16.24 %
- Crime Rate
- 13.00 %Unchanged by 0.00 %
Agent Activity
John Smale & Co created the listing.
Nearby Schools
| Name | Type | Ofsted | Distance |
|---|---|---|---|
| St Margaret'S Church Of England (Aided) Junior School | Voluntary Aided School | Requires improvement | 0.63 KM |
| St George'S Church Of England (Va) Infant And Nursery School | Voluntary Aided School | Good | 0.74 KM |
| Bideford Bay Children'S Centre | Children's Centre | 1.66 KM | |
| St Mary'S Church Of England Primary School | Voluntary Controlled School | Good | 1.74 KM |
| Appledore School | Foundation School | Good | 1.84 KM |
Images
Nearby Streets
| Name | Average Price | Average Sqft | Distance |
|---|---|---|---|
| Greenacre Close | £ 432,500 | 0 | 0.00 KM |
| Springfield Crescent | £ 334,975 | 0 | 0.00 KM |
| Churchill Way | £ 275,000 | 0 | 0.00 KM |
| J.H. Taylor Drive | £ 420,000 | 0 | 0.00 KM |
| Jackets Lane | £ 0 | 0 | 0.00 KM |
Nearby Listings
| Address | Price | Type | Score | Distance |
|---|---|---|---|---|
| North Street, Northam, Bideford, EX39 | £ 240,000 | BUY | 7 / 10 | 0.00 KM |
| North Street, Northam | £ 280,000 | BUY | Unknown | 0.02 KM |
| North East Street, Northam, Bideford, EX39 | £ 165,000 | BUY | 7 / 10 | 0.06 KM |
| Cross Street, Northam | £ 435,000 | BUY | 7 / 10 | 0.07 KM |
| Bramley Close, Northam | £ 615,000 | BUY | 8 / 10 | 0.11 KM |
Nearby Properties
| Address | Price | Distance |
|---|---|---|
| Dane House | £ 240,000 | 0.04 KM |
| 64 Cross Street | £ 249,950 | 0.07 KM |
| 40 Cross Street | £ 122,000 | 0.07 KM |
| 39a Cross Street | £ 105,000 | 0.07 KM |
| 56 Cross Street | £ 130,000 | 0.07 KM |