Purely Living says ..
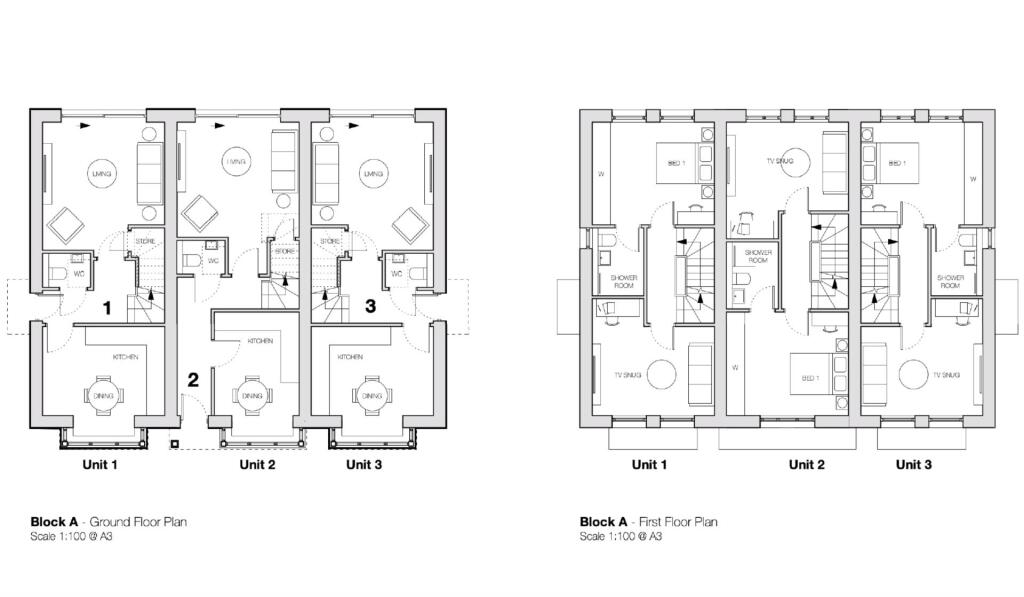
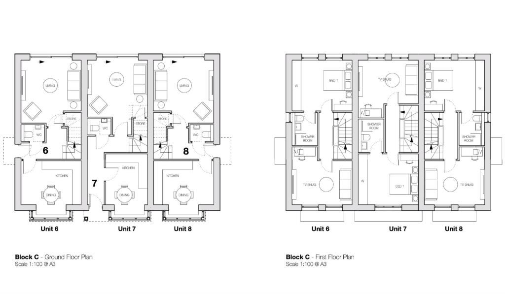
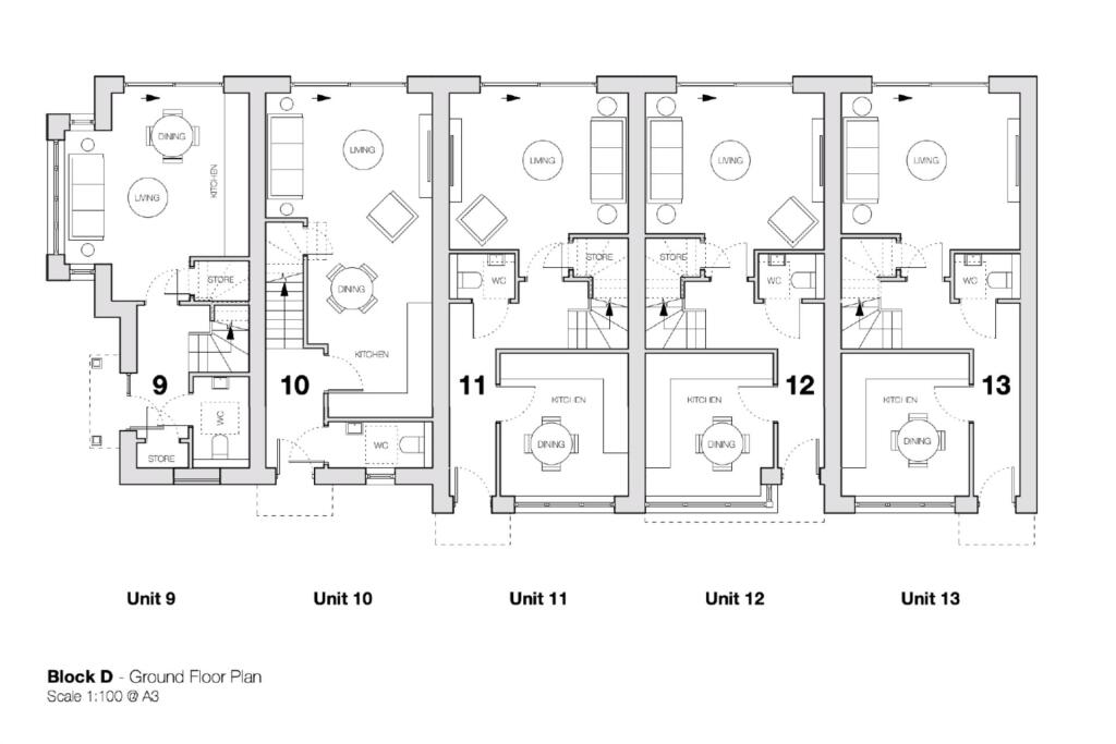
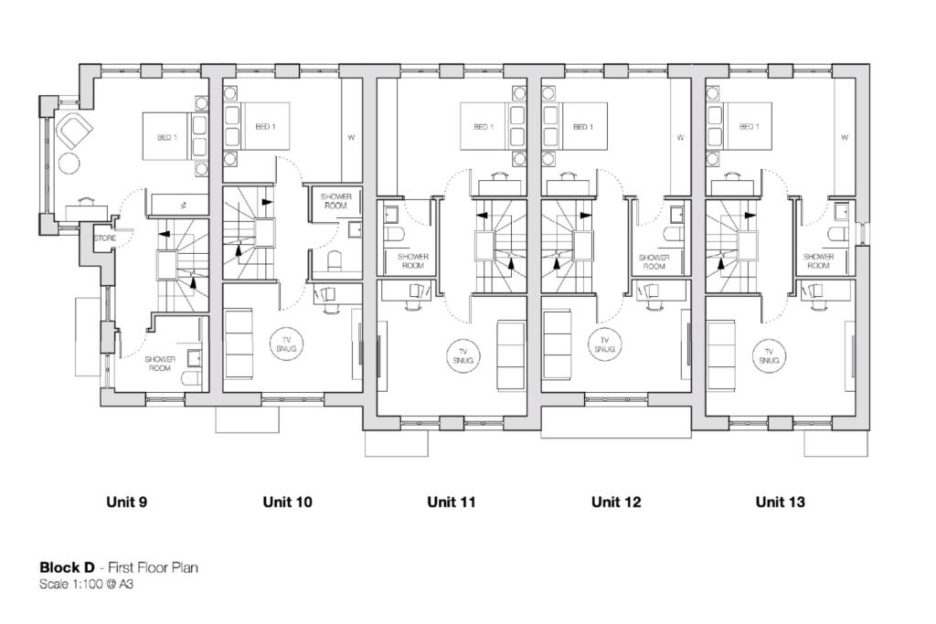
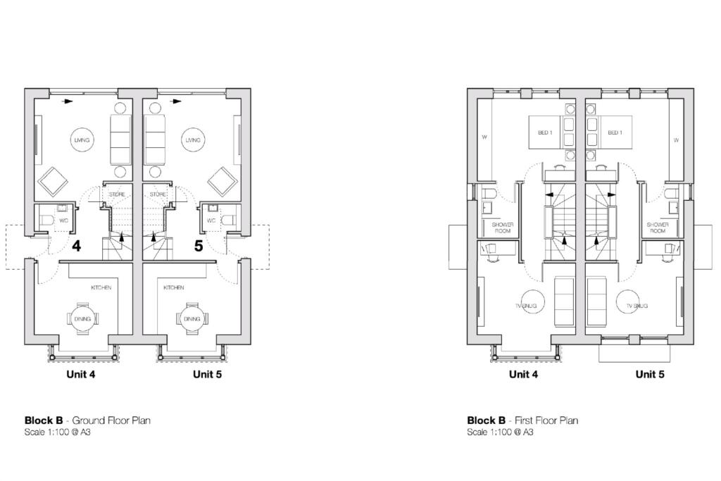
Outline planning permission has been sought for the construction of 13 x three storey, four bedroom townhouses with associated off road parking and gardens.
Property Oracle says ..
This is a large plot of land with planning permission for multiple dwellings. The location is close to transportation and schools. The condition of the property is new. However, the list price seems extremely high for the area. The average price in the area is £201,429, and the average price per square foot is £323. The listing price of £2,500,000 is significantly higher than the average price in the area. The property is located close to several schools including Corpus Christi Catholic Primary School (rated Good) and King’s Park Academy (rated Good). Pokesdown train station is 1.54km away.
Therefore, we give this property 4 / 10. *Disclaimer: This is our option and does constitute a recommendation or financial advice. Do your own research. *
- Price
- 1
- Condition
- 8
- Location
- 6
- Land
- 3
- Bedrooms
- 4
- Bathrooms
- 2
- Sqft (est)
- 7,560.00
The heatmap indicates the level of crime in the area. The color of the heatmap indicates the crime severity and recency.
Metrics Year-on-Year
- Average area value
- 201,429.00 £Decreased by 27.96 %
- Est sale value
- 2,441,880.00 £Decreased by 19.85 %
- Average area rental value
- 1,133.00 £/moDecreased by 1.05 %
- Est letting value
- 7,560.00 £/moUnchanged by 0.00 %
- Est rental Yield
- 6.75 %Increased by 37.47 %
- Crime Rate
- 19.00 %Unchanged by 0.00 %
Agent Activity
Purely Living created the listing.
Nearby Schools
| Name | Type | Ofsted | Distance |
|---|---|---|---|
| Corpus Christi Catholic Primary School | Voluntary Aided School | Good | 0.84 KM |
| King'S Park Academy | Academy Sponsor Led | Good | 1.02 KM |
| Boscombe Children'S Centre | Children's Centre | 1.34 KM | |
| Bournemouth Collegiate School | Other Independent School | 1.34 KM | |
| St Clement'S And St John'S Church Of England Infant School | Academy Converter | Good | 1.42 KM |
Images
Nearby Streets
| Name | Average Price | Average Sqft | Distance |
|---|---|---|---|
| Westby Road | £ 186,667 | 0 | 0.00 KM |
| Promenade | £ 0 | 0 | 0.00 KM |
| Centenary Way | £ 0 | 0 | 0.00 KM |
| Woodland Walk | £ 0 | 0 | 0.00 KM |
| Kings Park Central Drive | £ 850,000 | 0 | 0.00 KM |
Nearby Transport
| Name | NLC | TLC | Distance |
|---|---|---|---|
| Pokesdown | 5885 | POK | 1.54 KM |
| Bournemouth | 5876 | BMH | 3.08 KM |
| Christchurch | 5879 | CHR | 6.01 KM |
| Branksome | 5875 | BSM | 9.17 KM |
Nearby Listings
| Address | Price | Type | Score | Distance |
|---|---|---|---|---|
| Watkin Road, Bournemouth | £ 190,000 | BUY | 6 / 10 | 0.00 KM |
| Watkin Road, Boscombe | £ 2,500,000 | BUY | 4 / 10 | 0.00 KM |
| Palm Lodge, 2 Watkin Road, Bournemouth, BH5 | £ 100,000 | BUY | 6 / 10 | 0.00 KM |
| Glen Road, Boscombe Spa, Bournemouth, BH5 | £ 140,000 | BUY | 7 / 10 | 0.04 KM |
| Glen Road, Bournemouth, Dorset, BH5 | £ 190,000 | BUY | 7 / 10 | 0.04 KM |
Nearby Properties
| Address | Price | Distance |
|---|---|---|
| 5 Watkin Road | £ 289,774 | 0.01 KM |
| 2a Watkin Road | £ 495,000 | 0.02 KM |
| 28 Percy Road | £ 250,000 | 0.07 KM |
| 23 Percy Road | £ 400,000 | 0.07 KM |
| 2 Wollstonecraft Road | £ 1,030,000 | 0.15 KM |