18 Links Side, Enfield, Middlesex, EN2 7QZ
By Landwood Group
£ 825,000
Reviews
3 out of 5 stars
Landwood Group says ..
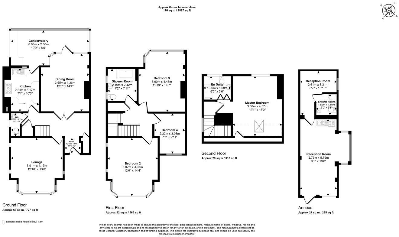
Semi-detached house. No Chain. 4 Bedrooms and 2 Room Annex. On Behalf of the Court Appointed Receiver: Semi detached 4 bedroom house with external annex
Property Oracle says ..
This four-bedroom semi-detached house located at 18 Links Side, Enfield, EN2 7QZ, is presented by Landwood Group. The property boasts a sizeable garden and includes a separate annex. The property’s location is highly advantageous, benefitting from proximity to well-regarded schools and multiple train stations providing convenient transport links into London. The kitchen is functional but could be upgraded. The house shows some signs of age and the garden seems somewhat unkempt, suggesting some maintenance and possibly modernisation are needed. The list price of £825,000 requires a more thorough analysis considering the lack of precise square footage data for the main house compared to similar properties in the area and consideration of the annex. The property’s value is likely to be significantly influenced by the market conditions at the time of sale. Overall, the property represents a solid investment opportunity in a desirable location; however, potential buyers should be prepared for some modernisation works and thorough due diligence to ascertain its exact market value.
Therefore, we give this property 6 / 10. *Disclaimer: This is our option and does constitute a recommendation or financial advice. Do your own research. *
- Price
- 7
- Condition
- 6
- Location
- 7
- Land
- 7
- Bedrooms
- 4
- Bathrooms
- 3
- Sqft (est)
- 1,897.00
The heatmap indicates the level of crime in the area. The color of the heatmap indicates the crime severity and recency.
Metrics Year-on-Year
- Average area value
- 780,333.00 £Increased by 28.74 %
- Est sale value
- 1,261,505.00 £Increased by 31.68 %
- Average area rental value
- 2,100.00 £/moIncreased by 7.91 %
- Est letting value
- 1,897.00 £/moUnchanged by 0.00 %
- Est rental Yield
- 3.23 %Decreased by 16.10 %
- Crime Rate
- 0.00 %
Agent Activity
Landwood Group created the listing.
Nearby Schools
| Name | Type | Ofsted | Distance |
|---|---|---|---|
| Merryhills Primary School | Community School | Good | 0.42 KM |
| Highlands School | Community School | Outstanding | 0.52 KM |
| Grange Park Primary School | Academy Converter | 0.66 KM | |
| Eversley Primary School | Community School | Outstanding | 1.36 KM |
| Grange Park Preparatory School | Other Independent School | 1.84 KM |
Images
Nearby Streets
| Name | Average Price | Average Sqft | Distance |
|---|---|---|---|
| Cranmere Court | £ 0 | 0 | 0.00 KM |
| Woodridge Close | £ 0 | 0 | 0.00 KM |
| Wynsmere Court | £ 0 | 0 | 0.00 KM |
| Tarn Bank | £ 785,000 | 0 | 0.00 KM |
| Green Dragon Lane | £ 999,995 | 0 | 0.00 KM |
Nearby Transport
| Name | NLC | TLC | Distance |
|---|---|---|---|
| Grange Park | 6029 | GPK | 1.56 KM |
| Gordon Hill | 6028 | GDH | 1.75 KM |
| Enfield Chase | 6010 | ENC | 1.76 KM |
| Winchmore Hill | 6024 | WIH | 2.23 KM |
| Enfield Town | 6959 | ENF | 3.02 KM |
Nearby Listings
| Address | Price | Type | Score | Distance |
|---|---|---|---|---|
| Links Side, Enfield | £ 300,000 | BUY | 6 / 10 | 0.04 KM |
| Links Side, Enfield | £ 699,995 | BUY | 6 / 10 | 0.05 KM |
| Links Side, Enfield, EN2 | £ 325,000 | BUY | 6 / 10 | 0.12 KM |
| Links Side, Enfield | £ 325,000 | BUY | 5 / 10 | 0.13 KM |
| Slades Hill, London, EN2 | £ 725,000 | BUY | 7 / 10 | 0.22 KM |
Nearby Properties
| Address | Price | Distance |
|---|---|---|
| 35 Links Side | £ 695,000 | 0.04 KM |
| 18 Links Side | £ 410,000 | 0.04 KM |
| 4 Links Side | £ 155,000 | 0.04 KM |
| 25 Links Side | £ 585,000 | 0.04 KM |
| 43 Links Side | £ 595,000 | 0.06 KM |