Osbaldeston Lane, Osbaldeston, BB2
FI

Osbaldeston Lane, Osbaldeston, BB2

By Fine & Country

£ 1,850,000

Reviews

3 out of 5 stars

Fine & Country says ..

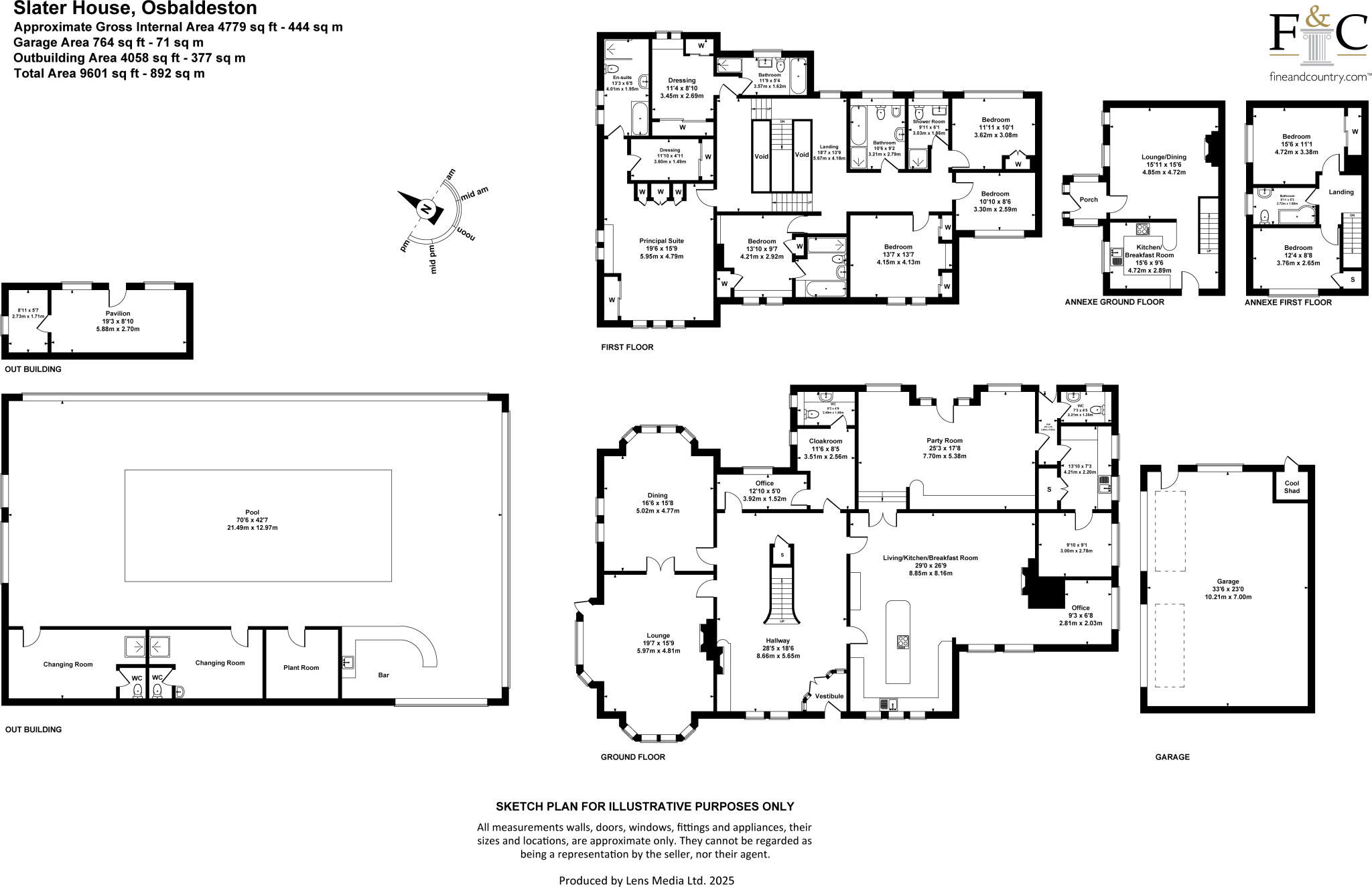
Slater House is a distinguished residence, its origins tracing back to the 1700s when it formed part of the historic Baron De Tabley Estate. Tastefully extended over time, the home showcases exquisite period character enriched with architectural features acquired from the stately Breightmet Hall....

Property Oracle says ..

This is a substantial detached property located in the Ribble Valley. The house features five bedrooms and five bathrooms, offering ample space for a large family. The interior is generally well-maintained, with a modern kitchen and bathrooms. However, the indoor pool and tennis court require renovation. The property benefits from a large plot, including a garden. While the location offers a semi-rural lifestyle, it remains accessible to local amenities and schools. The asking price of £1,850,000 appears high compared to average property prices in the area, especially considering the need for some renovations.

Therefore, we give this property 6 / 10. *Disclaimer: This is our option and does constitute a recommendation or financial advice. Do your own research. *

Price
4
Condition
7
Location
7
Land
9
Bedrooms
5
Bathrooms
5
Sqft (est)
4,418.05

The heatmap indicates the level of crime in the area. The color of the heatmap indicates the crime severity and recency.

Metrics Year-on-Year

Average area value
610,000.00 £
Increased by 33.26 %
from 457,740.00 £
Est sale value
1,996,958.60 £
Increased by 49.67 %
from 1,334,251.10 £
Average area rental value
1,000.00 £/mo
Decreased by 18.37 %
from 1,225.00 £/mo
Est letting value
0.00 £/mo
from 0.00 £/mo
Est rental Yield
1.97 %
Decreased by 38.63 %
from 3.21 %
Crime Rate
0.00 %
from 0.00 %

Agent Activity

  • Fine & Country created the listing.

Nearby Schools

NameTypeOfstedDistance
St Mary'S Roman Catholic Primary School, OsbaldestonVoluntary Aided SchoolGood0.54 KM
Mellor St Mary Church Of England Primary SchoolVoluntary Aided SchoolGood1.35 KM
Ribchester St Wilfrid'S Church Of England Voluntary Aided Primary SchoolVoluntary Aided SchoolGood2.96 KM
Balderstone St Leonard'S Church Of England Voluntary Aided Primary SchoolVoluntary Aided SchoolGood3.10 KM
Westholme SchoolOther Independent School3.58 KM

Images

Kitchen SC Bedroom SC Bedroom Bathroom Swimming Pool Swimming Pool Tennis Court Garden Hallway Handle Handle External External Garden Hallway Hallway Living Room Living Room Living Room Dining Room Dining Room Kitchen Family Area Family Area Dining Area Landing Main Bedroom Main Bedroom En-Suite Bedroom En-Suite Bedroom Bedroom En-Suite Bedroom Bedroom Bathroom Garden Balustrade Slater Cottage Slater Cottage SC Lounge SC Lounge SC Kitchen Garden Patio Aerial

Nearby Streets

NameAverage PriceAverage SqftDistance
A59 £ 000.00 KM

Nearby Transport

NameNLCTLCDistance
Cherry Tree2573CYT6.07 KM
Pleasington2752PLS6.09 KM
Ramsgreave And Wilpshire2734RGW6.31 KM
Mill Hill (Lancs)2750MLH6.62 KM
Blackburn2737BBN7.51 KM

Nearby Listings

AddressPriceTypeScoreDistance
Osbaldeston Lane, Osbaldeston, BB2 £ 1,850,000BUY6 / 100.00 KM
Osbaldeston Lane, Osbaldeston, Blackburn, Lancashire, BB2 £ 695,000BUY6 / 100.36 KM
The Green, Osbaldeston £ 350,000BUY6 / 100.50 KM
Osbaldeston Lane, Osbaldeston, Blackburn, Lancashire, BB2 £ 795,000BUY7 / 100.51 KM
Clayton Le Dale, Blackburn , BB2 £ 25,000BUY6 / 100.53 KM

Nearby Properties

AddressPriceDistance
Chamonix £ 403,0000.30 KM
Edenlea £ 420,0000.30 KM
Belmil £ 395,0000.30 KM
3 Osbaldeston Lane £ 155,0000.47 KM
1 Osbaldeston Lane £ 198,0000.47 KM